Eladó családi ház Szeged 199 900 000 Ft

Leírás

Eladó kétgenerációs családi ház és melléképület Szeged-Baktó csendes, zöldövezeti részén!

Szeged-Baktó egyik kedvelt utcájában, igényes családi házak szomszédságában kínálunk megvételre egy teljes körűen felújított, napfényes, kétszintes családi házat, amely két különálló lakrésszel rendelkezik, valamint egy szintén felújított melléképület tartozik hozzá. A tágas, 1453 m²-es telek további lehetőségeket rejt: a hátsó rész leválasztható, így egy kb. 700 m²-es építési telek is kialakítható.

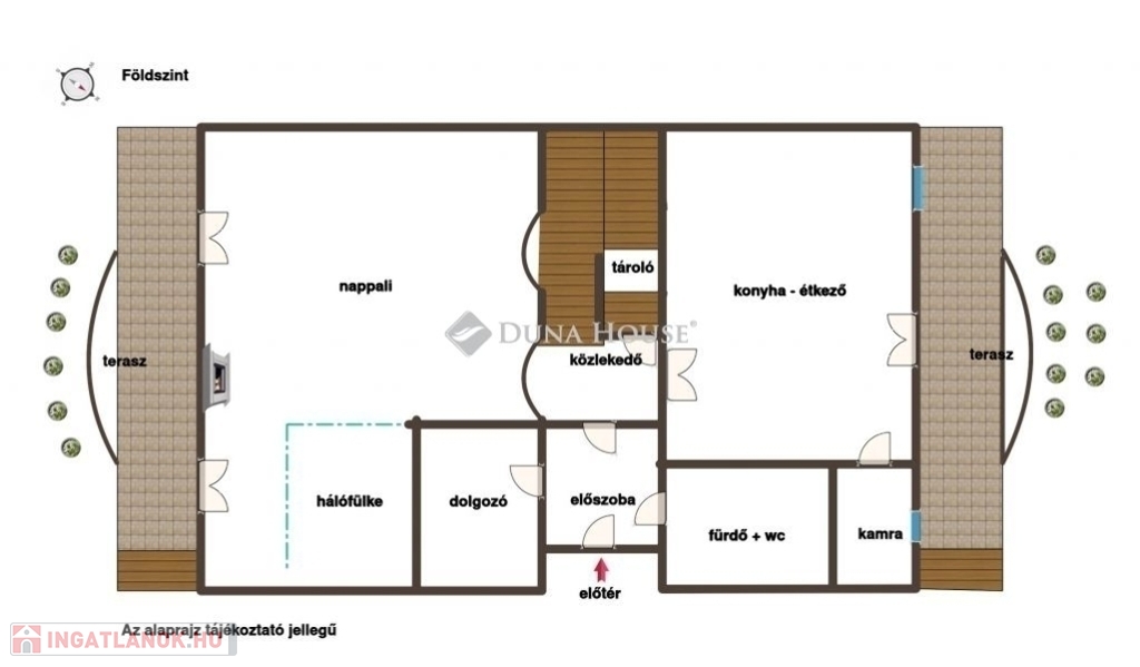
Főépület (137,71 / 166,32 m²):

Földszint: tágas, világos nappali kandallóval, étkezős konyha, kamra, szoba, hálófülke, fürdőszoba, tároló, valamint két fedett terasz.

Emelet: amerikai konyhás nappali, 3 külön nyíló hálószoba, fürdőszoba, loggia.

Melléképület (45 m²):
2 szoba, konyha-étkező, kamra, fürdőszoba, valamint egy 20 m²-es terasz.

Felújítás és műszaki állapot:

Teljes körű korszerűsítés 2020-ban és 2022-ben (főépület és melléképület)

Új víz- és elektromos hálózat, modern hőszigetelt nyílászárók redőnnyel és szúnyoghálóval

Baxi kazán, Ariston vízmelegítő, Gree inverteres klíma

Szigetelt épület, fúrt kút, automata öntözőrendszer

Önálló mérőórák minden lakrészhez

Kert és parkolás:
Rendezett, parkosított kert, mellé garázs és kerékpárút az épület előtt.

Ez a kétgenerációs ingatlan ideális választás nagycsaládosok, összeköltözők vagy akár befektetők számára is, hiszen különálló lakrészeinek és melléképületének köszönhetően számos lehetőséget kínál.

Ha Ön is egy nyugodt, zöldövezeti környezetben keres tágas, többfunkciós családi házat Szegeden, ne hagyja ki ezt a lehetőséget! Keressen bizalommal a részletekért vagy egy személyes megtekintésért!

Családi ház részletei

Ár: 199 900 000 Ft
Méret: 166 négyzetméter
Azonosító: 11567271
Irodai azonosító: HZ075143-5042677
Telek: 1453 négyzetméter
Ingatlan állapota:
Jelleg: családi ház
Építőanyag: Tégla
Fűtés jellege: Cirkó
Fűtés módja: Gáz
Komfort fokozat: Dupla komfort
Kor: 21-50 éves
Szintek száma: Földszintes
Egész szobák: 6

Térkép

Hasonló családi ház hirdetések

Eladó családi ház

Szeged

Szeged, Újszeged marostői városrészében, a Demeter Ferenc utcában eladó ...

Eladó családi ház

Szeged

Szeged Petőfi-telep városrészben, egy igen egyedi, minőségi családi ház ...

Eladó családi ház

Szeged

BÉKÉS, CSENDES KÖRNYEZETBEN MINDEN IGÉNYT KIELÉGÍTŐ CSALÁDI HÁZ + ...

Eladó családi ház

Szeged

Eladó kétgenerációs családi ház Szeged közkedvelt részén, a Jakab ...

Hasonló családi ház hirdetések

Eladó családi ház

Szeged

Szeged, Újszeged marostői városrészében, a Demeter Ferenc utcában eladó ...

Eladó családi ház

Szeged

Szeged Petőfi-telep városrészben, egy igen egyedi, minőségi családi ház ...

Eladó családi ház

Szeged

BÉKÉS, CSENDES KÖRNYEZETBEN MINDEN IGÉNYT KIELÉGÍTŐ CSALÁDI HÁZ + ...

Eladó családi ház

Szeged

Eladó kétgenerációs családi ház Szeged közkedvelt részén, a Jakab ...