Eladó családi ház Szeged 70 200 000 Ft

Leírás

Eladó új építésű, belvárosi kertkapcsolatos lakások Szegeden

Belvárosi – csendes belső udvarban helyezkednek el
Ingatlan típusa: társasházi lakás
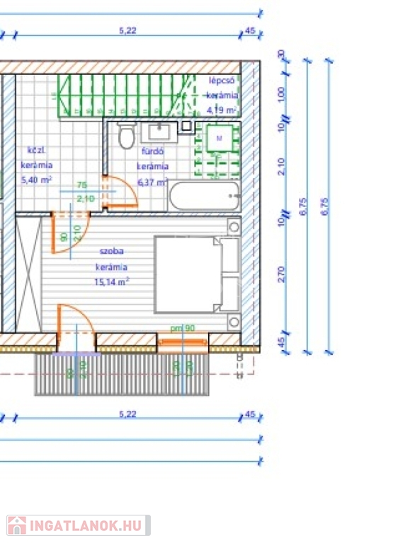
Alapterület: 52 m²-től 75 m2- ig
Saját kert: kb. 30 m²
Elrendezés: amerikai konyhás nappali + 1 hálószobás vagy 2 hálószobás ingatlanok

Főbb jellemzők:

Csendes, mégis belvárosi környezet

2 méter mély, 60 cm széles C25-ös beton alapozás, Leier 30 N/F tégla falazat 15 cm hőszigeteléssel

Hanggátló válaszfalak a teljes nyugalomért

Bramac antracit tetőcserép

3 rétegű üvegezésű műanyag nyílászárók

Padlófűtés (Westend 24 kW-os gázkazán + 100 l-es hőtároló)

3,5 kW-os hűtő-fűtő klíma

Energetikailag korszerű kivitelezés

Kíváló minőségű anyaghasználat


Állapot:

Emeltszintű szerkezetkész: glettelt, egy rétegben festett falak, alap villanyszerelés 6 db lakás

Emelt szerkezetkész ár: 1.250.000 ft/ m2

Kulcsrakész opció (rövid határidővel, +100.000 Ft/m²): 1 db lakás, amely jelenleg referenciaként megtekinthető!

További lehetőségek:

Kocsibeálló vásárolható: 4,5 millió Ft

Garázs vásárolható: 12 millió Ft


Kulcsrakész ár: 1.350.000 ft/m2

HITELKÉPES LAKÁSOK!

Ez a lakás ideális választás mindazok számára, akik belvárosi elhelyezkedést, modern technológiát és saját kert nyújtotta privát életteret keresnek Szeged szívében, de rendívüli lehetőség befektetési célra is!

TEKINTSE MEG SZEMÉLYESEN REFERENCIA INGATLANUNKAT!

Családi ház részletei

Ár: 70 200 000 Ft
Méret: 58 négyzetméter
Azonosító: 11562320
Irodai azonosító: 386771
Cím: Szeged Belvárosi új lakások eladók!
Telek: 30 négyzetméter
Ingatlan állapota: Kitűnő
Jelleg: sorház
Építőanyag: Tégla
Fűtés jellege: Egyedi
Komfort fokozat: Összkomfort
Kor: Új építésű
Szintek száma: 1 szint
Egész szobák: 2

Egyéb jellemzők

  • Csatorna
  • Garázs
  • Pince
  • Terasz

Térkép

Hasonló családi ház hirdetések

Eladó családi ház

Szeged

Szeged-Kiskundorozsmán, az épülő BYD gyártól 5 percre eladó ez a 147 ...

Eladó családi ház

Szeged

Szeged Béketelepen , 700 m2-es telken épült , bruttó 135 m2-es , 2 lakásos ...

Eladó családi ház

Szeged, Baktói kiskertek

Szeged-Baktói kiskertekben, 110 m2 bruttó/85 m2 nettó, 5 szobás, kétszintes, ...

Eladó családi ház

Szeged

Eladó családi ház Szeged-Baktó csendes, kertvárosi övezetébenSzeged ...

Hasonló családi ház hirdetések

Eladó családi ház

Szeged

Szeged-Kiskundorozsmán, az épülő BYD gyártól 5 percre eladó ez a 147 ...

Eladó családi ház

Szeged

Szeged Béketelepen , 700 m2-es telken épült , bruttó 135 m2-es , 2 lakásos ...

Eladó családi ház

Szeged, Baktói kiskertek

Szeged-Baktói kiskertekben, 110 m2 bruttó/85 m2 nettó, 5 szobás, kétszintes, ...

Eladó családi ház

Szeged

Eladó családi ház Szeged-Baktó csendes, kertvárosi övezetébenSzeged ...