Eladó családi ház Székesfehérvár 102 700 000 Ft

Leírás

Új építés, Otthon Start Program fix 3% hitel igényelhető!

H-004627. Öreghegy, frekventált, kedvelt részén, összközműves építési telken, családiházas környezetben, eladó egy 2025-ben épülő egyszintes, igényes, egyedi kivitelezésű 124 m2 hasznos (br.140m2 ), alapterületű, nappali + 3 szobás , 823m2 privát telekterülettel rendelkező családi ház, garázzsal, terasszal.

Energiahatékony ingatlan, saját 823m2 telekterület, garázzsal.
A ház kiváló elhelyezkedésének köszönhetően a belváros, illetve az M7 autópálya pár perc távolságra található, mindemellett az elkerülőút közelsége miatt a város többi része is könnyen megközelíthető. Az ingatlan környezetében bevásárlási lehetőség, egyéb üzletek és számos szolgáltatás megtalálható.

A ház acélvázas könnyűszerkezet, szigetelt, tágas, világos, körbe napozott, minőségi anyagokból készült. A burkolatokat tekintve a szobákban magas minőségű laminált padló, a nappaliban a közlekedőben, valamint a konyhában és a vizes helyiségekben jó minőségű járólap található. A nyílászárók 3 rétegű műanyagból készülnek, hőszigetelt üvegezéssel, rajtuk redőny előkészítéssel. A házban klíma kiépítésre kerül.. A terasz, kényelmes pihenést biztosít. Az utcai kapu elektromosan lesz nyitható. A telek adottságai miatt ( úgynevezett „ nyeles” telek) a ház, és a kert terület teljesen intim nyugalmat biztosít.


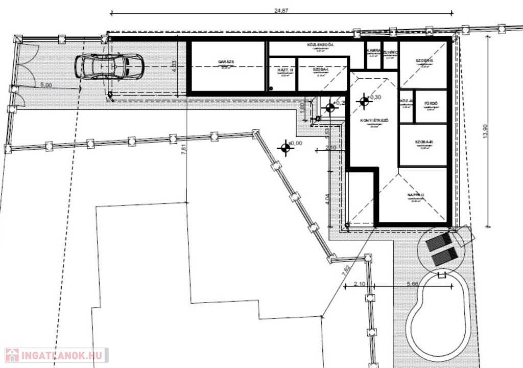
Elosztását tekintve:
Földszint: előtér, nappali-konyha-étkező (45m2), kamra, 2 fürdőszoba, 3 hálószoba, háztartási helyiség, tágas garázs,

Fontosabb paraméterek:
● 2025-ben épül, acélvázas könnyűszerkezet+ 15 cm szigetelés, nemesvakolat
● 823m2 saját telekterület
● Nappali + 3 hálószoba + háztartási helyiség +2 fürdő + kamra +garázs+ terasz.
● Padlófűtés , hőszivattyú
● klíma az árban
● 1 szint, akadálymentesített bejutás
● 3-4 autónak beállási lehetőség (garázs +fedett gépkocsi beálló)

Eladási irányár: 102 700 000 .-Ft

A ház a kényelmes otthont biztosít a lakók számára, mind a belső lakrészben, mind a kert, udvar, illetve a terasz területén Vásárláshoz kedvező kamatozású hitel illetve ( Otthon Start Program fix 3 % , CSOK Plusz, Jelzáloghitel, Babaváró, Piaci hitel……)igénylésében segítünk.
Ha felkeltette érdeklődését, hívjon bizalommal, (hétvégén is) éljen ingyenes, személyre szabott hitelügyintézés szolgáltatásunkkal. Segítünk továbbá adásvételhez szükséges ügyvédi közreműködésben, energetikai tanúsítvány, valamint értékbecslés elkészítésében.

For English information please send a message.

Családi ház részletei

Ár: 102 700 000 Ft
Méret: 124 négyzetméter
Azonosító: 11570837
Irodai azonosító: 388232
Cím: Öreghegyen új építés
Telek: 823 négyzetméter
Ingatlan állapota: Kitűnő
Jelleg: családi ház
Építőanyag: Könnyűszerkezetes
Fűtés jellege: Geotermikus
Fűtés módja: Hőszivattyú
Komfort fokozat: Összkomfort
Kor: Új építésű
Szintek száma: Földszintes
Egész szobák: 4

Egyéb jellemzők

  • Csatorna
  • Garázs
  • Pince
  • Terasz

Térkép

Hasonló családi ház hirdetések

Eladó családi ház

Székesfehérvár

Különleges lehetőség Székesfehérvár legkedveltebb városrészében, ...

Eladó családi ház

Székesfehérvár

Székesfehérvár - Öreghegyen ELADÓ egy 665m2-es összközműves telekre ...

Eladó családi ház

Székesfehérvár, Váralja

BEFEKTETŐK, ÖSSZEKÖLTÖZŐK FIGYELMÉBE! Székesfehérvár csendes, családi ...

Eladó családi ház

Székesfehérvár

Egy tágas, három szintes családi házat kínálunk csendes és zöld helyen, ...

Hasonló családi ház hirdetések

Eladó családi ház

Székesfehérvár

Különleges lehetőség Székesfehérvár legkedveltebb városrészében, ...

Eladó családi ház

Székesfehérvár

Székesfehérvár - Öreghegyen ELADÓ egy 665m2-es összközműves telekre ...

Eladó családi ház

Székesfehérvár, Váralja

BEFEKTETŐK, ÖSSZEKÖLTÖZŐK FIGYELMÉBE! Székesfehérvár csendes, családi ...

Eladó családi ház

Székesfehérvár

Egy tágas, három szintes családi házat kínálunk csendes és zöld helyen, ...