Eladó családi ház Székesfehérvár 89 000 000 Ft

Leírás

ÚJRA ELÉRHETŐ!
Kösse meg szerződését még 2025-ben, és 10%-os foglalóval biztosítsa új otthonát idei árakon!
Fix 3% hitel igényelhető!

H-003513. Székesfehérváron, a népszerű Maroshegyi családi házas övezetben, a Lugosi utcában új építésű, modern, világos, ÖNÁLLÓ családi házak eladók. Minden ház saját, kizárólagos, kerítéssel elválasztott telekrésszel, egyedülálló utcafronttal és saját közművekkel gépkocsibeállóval rendelkezik.
A 1-2. ütemek sikeres értékesítése után most a 3. ütemben KÉT ÚJ HÁZ építése kezdődik!
Házak átadási határideje:
1. ütem: 2023 – ELKELT
2. ütem: 2024 – ELKELT
3. ütem: 2026 – KÉT HÁZ ELÉRHETŐ
Kiváló energetikai besorolás, A+ minősítés, rendkívül alacsony rezsiköltségek!
A házak remek elhelyezkedése biztosítja, hogy a belváros és az M7-es autópálya mindössze pár percnyire található, miközben az elkerülő útnak köszönhetően könnyen elérhetők a város többi része is. A környéken minden szükséges szolgáltatás megtalálható: bevásárlóhelyek, orvos, iskola, bölcsőde, babaúszó medence és egyéb üzletek.
A telken összesen 2 lakóház épül. A házak teljesen függetlenek egymástól, így nem osztoznak sem pergolán, sem falon, sem garázson. Minden ház önálló utcafronttal és saját mérőórákkal rendelkezik.
A házak a legmodernebb építési szabványoknak megfelelően készülnek, Porotherm 30-as falazóelemekkel, korszerű hőszigeteléssel és 3 rétegű, 7 légkamrás ablakokkal. A hűtés-fűtésről hőszivattyús rendszer gondoskodik, biztosítva az energiatakarékos, fenntartható otthont.
A leendő tulajdonosok saját, kizárólagos használatú telekrészre kerülhetnek, az „A” ház 466 m²-es, a „B” ház 421 m²-es telekrésszel. A házakhoz modern teraszok is tartoznak, amelyek biztosítják a privát nyugodt pihenést. Az ingatlanok körbekerítettek, és saját, fedetlen gépkocsibeálló is rendelkezésre áll, amely opcionálisan garázzsá alakítható (fedéssel, befalazással), az épület stílusához illeszkedve.
A hirdetett kulcsrakész ár tartalmazza:
• Fürdőszobai szanitereket (mosdó, kád, csaptelep, WC)
• Belső nyílászárókat
• Elektromos aljzatokat és kapcsolókat
• Burkolatokat
Külön kérésre választható: redőny, riasztórendszer, klímaberendezés és napelem rendszer.
• A konyhabútor és lámpák nem részei a vételárnak.

Irányár: 89 000 000-Ft

Ház típusok:
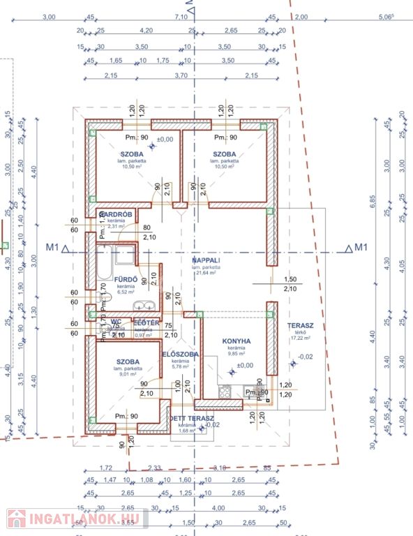
• A épület (földszintes): 78,9 m² | Terasz: 17,22 m² | Telek: 466 m²
Elrendezés: 3 szoba, nappali-étkező-konyha, háztartási helyiség, fürdő (kád és zuhanyzó), plusz vendég WC, gépkocsibeálló
Irány Ár: 89 M Ft
• B épület (földszintes): 78,9 m² | Terasz: 17,22 m² | Telek: 421 m²
Elrendezés: 3 szoba, nappali-étkező-konyha, háztartási helyiség, fürdő (kád és zuhanyzó), plusz vendég WC, gépkocsibeálló
Irányár Ár: 89 M Ft
További információkért, részletes műszaki dokumentációért és alaprajzokért forduljon bizalommal:
Posztlné Leiti Gabriella
Telefon: +36 30 503 00 00
Email: ingatlan@marcz.hu
Ha felkeltette érdeklődését, ne habozzon hívni minket! Segítünk a személyre szabott hitelügyintézésben, ügyvédi közreműködést biztosítunk, valamint energetikai tanúsítványt és értékbecslést is készítünk.
For English details, please contact us via message or email.

Családi ház részletei

Ár: 89 000 000 Ft
Méret: 79 négyzetméter
Azonosító: 11489041
Irodai azonosító: 378938
Cím: Lugosi utca
Telek: 466 négyzetméter
Ingatlan állapota: Átlagos
Jelleg: családi ház
Építőanyag: Tégla
Fűtés jellege: Geotermikus
Fűtés módja: Hőszivattyú
Komfort fokozat: Összkomfort
Kor: Új építésű
Szintek száma: Földszintes
Egész szobák: 4

Egyéb jellemzők

  • Csatorna
  • Garázs
  • Pince
  • Terasz

Térkép

Hasonló családi ház hirdetések

Eladó családi ház

Székesfehérvár

Új építésű, korszerű, önálló családiházak 450m2 kerttel! Otthon ...

Eladó családi ház

Székesfehérvár

Székesfehérvár kedvelt városrészén, Szárazréten kínálunk megvételre ...

Eladó családi ház

Székesfehérvár

Új építésű, korszerű, önálló családi házak 450m2 kerttel! Otthon ...

Eladó családi ház

Székesfehérvár, Váralja

BEFEKTETŐK, ÖSSZEKÖLTÖZŐK FIGYELMÉBE! Székesfehérvár csendes, családi ...

Hasonló családi ház hirdetések

Eladó családi ház

Székesfehérvár

Új építésű, korszerű, önálló családiházak 450m2 kerttel! Otthon ...

Eladó családi ház

Székesfehérvár

Székesfehérvár kedvelt városrészén, Szárazréten kínálunk megvételre ...

Eladó családi ház

Székesfehérvár

Új építésű, korszerű, önálló családi házak 450m2 kerttel! Otthon ...

Eladó családi ház

Székesfehérvár, Váralja

BEFEKTETŐK, ÖSSZEKÖLTÖZŐK FIGYELMÉBE! Székesfehérvár csendes, családi ...