Eladó családi ház Szentendre 155 000 000 Ft

Leírás

SZENTENDRÉN A BELVÁROSBAN ELADÓ EGY ÖNÁLLÓ CSALÁDI HÁZ!



KÖRNYÉK:



Szentendre gyönyörű belvárosában helyezkedik el a Fő tértől 16 perc sétára. A Duna korzó mindössze 14 perc sétával elérhető. A közelben számos étterem és bevásárlási lehetőség található. A legközelebbi buszmegálló 7 perc sétára található, ahonnan könnyen meglehet közelíteni a HÉV megállót. Egy központi, de mégis csendes, nyugodt helyen található.





A HÁZ JELLEMZŐI:



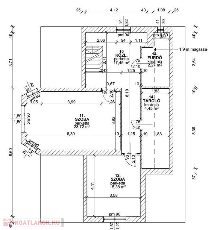
-A ház hasznos alapterülete: 170 nm

-A ház akár több generációra is átalakítható.

-A telek terület: 618 nm

-Az ingatlan az 1990-es években épült POROTHERM téglából.

-Nyílászárók kétrétegű műanyagból vannak.

-Parkolási lehetőséget telken belül egy fedett kocsibeálló nyújt.

-A fűtésért egy cirkó gázkazán felel.

-Az ingatlan állapota igény szerint felújítandó.

-A tetőt BRAMAC betoncserép fedi.









FINANSZÍROZÁS:

-Tehermentes, banki finanszírozással is megvásárolható, melyben irodánk ingyenes tanácsadással áll rendelkezésükre! VEVŐINK RÉSZÉRE A KÖZVETÍTÉS DÍJTALAN! A hirdetésben szereplő adatok tájékoztató jellegűek!

Családi ház részletei

Ár: 155 000 000 Ft
Méret: 170 négyzetméter
Azonosító: 11566640
Irodai azonosító: 23263
Telek: 618 négyzetméter
Ingatlan állapota: Felújítandó
Jelleg: családi ház
Építőanyag: Kérdezzen rá a hirdetőtől »
Fűtés jellege: Egyedi
Szintek száma: 1 szint
Egész szobák: 6

Hasonló családi ház hirdetések

Eladó családi ház

Szentendre

KIZÁRÓLAG A KÍNÁLATUNKBAN! Szentendre Belvárosában kínálom megvételre ...

Eladó családi ház

Szentendre

Szentendrén örökpanorámás kilátással! Szenetndrén, a SKANZEN felett ...

Eladó családi ház

Szentendre

Szentendre Pismányban 156 nm-es, 5 szobás családi ház eladó. Telek mérete: ...

Eladó családi ház

Szentendre

Szentendre Pismányban 190 nm-es családi ház eladó. Telek mérete: 719 nm. Terasz ...

Hasonló családi ház hirdetések

Eladó családi ház

Szentendre

KIZÁRÓLAG A KÍNÁLATUNKBAN! Szentendre Belvárosában kínálom megvételre ...

Eladó családi ház

Szentendre

Szentendrén örökpanorámás kilátással! Szenetndrén, a SKANZEN felett ...

Eladó családi ház

Szentendre

Szentendre Pismányban 156 nm-es, 5 szobás családi ház eladó. Telek mérete: ...

Eladó családi ház

Szentendre

Szentendre Pismányban 190 nm-es családi ház eladó. Telek mérete: 719 nm. Terasz ...