Eladó családi ház Szentendre 209 900 000 Ft

Leírás

Új építésű, 222 nm-es önálló családi ház eladó Szentendrén, Pismány csendes részén.



Telek mérete: 1076 nm.



Ház nettó alapterülete 170 nm.



Az ingatlan lakóövezetben található, elvehetetlen pazar panorámával rendelkezik.



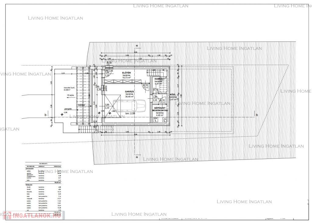
A pinceszinten/földszinten lett kialakítva a garázs + gépészeti helység, kamra, mosókonyha, előszoba.



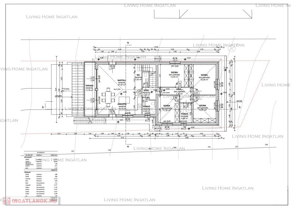
Az emeleten 4 tágas szoba és nagy üvegfelületekkel rendelkező amerikai konyhás nappali, valamint 2 fürdőszoba található.



Az épület kiváló minőségi alapanyagok felhasználásával készült. Az új tulajdonos ízlésének megfelelően fog elkészülni a hideg/meleg burkolat, beltéri ajtók.



Igény esetén napelemekkel és hőszivattyúval látható el, a lehetőség adott hozzá.



További extrák:



-12 cm-es hőszigetelés,



-műanyag 3 rétegű, 7 kamrás nyílászárók,



-beépített elektromos redőnyök,



-szúnyoghálók,



-padlófűtés,



-hőszivattyú és napelem előkészítés,



-riasztó,



-klíma,



-elektromos kapu,



Az ár az 5 %-os Áfát tartalmazza.



Az alaprajz és az adatok tájékoztató jellegűek. Bővebb tájékoztatást szívesen adok telefonon!



Amennyiben az ingatlan felkeltette az érdeklődését, kérem, keressen!



English: 



Newly built, detached, 222 sqm house for sale in Szentendre, in a quiet area of Pismány.



Plot size: 1076 sqm.



House net floor area 170 sqm.



The property is located in a residential area with an unobstructed panoramic view.



The garage + mechanical room, pantry, laundry room, entrance hall are located in the basement/ground floor.



On the first floor there are 4 spacious bedrooms and a living room with large glass surfaces, an American style kitchen and 2 bathrooms.



The building is constructed with high quality materials. The new owner will be able to taste the cold/hot tiling, interior doors.



If required, solar panels and heat pump can be installed, the possibility is given.



Additional extras:



-12 cm insulation,



-plastic 3-layer, 7-chamber windows and doors



-built-in electric shutters



-mesh screens



-floor heating



-heat pump and solar panel preparation



-alarm



-air conditioning



-electric gate



The price includes 5% VAT.



Floorplan and date are for information only! For more information please call me!



If you are interested in the property, please contact me!



 


Családi ház részletei

Ár: 209 900 000 Ft
Méret: 222 négyzetméter
Azonosító: 11498489
Irodai azonosító: 360651129-3
Telek: 1076 négyzetméter
Ingatlan állapota: Átlagos
Jelleg: családi ház
Építőanyag: Tégla
Fűtés jellege: Cirkó
Komfort fokozat: Összkomfort
Kor: Új építésű
Elhelyezkedés: Panorámás
Egész szobák: 5

Egyéb jellemzők

  • Csatorna
  • Garázs
  • Kábel TV
  • Padlás
  • Pince
  • Terasz

Hasonló családi ház hirdetések

Eladó családi ház

Szentendre

IGAZI DUNAI ÖRÖKPANORÁMA EGY GRANDIÓZUS LUXUS HÁZBÓL! SZENTENDRE SZÍVÉBEN, ...

Eladó családi ház

Szentendre

Eladó Luxus Otthon Szentendrén – Modern technológia és lenyűgöző panoráma! Szentendre ...

Eladó családi ház

Szentendre

Szentendre Izbég városrészén, örök panorámával rendelkező, közel ...

Eladó családi ház

Szentendre

IGAZI DUNAI ÖRÖKPANORÁMA EGY GRANDIÓZUS LUXUS HÁZBÓL! SZENTENDRE SZÍVÉBEN, ...

Hasonló családi ház hirdetések

Eladó családi ház

Szentendre

IGAZI DUNAI ÖRÖKPANORÁMA EGY GRANDIÓZUS LUXUS HÁZBÓL! SZENTENDRE SZÍVÉBEN, ...

Eladó családi ház

Szentendre

Eladó Luxus Otthon Szentendrén – Modern technológia és lenyűgöző panoráma! Szentendre ...

Eladó családi ház

Szentendre

Szentendre Izbég városrészén, örök panorámával rendelkező, közel ...

Eladó családi ház

Szentendre

IGAZI DUNAI ÖRÖKPANORÁMA EGY GRANDIÓZUS LUXUS HÁZBÓL! SZENTENDRE SZÍVÉBEN, ...