Eladó családi ház Szolnok 58 990 000 Ft

Leírás

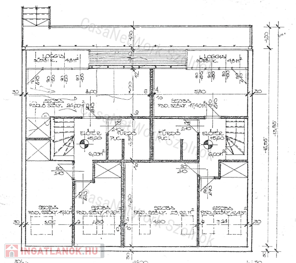
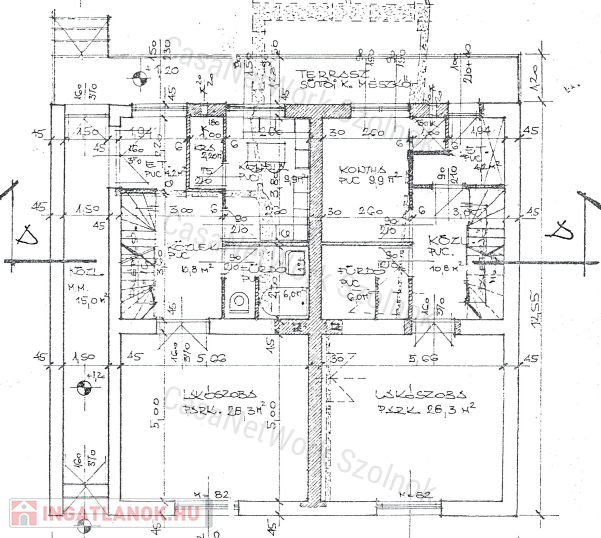
A Szolnoki CasaNetWork ingatlaniroda Szolnok belvárosában egy 131 m2-es ikerházat megvételre kínál!

Az eladó ingatlan főbb jellemzői:

- 130 m2-es telken helyezkedik el, amely teljesen körbe van kerítve 

- nettó lakótér : 131 m2 , a terasz 8 m2, az erkély 5 m2

- 1980-ban épült téglából, alapja beton

- a tető cseréppel borított

- az épület alsó részében egy két helyiségből álló 39 m2-es tágas pince található

dupla komfort jellemzi

- a nyílászárók fából készültek

- az ingatlan melegét és a meleg vizet kombi gázkazán biztosítja

- a ház elrendezése és elhelyezkedése kíváló lehetőségeket bíztosít

-  az épületben a következő helyiségek találhatók : előszoba, konyha, kamra, 2 fürdőszoba, közlekedő, előtér, és 4 teljes értékű szoba

- csendes, családias, barátságos szomszédok

- pár perces sétával gyalogosan is található a közelben: orvosirendelő, gyógyszertár, óvoda, iskola, abc, buszmegálló, étterem, buszpályaudvar, posta, stb...


 Amennyiben a fenti  155806510 -es azonosító számú eladó iker ház, vagy bármely kínálatunkban található ingatlan felkeltette érdeklődését, kérem hívjon bizalommal!

/A hirdetésben szereplő információk a megbízótól kapott adatok alapján készültek./

Irodánk teljes körű szolgáltatással áll ügyfelei rendelkezésére: hitelügyintézés, ügyvédi szolgáltatás, ingatlan értékbecslés, energetikai tanúsítvány készítése.

CasaNetWork - Ingatlanban otthon vagyunk!

Családi ház részletei

Ár: 58 990 000 Ft
Méret: 131 négyzetméter
Azonosító: 11583433
Irodai azonosító: 155806510
Telek: 130 négyzetméter
Ingatlan állapota: Átlagos
Jelleg: ikerház
Építőanyag: Tégla
Fűtés jellege: Cirkó
Fűtés módja: Gáz
Komfort fokozat: Dupla komfort
Bútorozott: Nem bútorozott
Egész szobák: 4

Hasonló családi ház hirdetések

Eladó családi ház

Szolnok

A szolnoki CasaNetWork Ingatlaniroda megvételre kínál Szolnok kertvárosi ...

Eladó családi ház

Szolnok

SZOLNOKON "BELESZERETŐS", KÜLÖNLEGES HÁZ ELADÓ Az eladó ház jellemzői: - ...

Eladó családi ház

Szolnok

Ha csendre, természetre és nyugalomra vágyik, megtalálta új otthonát!A ...

Eladó családi ház

Szolnok

A szolnoki Casanetwork Ingatlaniroda megvételre kínál Szolnokon, a Déli ...

Hasonló családi ház hirdetések

Eladó családi ház

Szolnok

A szolnoki CasaNetWork Ingatlaniroda megvételre kínál Szolnok kertvárosi ...

Eladó családi ház

Szolnok

SZOLNOKON "BELESZERETŐS", KÜLÖNLEGES HÁZ ELADÓ Az eladó ház jellemzői: - ...

Eladó családi ház

Szolnok

Ha csendre, természetre és nyugalomra vágyik, megtalálta új otthonát!A ...

Eladó családi ház

Szolnok

A szolnoki Casanetwork Ingatlaniroda megvételre kínál Szolnokon, a Déli ...