Miskolctól 25 km-re, Taktaharkányban 335.15 m²-esház, 417 m²-es telekkel!
Az ingatlan régebben irodaként volt hasznosítva, ennek megfelelően a földhivatali nyilvántartásban "kivett irodaház"-ként van nyilvántartva.
Ára: 26.910.000, -Ft+Áfa
Műszaki leírás:
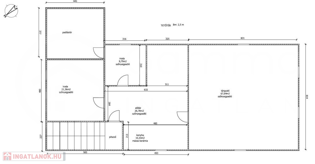
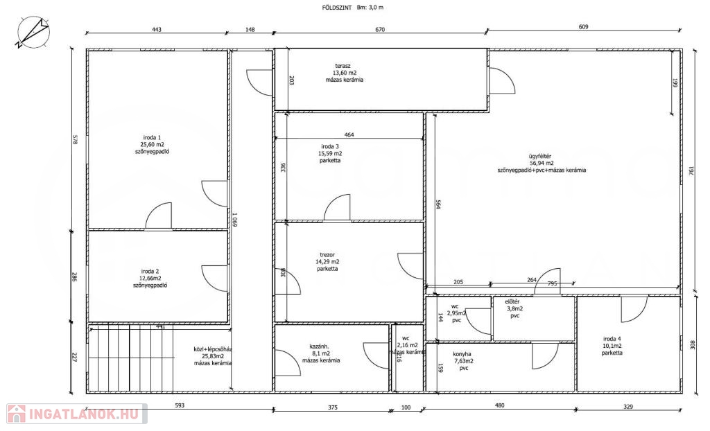
1972-ben épült, 1992-ben a felépítmény ki lett bővitve és a tetőteret beépítették. Kialakítása földszint + tetőtér tagolódású, tégla és gázszilikát vegyes falazatú, vasbeton gerendás födém szerkezetű, összetett nyeregtetős, cserépfedéses épület. Homlokzata kőporos vakolattal ellátott. Homlokzati nyílászárói fa szerkezetű ablakok, hőszigetelt üvegezéssel, közepes műszaki állapotban. Fűtése gázkazánnal, radiátor hőleadókkal megoldott. Melegvíz-ellátását gázbojler biztosítja. A helyiségek padló burkolata mázas kerámia, padlószőnyeg, PVC és parketta, közepes műszaki állapotban.
Környezet:
Az ingatlan a település központjában, a Magtár utcában található.
Környezetében üzletek, valamint lakóházak találhatóak.
Közlekedés:
Aszfaltozott úton megközelíthető.
Tömegközlekedés buszmegálló és vasútállomás kb. 700 m.
Ár: | 26 910 000 Ft+ÁFA |
Méret: | 335 négyzetméter |
Azonosító: | 11359290 |
Irodai azonosító: | 109656 |
Cím: | Taktaharkány |
Telek: | 417 négyzetméter |
Ingatlan állapota: | Jó |
Jelleg: | családi ház |
Építőanyag: | Kérdezzen rá a hirdetőtől » |
Fűtés jellege: | Cirkó |
Egész szobák: | 10 |
Ingatlanhírek kéthetente, e-mailben. Iratkozzon fel hírlevelünkre!