Eladó családi ház Telki 173 000 000 Ft

Leírás

Telkiben, természetközeli környezetben várja új tulajdonosát a fotókon látható teljes körűen felújított, panorámás családi ház, csendes zsákutcában.

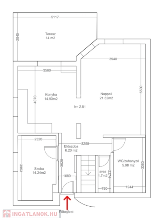
Az 530 négyzetméteres telekre épült, 151 nm-es kétszintes, nappali + 3 szobás, világos terekkel rendelkező, frissen, teljes körűen felújított, panorámás családi ház különleges értéke a Zsámbéki-medence felé nyíló panoráma, amely a mindennapoknak is egyedi hangulatot ad.
Budapest gyorsan elérhető: autóval körülbelül 20 perc, tömegközlekedéssel megközelítőleg fél óra. A buszmegálló gyalogosan mindössze néhány percre található a háztól.

A teljes felújítás nem csak a házat, hanem a teljes portát, a kert felújítását is jelenti, a munkálatok utolsó fázisai március végére fejeződnek be.
Ennek megfelelően a vevő kulcsátadáskor egy esztétikailag és minőségében egységes, új állapotú ingatlant vehet birtokba. A felújítás részletei és a műszaki tartalom rendelkezésre áll.

A földszinti a tágas, amerikai konyhás nappali közvetlen terasz és kert kapcsolatos. Ezen a szinten helyet kapott egy külön szoba is, amely ideális dolgozószobának, vendégszobának vagy gyerekszobának.
Az emeleten két hálószoba található, melyek közül az egyikből közvetlen kijárat nyílik a nagy méretű erkélyre. A panoráma innen a legszebb: zavartalan kilátás a zsámbéki-medencére, különösen kellemes reggel és naplemente idején.
A ház kényelmét növeli, hogy mindkét szinten külön fürdőszoba áll rendelkezésre: az alsó szinten praktikus zuhanyzós, míg a felső szinten egy kádas fürdőszoba biztosítja a komfortot.
Az egyik hálószobához gardróbhelyiség is kapcsolódik, emellett több praktikus tároló is rendelkezésre áll.

A konyha prémium AEG gépekkel felszerelt. A komfortot elektromos redőnyök és klímaberendezés növeli. A korszerű gázkazánnak köszönhetően az ingatlan gazdaságosan fenntartható.
Különlegességként a kert felőli részen egy klimatizált műhely/alkotótér is kialakításra került, amely hobbi- vagy kreatív tevékenységre kiváló.

A rendezett, gondozott kert pázsittal és dísznövényekkel parkosított, az itt kialakított grillhely kényelmes helyszín baráti és családi összejövetelekhez.
Az öntözést saját kút segíti, így a fenntartás költséghatékony.
A biztonságról riasztórendszer és kültéri kamerák gondoskodnak. A parkolást elektromos kapuval ellátott beálló(k) és fűtött garázs biztosítja.

Telki közkedvelt, biztonságos település, kiváló infrastruktúrával. A közelben elérhetők üzletek, szolgáltatások, sportolási lehetőségek (MLSZ edzőközpont) és tömegközlekedés is, miközben a természet közelsége a mindennapok része.
Az ingatlan ideális választás azoknak, akik felújított, panorámás, természetközeli otthont keresnek Budapest közvetlen közelében. Budapest gyorsan elérhető: autóval körülbelül 20 perc, tömegközlekedéssel, a buszmegálló gyalogosan mindössze néhány percre található a háztól.

Ha felkeltette érdeklődését és szeretné személyesen is látni, várom hívását a hét bármely napján.

BANKFÜGGETLEN hitelcentrumunk minden elérhető bank és hitelintézet ajánlatát versenyezteti az Ön kedvéért, ráadásul díjmentesen. Önnek nincs más dolga, mint elbeszélgetni munkatársunkkal, aki a hallott információk alapján versenyre hívja a bankokat, hogy Ön hosszú távon is a legjobb konstrukciót kaphassa. A legjobb ajánlatokból végül Ön választhatja ki a nyertest. Munkatársaink sokéves szakmai tapasztalattal várják Önt, előre egyeztetve akár a normál munkaidő után is.

Családi ház részletei

Ár: 173 000 000 Ft
Méret: 151 négyzetméter
Azonosító: 11599452
Irodai azonosító: 392653
Cím: Telki
Telek: 530 négyzetméter
Ingatlan állapota: Felújított
Jelleg: családi ház
Építőanyag: Tégla
Fűtés jellege: Cirkó
Fűtés módja: Gáz
Komfort fokozat: Dupla komfort
Kor: 11-20 éves
Szintek száma: 1 szint
Egész szobák: 4

Egyéb jellemzők

  • Csatorna
  • Garázs
  • Pince
  • Terasz

Térkép

Hasonló családi ház hirdetések

Eladó családi ház

Telki

Telkiben ÚJSZERŰ sorház jellegű, nappali + 4 szobás, DUPLA KOMFORTOS ...

Eladó családi ház

Telki

Telkiben kínálunk megvételre egy - új építésű - belső kétszintes ...

Eladó családi ház

Telki

Leírás BUDAKESZI VONZÁSKÖRZETÉBEN, PANORÁMÁS- ZSÁMBÉKI- MEDENCÉRE ...

Hasonló családi ház hirdetések

Eladó családi ház

Telki

Telkiben ÚJSZERŰ sorház jellegű, nappali + 4 szobás, DUPLA KOMFORTOS ...

Eladó családi ház

Telki

Telkiben kínálunk megvételre egy - új építésű - belső kétszintes ...

Eladó családi ház

Telki

Leírás BUDAKESZI VONZÁSKÖRZETÉBEN, PANORÁMÁS- ZSÁMBÉKI- MEDENCÉRE ...