Eladó családi ház Teskánd 89 900 000 Ft

Leírás

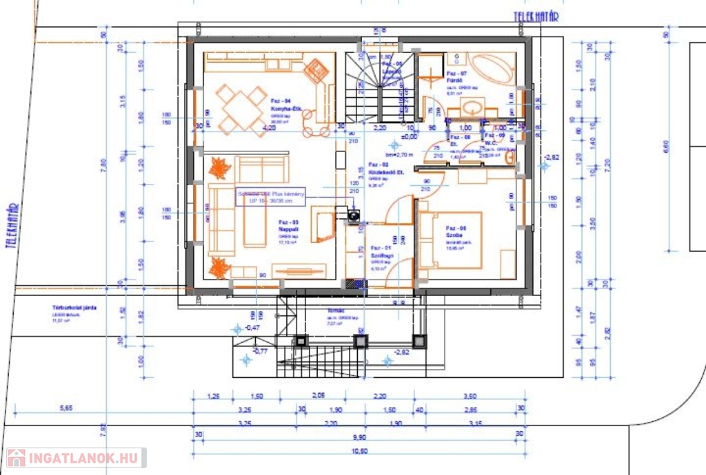
Teskánd egyik csendes utcájában keresi új tulajdonosát ez az ÚJ ÉPÍTÉSŰ TÉGLA családi ház, mely 2 szinten, 4 szobával, garázzsal, tárolóval rendelkezik!

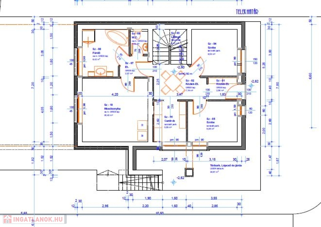
Az alsó szinten helyezkedik el kettő szoba, egy zuhanyzóval és fürdőkáddal felszerelt fürdőszoba, egy külön toalett, egy mosókonyha, egy gardrób, valamint a közlekedő.

A ház második szintjén egy tágas amerikai konyhás nappali került kialakításra, mely déli tájolásának köszönhetően mindig napfényes. Az ezen a szinten található fürdőszoba káddal és zuhanyzóval is felszerelt. A toalett külön helységben van. Ezen a szinten is van szoba, közlekedő és szélfogó.
Mindkét szintre van külön bejárat, tehát ideális választás lehet több generáció összeköltözésére is.

A 137 nm-es ingatlan 618 nm-es telken található. A területen egy 45 nm -es épület áll, garázs és tároló funkciókkal. A telek többi része számos lehetőséget kínál új tulajdonosának.

Az ingatlan jelenlegi állapotában is (90%-os készültségi fok) megvásárolható, de igény szerint kulcsrakész állapotban is átvehető!

Az otthon melegéről gáz cirkó kazán fog gondoskodni, padlófűtés és radiátoros hőleadással, de kialakításra került egy kémény is a kandallót kedvelők számára.

A ház 20 cm-es hőszigetelést kapott.
.
Ha szeretne egy békés, nyugodt környezetben élni úgy, hogy a város elérhető közelségben van, keressen bizalommal!

Ára: 89 900 00 Ft, mely a jelenlegi állapotra értendő.

Kérem érdeklődjön a további lehetőségekről!

Ajánlom Önnek, ha
- rövid időn belül beköltözhető, tehermentes ingatlant keres
- előnyben részesíti a csendet és nyugalmat a várossal szemben
- szeretné megtermelni a zöldséget és gyümölcsöt családja számára.

Hívjon és nézzük meg együtt!

Irodánk ingyenes hitel-tanácsadással és hitel ügyintézéssel, kedvező díjszabású ügyvéddel várja Ügyfeleinket.

Családi ház részletei

Ár: 89 900 000 Ft
Méret: 137 négyzetméter
Azonosító: 11462748
Irodai azonosító: 377106
Cím: Új építésű ház, jó áron!
Telek: 618 négyzetméter
Ingatlan állapota: Átlagos
Jelleg: családi ház
Építőanyag: Tégla
Fűtés jellege: Cirkó
Fűtés módja: Gáz
Komfort fokozat: Összkomfort
Kor: Új építésű
Szintek száma: 1 szint
Egész szobák: 2
Fél szobák: 2

Egyéb jellemzők

  • Csatorna
  • Garázs
  • Pince
  • Terasz

Térkép

Hasonló családi ház hirdetések

Eladó családi ház

Teskánd

Teskándon, Zalaegerszegtől 5 km-re új építésű IKERHÁZ eladó. Nem ...

Hasonló családi ház hirdetések

Eladó családi ház

Teskánd

Teskándon, Zalaegerszegtől 5 km-re új építésű IKERHÁZ eladó. Nem ...