Eladó családi ház Tordas 59 900 000 Ft

Leírás


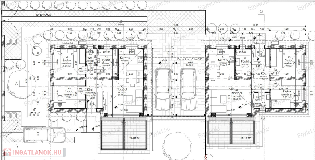
Megvételre kínálunk Tordas egyik legszebb részén, egy HÓSZIVATTYÚS, új építésű, nettó 57 nm-es, + 16 nm-es terasszal, 3 szobás, fürdő + külön WC-s, AJÁNDÉK DUPLA GARÁZZSAL, ikerházat. Minőségi alapanyagokból, igényes kivitelezés jellemzi a projektet, ahol a biztonság és a kényelem mellett az energiatakarékosság volt a fő szempont. A ház átgondolt tervezésének köszönhetően kényelmes, otthonos, szellős, viszont ugyanakkor bővelkedik a reprezentatív, elegáns elemekkel.

Az ingatlan külső falazata a körszerű Viablokk technológiával épül.



Az otthon melegéről, valamint a használati melegvíz ellátásáról egy modern, energia takarékos, innovatív levegő-víz hőszivattyú gondoskodik, akár H tarifás üzemeltetéssel.

Ennek köszönhetően a rezsi költségek minimalizálódnak.

A Viablokk falazó rendszer előnyei a teljesség igénye nélkül: Rendkívül hatékony hő és hangszigetelő, hőhídmentes, kizárólag természetes anyagokat tartalmaz….stb.

A hőmérséklet helyiségenként állítható.



Ennél a beruházásnál most lehetősége van kompromisszumok nélkül egy olyan ingatlanba költözni, ahol Ön kiválaszthatja a hideg és melegburkolatokat, szanitereket, beltéri ajtókat, valamint az egyéb kiegészítőket a családja legnagyobb megelégedésére, ez által személyre szabva álmai otthonát.



Az ingatlanhoz 477 nm-es privát telek tartozik.



Az épületek csak a garázsoknál érnek össze.



AJÁNDÉK DUPLA GARÁZZSAL!



Igénybe vehető lehetséges kedvezmények:

CSOK

5% Áfa visszatérítés

Babaváró hitel

Illeték kedvezmény vagy mentesség.



Az ingatlan árát a kulcsrakész állapotra adtuk meg, 2025. decemberi költözéssel.



Helyiség lista:

- Közlekedő

- WC

- Két hálószoba

- Fürdőszoba

- Amerikai konyha,

- Étkező

- Nappali

- Terasz

- Dupla garázs



Minden telken, társasházi okirattal, betétesített helyrajzi számon 2 lakóegység kerül kialakításra. (Egyedi megoldás is kérhető személyes konzultáció során!)

A telek teljes mérete: 800 nm



Budapest és a Velencei-tó 15 perc, Balaton 40 perc alatt elérhető!



Az ingatlan biztonságos, nyugodt, csendes, kertes házas övezetében, Tordas egyik legszebb részén található. A környék fejlett infrastruktúrájának köszönhetően bővelkedik a szociális intézményekben, bölcsőde, óvoda, általános iskola, orvosi intézmények, bevásárlási lehetőségek, találhatóak a közelben.



Közlekedése kiváló, az M7-es autópálya rövid alatt elérhető.



Hitel, CSOK igénylésben díjmentes ügyintézéssel állunk rendelkezésére! Nálunk kiválaszthatja az Ön számára legkedvezőbb ajánlatot.



Várom megtisztelő érdeklődésüket.

Családi ház részletei

Ár: 59 900 000 Ft
Méret: 57 négyzetméter
Azonosító: 11533248
Irodai azonosító: 209001868
Telek: 477 négyzetméter
Ingatlan állapota: Kitűnő
Jelleg: ikerház
Építőanyag: Kérdezzen rá a hirdetőtől »
Komfort fokozat: Összkomfort
Kor: Új építésű
Egész szobák: 3

Hasonló családi ház hirdetések

Eladó családi ház

Tordas

Megvételre kínálunk Tordas egyik legszebb részén, egy ...

Hasonló családi ház hirdetések

Eladó családi ház

Tordas

Megvételre kínálunk Tordas egyik legszebb részén, egy ...