Eladó családi ház Törökbálint 155 000 000 Ft

Leírás

Törökbálinton, kedvelt utcában modern, energiatakarékos ikerház eladó!

Tapasztalt kivitelező által épített, minőségi kialakítású ikerház egyik egysége még elérhető Törökbálint nyugodt, családi házas környezetében. A beruházó több sikeres referenciával rendelkezik a környéken.

Főbb jellemzők:

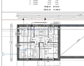
Bruttó alapterület: 125 m²

10 m² terasz

4 m² erkély

1 garázs

Az ingatlan praktikus elosztásának és nagy üvegfelületeinek köszönhetően világos, tágas életteret biztosít, ideális választás családok számára.

Helyiségek:

Nappali + 3 hálószoba + fürdőszoba + külön WC + háztartási helyiség + garázs + terasz + erkély + saját kertkapcsolat.

Műszaki tartalom:

30 cm-es kerámia falazat

15 cm homlokzati hőszigetelés

Vasbeton födém, kőzetgyapot szigeteléssel

Hőszivattyús rendszer biztosítja a fűtést és a melegvizet

Padlófűtés hőleadással

Nagyméretű, háromrétegű nyílászárók redőny előkészítéssel

Klíma kiállás

Riasztó és motoros kapu előkészítés

Beltéri ajtók, burkolatok és szaniterek a vevő igényei szerint választhatók

Várható átadás: 2025. december

Elhelyezkedés:
Az ingatlan kiváló lokációval rendelkezik: az M1 és M7 autópályák mindössze 3 perc alatt elérhetők, a közelben óvoda, bolt, sportcentrum és több közlekedési lehetőség is megtalálható.

A beruházó az ingatlanokat saját kivitelezésben építi, több megtekinthető referenciával.

Finanszírozás:
Igény esetén bankfüggetlen hitelcentrumunk díjmentesen segít megtalálni a legkedvezőbb hitelajánlatot több mint 20 bank kínálatából.

Családi ház részletei

Ár: 155 000 000 Ft
Méret: 111 négyzetméter
Azonosító: 11604855
Irodai azonosító: 393447
Cím: Modern technológia!
Telek: 110 négyzetméter
Ingatlan állapota: Kitűnő
Jelleg: ikerház
Építőanyag: Tégla
Fűtés jellege: Geotermikus
Fűtés módja: Hőszivattyú
Komfort fokozat: Dupla komfort
Kor: Új építésű
Szintek száma: 1 szint
Egész szobák: 4

Egyéb jellemzők

  • Csatorna
  • Garázs
  • Pince
  • Terasz

Térkép

Hasonló családi ház hirdetések

Eladó családi ház

Törökbálint

Törökbálinton egy telken két ház eladó! Az épületek tetőtér beépítésesek, ...

Eladó családi ház

Törökbálint

A PIACON JELENLEG A LEGJOBB AJÁNLAT ÉS NÉGYZETMÉTERÁR, ÁR/ÉRTÉK ARÁNY ...

Hasonló családi ház hirdetések

Eladó családi ház

Törökbálint

Törökbálinton egy telken két ház eladó! Az épületek tetőtér beépítésesek, ...

Eladó családi ház

Törökbálint

A PIACON JELENLEG A LEGJOBB AJÁNLAT ÉS NÉGYZETMÉTERÁR, ÁR/ÉRTÉK ARÁNY ...