Eladó családi ház Tura 55 000 000 Ft

Leírás

CasaNetWork Ingatlaniroda Gödöllő Ingatlaniroda kínálatában eladó azonnal költözhető családi ház Turán – tágas terek, modern műszaki háttér, otthonos hangulat

Eladó Turán, a Vasútújtelep csendes, barátságos utcájában egy belülről felújított, 90 m²-es, világos és modern családi ház, nagy 955 m²-es telekkel. A ház ideális választás lehet mindazok számára, akik szeretik a nyugodt vidéki életet, de fontos számukra Budapest gyors megközelíthetősége.

A HÁZ FŐBB ELŐNYEI – Kényelmes, modern és megbízható

A felújítás a legfontosabb műszaki elemekre is kiterjedt, így az ingatlan hosszú távon biztonságos és gazdaságosan fenntartható.

Vadonatúj műszaki tartalom:

  • Teljesen új víz- és csatornarendszer, új villanybojler
  • Új, bővített elektromos hálózat, modern Schneider kapcsolószekrénnyel
  • 3 fázis (32A) és éjszakai áram
  • Minden kábelezés új, biztonságos, jól átlátható rendszerben
  • 3 db Gree Comfort X hűtő-fűtő klíma – alacsony költségű H-tarifa igényelhető
  • Teljes tetőcsere, új héjalással
  • 3 rétegű üvegezésű műanyag nyílászárók
  • Új aljzatbeton betonhálóval, vízszigeteléssel, és modern burkolatokkal
  • Álmennyezet új szerkezettel, kiváló hő- és hangszigeteléssel

Átgondolt, családi életre tervezett terek.

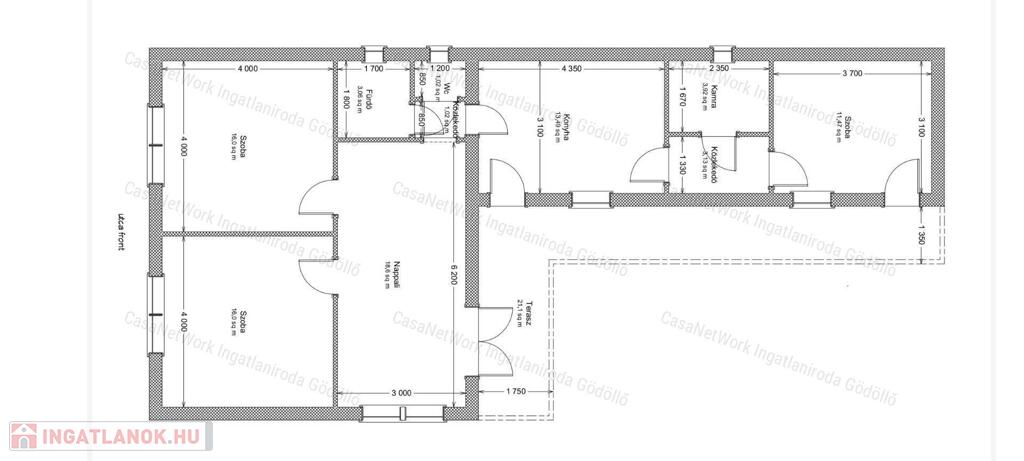
Az ingatlan praktikus és élhető elrendezést kínál, amely a mellékelt alaprajzon is jól látható:

  • 3 szoba (két utcafronti 16 m²-es, és egy 11,5 m²-es ~ felújítandó)
  • Tágas, 18,6 m²-es nappali
  • Külön konyha + kamra
  • Külön fürdőszoba és WC
  • Két közlekedő, jól elkülönített funkcionális zónákkal
  • Hangulatos, 21,1 m²-es terasz – tökéletes pihenésre
  • Száraz pince, amely az egyik melléképületből érhető el

A belső tér világos, tágas, igényesen felújított – a nappaliban modern lámpatestek és meleg hatású burkolat teremtenek otthonos hangulatot.

A nagy méretű 955 m2-es telek számos lehetőséget kínál:

  • kertészkedés
  • állattartás
  • játszótér vagy medence
  • további melléképületek kialakítása 
  • akár vállalkozásra is alkalmas beton alap a hátsó kertben

A telek csendes, a szomszédok rendezettek, a környék békés és családias.

Kiváló elhelyezkedés – minden elérhető, mégis nyugodt

  • Budapest: 50 km, autóval 40–45 perc
  • M3 autópálya könnyen elérhető
  • Vasútállomás és buszmegálló: 5 perc séta (kb. 800 m)
  • A településen: iskola, óvoda, gyógyszertár, orvosi rendelő, Penny, Spar

A jó közlekedésnek köszönhetően akár ingázóknak is ideális választás. Ez az otthon készen áll új lakóira – modern, praktikus és szerethető.

Ingyenes hitel tanácsadással, ügyvédi kapcsolattal és rugalmas időbeosztással állunk kedves ügyfeleink rendelkezésére! CASANETWORK - Ingatlanban otthon vagyunk

Családi ház részletei

Ár: 55 000 000 Ft
Méret: 90 négyzetméter
Azonosító: 11584279
Irodai azonosító: 166401932
Telek: 955 négyzetméter
Ingatlan állapota:
Jelleg: családi ház
Építőanyag: Vályog
Fűtés jellege: Villany
Fűtés módja: Villany
Komfort fokozat: Összkomfort
Bútorozott: Nem bútorozott
Egész szobák: 3

Hasonló családi ház hirdetések

Eladó családi ház

Tura

ÚJ ÉPÍTÉSŰ IKERHÁZ TURA FREKVENTÁLT RÉSZÉN! Megvételre kínálok ...

Eladó családi ház

Tura

Megvételre kínálunk Tura egyik legszebb részén, aszfaltozott ...

Eladó családi ház

Tura

2 TELJES ÉRTÉKŰ HÁZ 1 ÁRÁÉRT!!! Megvételre kínálok Tura tóparti ...

Eladó családi ház

Tura

JÓ ÁLLAPOTÚ KERTVÁROSI CSALÁDIHÁZ TURÁN !!! Megvételre kínálok, ...

Hasonló családi ház hirdetések

Eladó családi ház

Tura

ÚJ ÉPÍTÉSŰ IKERHÁZ TURA FREKVENTÁLT RÉSZÉN! Megvételre kínálok ...

Eladó családi ház

Tura

Megvételre kínálunk Tura egyik legszebb részén, aszfaltozott ...

Eladó családi ház

Tura

2 TELJES ÉRTÉKŰ HÁZ 1 ÁRÁÉRT!!! Megvételre kínálok Tura tóparti ...

Eladó családi ház

Tura

JÓ ÁLLAPOTÚ KERTVÁROSI CSALÁDIHÁZ TURÁN !!! Megvételre kínálok, ...