Eladó családi ház Tura 69 300 000 Ft

Leírás

Legyen részese Tura új lakóparkjának kiépülésében!

Tura új lakóparkjában 2026 év elején kezdődő építkezés, bruttó 98m2-es ikerház, a hozzá tartozó 350nm-es telkével vált ELADÓVÁ!
A 16nm-es fedett terasz, illetve a 8nm-es tároló mellett a lakóingatlan nettó 75nm-es nagysággal rendelkezik.
Nagyszerű kivitelezés verhetetlen áron!
Napfényes, tágas terek, jó elrendezés és alakíthatóság jellemzi az ingatlant!Igazi álomotthon vált belőle az profi, stílusos tervek mellett mesteri kivitelezéssel!
Az építkezés az első fázisban van (tervezés) így előreláthatólag 2026. szeptember hónapjára költözhetővé válik!
Az ikerházak közös falai hangszigetelővel lettek ellátva, a födém belső falakkal míg a kert kerítéssel lesznek ellátva biztosítva az elszeparált életteret.
A két lakást egy tároló és egy garázs kapcsolja össze így a szomszédt egyáltalán nem lehet hallani.
A tervezés során nagy hangsúlyt fektettek a hatalmas mennyiségű fény beáramlásába ezért rengeteg nagyméretű nyílászárót építettek be.
Gáz kombicirkó biztosítja a melegvizet és a padlófűtést.
Nívós fal és padlóburkolatokat helyeztek el a fürdőszobáktól kezdve(2 darab is található a lakásban így duplakomfortos) a napaliig.
A telek jobb oldalán a bejutást biztosító szolgalmi út lesz kialakítva az első és a második lakás részére.
Jelen ingatlan az utcafronttól számítva az első lakás.
Az utca túloldalán a helyi önkormányzat által szabadidős edzőpályák és gyermekeknek játszótér kerül átadásra a közeljövőben.

Az ikerház és a telek főbb adatai:
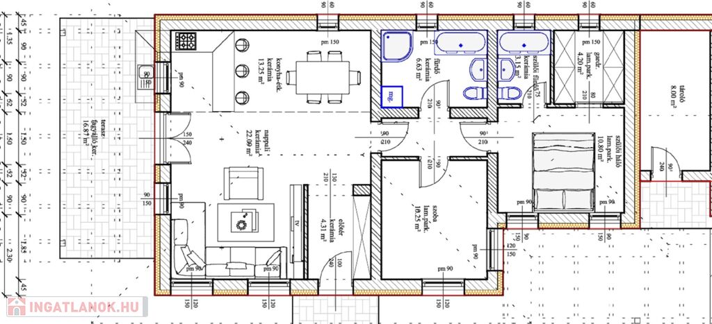
-bruttó 98nm-es ikerház( 2 lakószobával,2 fürdőszobával(duplakomfortos), tárolóval, közlekedővel és amerikai konyhás nappali(16nm-es fedett terasz, 8nm-es tároló és 75nm-es lakóingatlan
-350nm-es telek jár hozzá
-30-as Porotherm téglából épül
-10cm külső hőszigetelés
-20cm födémszigetelés
-műanyag nyílászárók 3 rétegű/ 7 légkamrás thermo kivitelben
-2026-ös év elején kezdődik az építkezés
-nívós padló és falburkolatok
-gáz kombicirkó (padlófűtés)
-igényes tervezés és természetesen precíz kivitelezés!

Közlekedése:
-buszmegálló 8 perc alatt elérhető autóval
-Budapest 35 perc alatt, viszonylag gyorsan érhető el autóval.

Legyen az lakhatás vagy csak befektetési lehetőség, bármit keres, itt megtalálhatja számításait.
Jöjjön el, nézze meg és lássa meg a benne rejlő potenciált!
Csendes, madárcsicsergős környék rendkívül barátságos szomszédokkal.

Nagyszerű választás, szuper ár-érték arányban, igazi álomotthon.
Minden nap elérhető vagyok, hívjon, egyeztessünk időpontot az ingatlan megtekintésére!

Örömmel segítünk Önnek leendő OTTHONUK vagy BEFEKTETÉSÜK megtalálásában, miközben jelenlegi ingatlanuk értékesítését is zökkenőmentesen lebonyolítjuk Magyarország egész területén!
Keressen minket bizalommal!
(További képekért és információkért kérem hívjon!)

Családi ház részletei

Ár: 69 300 000 Ft
Méret: 98 négyzetméter
Azonosító: 11598142
Irodai azonosító: 069879
Telek: 350 négyzetméter
Ingatlan állapota: Kitűnő
Jelleg: ikerház
Építőanyag: Tégla
Fűtés jellege: Cirkó
Egész szobák: 3
Nappalik: 1

Egyéb jellemzők

  • Beépíthető tetőtér
  • Csatorna
  • Garázs
  • Melléképület
  • Pince
  • Terasz

Hasonló családi ház hirdetések

Eladó családi ház

Tura

ÚJ ÉPÍTÉSŰ IKERHÁZ TURA FREKVENTÁLT RÉSZÉN! Megvételre kínálok ...

Eladó családi ház

Tura

IGÉNYES FELÚJÍTÁS, KÍVÁLÓ ELRENDEZÉS! Megvételre kínálok Tura közkedvelt ...

Hasonló családi ház hirdetések

Eladó családi ház

Tura

ÚJ ÉPÍTÉSŰ IKERHÁZ TURA FREKVENTÁLT RÉSZÉN! Megvételre kínálok ...

Eladó családi ház

Tura

IGÉNYES FELÚJÍTÁS, KÍVÁLÓ ELRENDEZÉS! Megvételre kínálok Tura közkedvelt ...