Eladó családi ház Újszentiván 74 990 000 Ft

Leírás

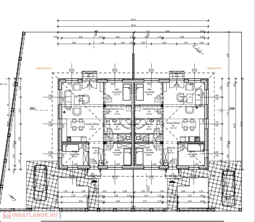
ÚJ ÉPÍTÉSŰ IKERHÁZ ÚJSZENTIVÁN MAJOR LAKÓPARKBAN – KÖLTÖZÉS MÁR IDÉN NYÁRON!

Újszentiván közkedvelt Major lakóparkjában kínálunk megvételre egy új építésű, tégla ikerházat, amely ideális választás családoknak vagy azoknak, akik modern, nyugodt környezetben szeretnének élni.

Főbb jellemzők:

- nettó 80 m² lakótér

- amerikai konyhás nappali

- 3 külön nyíló hálószoba

- saját kertkapcsolat

- kocsibeálló

- praktikus, jól átgondolt alaprajz

- kulcsrakész állapot

Az ingatlan korszerű műszaki tartalommal, minőségi anyaghasználattal készül, így új tulajdonosa valóban csak beköltözik és élvezi az otthon nyugalmát.

Kulcsrakész bruttó ár: 74.990.000 Ft

✨ Ha egy új, energiatakarékos, gondozott környezetben lévő otthont keres, ahol már idén nyáron elkezdheti az új életét, ezt az ingatlant mindenképp látnia kell!

Műszaki leírásért és további részletekért keressen bizalommal!

Családi ház részletei

Ár: 74 990 000 Ft
Méret: 80 négyzetméter
Azonosító: 11589801
Irodai azonosító: 390650
Cím: Fürj utca
Telek: 250 négyzetméter
Ingatlan állapota: Kitűnő
Jelleg: ikerház
Építőanyag: Tégla
Fűtés jellege: Geotermikus
Fűtés módja: Hőszivattyú
Komfort fokozat: Összkomfort
Kor: Új építésű
Szintek száma: Földszintes
Egész szobák: 4

Egyéb jellemzők

  • Csatorna
  • Garázs
  • Pince
  • Terasz

Térkép

Hasonló családi ház hirdetések

Eladó családi ház

Újszentiván

Tökéletes családi otthon Újszentiván egyik legjobb utcájában! Eladó ...

Hasonló családi ház hirdetések

Eladó családi ház

Újszentiván

Tökéletes családi otthon Újszentiván egyik legjobb utcájában! Eladó ...