Eladó családi ház Üllő 99 900 000 Ft

Leírás


Megvételre kínálunk Üllőn egy új építésű, hőszivattyús, 120 m²-es, teraszos, 5 szobás, dupla komfortos, gardróbos, családiházat. Megvételre kínálunk Üllőn egy új építésű, hőszivattyús, 120 m²-es, teraszos, 5 szobás, dupla komfortos, gardróbos, családiházat. A ház tájolása és elosztása kiváló, tágas, világos, nyitott nagy terekkel rendelkezik.

 

Az ingatlan igényes kivitelezéssel, minőségi alapanyagokból, átgondolt tervezéssel, egyedi belső kialakítással készült, ahol a kényelem és az átgondolt tervezés mellett az energia takarékosság volt a fő szempont. Az ingatlan nappalija egy 14 nm-es teraszon keresztül kertkapcsolatos. Az otthon klímájáról egy modern, energia takarékos, innovatív levegő-víz hőszivattyú gondoskodik. A hőszivattyú a padlón fűt vagy hűt, így télen-nyáron egyöntetű kellemes a hőmérséklet. A használati melegvíz ellátás okos bojlerről történik.

 

A ház egy nagyobb telken fekszik, melyből kb. 300 nm privát kert. Gépjármű beállási lehetőségével a térkövezett gépjármű beállón lehet biztonságosan parkolni.

 

A kulcsrakész ár tartalmazza az elektromos redőny előkészítést, három rétegű nyílászárókat, riasztó előkészítést, kaputelefon és motoros kapu kiépítést, valamint a klíma előkészítés kiépítését.

 

PÁR HÉTEN BELÜL KÖLTÖZHETŐ!

 

Igénybe vehető lehetséges kedvezmények:

- CSOK

- 5% Áfa visszatérítés

- Babaváró hitel

- Illeték kedvezmény vagy mentesség

 

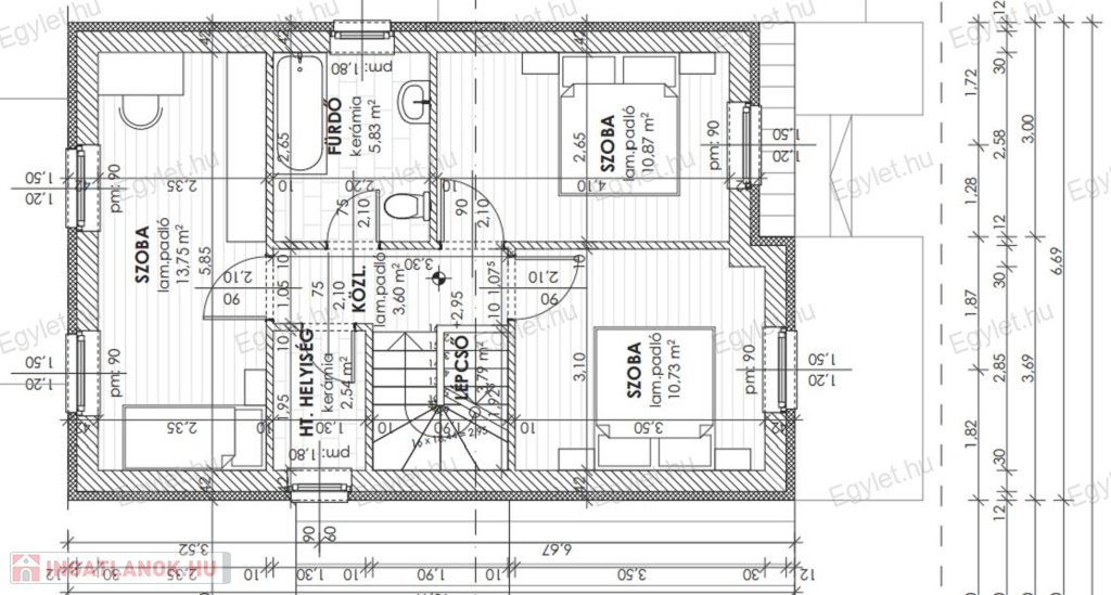
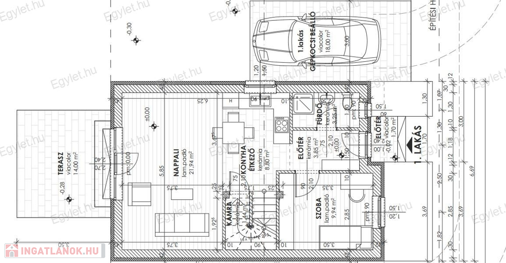
Helyiség lista a földszinten:

- Előtér

- Fürdőszoba

- Amerikai konyha

- Étkező

- Kamra

- Nappali 

- Szoba

- Terasz

 

Helyiség lista az emeleten:

- Lépcsőház

- Fürdőszoba

- Közlekedő

- Gardrób

- Szoba

- Szoba

- Szoba

 

Az ingatlan biztonságos, kertes házas övezetben, Üllő egyik legkedveltebb lakóparkjában található. Közlekedése kiváló, busszal Budapest, vagy vonattal a Nyugati pu. rövid idő alatt megközelíthető. A környék fejlett infrastruktúrájának köszönhetően bővelkedik a szociális intézményekben, bölcsőde, óvoda, általános iskola, orvosi intézmények, bevásárlási lehetőségek, találhatóak a közelben.

 

Hitel, CSOK igénylésben díjmentes ügyintézéssel állunk rendelkezésére!

Várom megtisztelő érdeklődésüket.

Családi ház részletei

Ár: 99 900 000 Ft
Méret: 120 négyzetméter
Azonosító: 11533553
Irodai azonosító: 209001882
Telek: 300 négyzetméter
Ingatlan állapota: Kitűnő
Jelleg: családi ház
Építőanyag: Tégla
Komfort fokozat: Dupla komfort
Kor: Új építésű
Egész szobák: 5

Hasonló családi ház hirdetések

Eladó családi ház

Üllő

ELADÓ HŐSZÍVATTYÚS ÚJÉPÍTÉSŰ, KÜLÖNÁLLÓ családi ház Üllő központjában, ...

Eladó családi ház

Üllő

Álmai Otthona Üllőn! Fedezze fel az új építésű, modern családi házak ...

Eladó családi ház

Üllő

Üllő városának állomás közeli részén ...

Eladó családi ház

Üllő

Eladó teljeskörűen felújított álomotthon Üllőn!Üllő egyik legkedveltebb, ...

Hasonló családi ház hirdetések

Eladó családi ház

Üllő

ELADÓ HŐSZÍVATTYÚS ÚJÉPÍTÉSŰ, KÜLÖNÁLLÓ családi ház Üllő központjában, ...

Eladó családi ház

Üllő

Álmai Otthona Üllőn! Fedezze fel az új építésű, modern családi házak ...

Eladó családi ház

Üllő

Üllő városának állomás közeli részén ...

Eladó családi ház

Üllő

Eladó teljeskörűen felújított álomotthon Üllőn!Üllő egyik legkedveltebb, ...