Eladó családi ház Üllő 105 000 000 Ft

Leírás

**ELADÓ HŐSZÍVATTYÚS ÚJÉPÍTÉSŰ, KÜLÖNÁLLÓ családi ház Üllőn, csendes kertvárosi környezetben.**

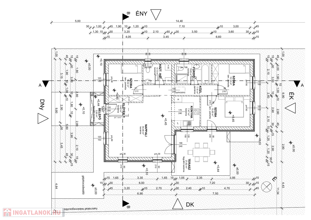
Az ingatlan 465 m2-es TELKEN helyezkedik el, NETTÓ 94 m2 EGYSZINTES, téglaépítésű.
A nagyméretű AMERIKAI KONYHÁS NAPPALI mellett három különálló szoba is megtalálható.

Az elegáns belső terekben a nappaliból és az egyik hálóból nyílik a tágas, 22m2-es TERRASZ, ahol kiválóan lehet pihenni.

Az egész házat a MINŐSÉGI KIVITELEZÉS és gondos odafigyelés hatja át, ami a műszaki adatokban is megjelenik, így garantált a kiváló ÉLETMINŐSÉG!

Az épület modern technológiai megoldásokat alkalmaz: a világ egyik vezető gyártójának a STIEBEL ELTRON HŐSZIVATTYÚS rendszere biztosítja az otthon melegét és gondoskodik a meleg víz ellátásáról is. ENERGIATAKARÉKOS megoldás, így AZ ALACSONY REZSI garantált!

**A ház **
Kulcsrakész állapotban 105M Ft-ért vásárolható meg, a várható átadás ideje 2026.november vége.
Környezetből nem hiányzik semmi: bölcsőde, óvoda, iskola, edzőparkok, üzletek és a városközpont csak pár perces sétára vannak.
Közlekedés szempontjából ideális elhelyezkedéssel rendelkezik: GYALOG 10 PERCRE a helyi buszmegálló és a vasútállomás, ahonnan Kőbánya-Kispestre és a Nyugati pályaudvarra utazhatunk. Gépjárművel az M5, M4, M0 autópályákon elérhető az uticélunk.

Épület Jellemzői:
• Falazat: 30-as N+F Leier tégla
• Homlokzati szigetelés: 15cm vastagságú EPS, padozat alatt 15 cm lépésálló EPS
• Födémszigetelés: 30 cm ásványgyapot
• Lábazati szigetelés: 8 cm xps
• Gépészet: A teljes házban padlófűtés, a nappaliban, konyhában, szobákban mennyezeti hűtés/fűtés, vagy igény szerint klíma. Minden helyiség külön termosztátról szabályozható.
• A fürdőszobában elektromos patronos radiátor, idő és páraérzékelős szellőző ventilátor.
A nappaliban inverteres klíma kiépítése(levegő cserélése,szárítása miatt), a 3db szobában és a konyhában az ablakokba EMM 716 aereco szellőztetés beépítés.

• Nyílászárók: fehér műanyag Kömmerling 5 kamrás 3 rétegű üvegezéssel, alumínium elektromos redőnnyel.
• Gépészeti helyiség: Stiebel Eltron levegő-víz hőszivattyú + tartozékai, mosógép +szárítógép kiállás.
• Villanyszerelés: lakás ellátása 3*20A + 1x20A H tarifa.
• Tető héjazat: antracit Bramac cserép.
Csempe és padlóburkolatok választhatóak, egységesen 7000 Ft/m2 bruttó értékig, meleg burkolatot 5000 Ft/m2 bruttó értékig állja a vállalkozó (burkolatok ára a ragasztón, élvédőn, egyéb segédanyagokon kívül értendő, a segédanyagokat a vállalkozó biztosítja)
Belső ajtók: a dekorfóliás beltéri ajtó kínálaton kívül is választhatóak, bruttó 75.000 Ft/db értékig, kilincsekkel és beépítéssel együtt.
A felmerülő külön igények teljesítésére is van lehetőség, amit a kivitelezővel külön kell egyeztetni.
A műszaki leírás a képek között megtalálható.

Kedvezmények: OTTHON START hitel,CSOK+, állami kamattámogatású lakáshitel, illetékmentesség, DÍJMENTES ÜGYINTÉZÉS és egyedi kedvezmények várják a vásárlókat!

Ne hagyja ki ezt a kivételes lehetőséget: VEGYE MEG ÚJ OTTHONÁT Üllő szívében!
További információért keressen bizalommal!

Családi ház részletei

Ár: 105 000 000 Ft
Méret: 94 négyzetméter
Azonosító: 11600812
Irodai azonosító: 392796
Cím: 2026. novemberi birtokba adás!
Telek: 465 négyzetméter
Ingatlan állapota: Kitűnő
Jelleg: családi ház
Építőanyag: Tégla
Fűtés jellege: Geotermikus
Fűtés módja: Hőszivattyú
Komfort fokozat: Összkomfort
Kor: Új építésű
Szintek száma: Földszintes
Egész szobák: 4

Egyéb jellemzők

  • Csatorna
  • Garázs
  • Pince
  • Terasz

Térkép

Hasonló családi ház hirdetések

Eladó családi ház

Üllő

Álmai Otthona Üllőn! Fedezze fel az új építésű, modern családi házak ...

Eladó családi ház

Üllő

Eladó teljeskörűen felújított álomotthon Üllőn!Üllő egyik legkedveltebb, ...

Eladó családi ház

Üllő

Megvételre kínálunk Üllőn egy új építésű, hőszivattyús, ...

Eladó családi ház

Üllő

Üllő városának állomás közeli részén ...

Hasonló családi ház hirdetések

Eladó családi ház

Üllő

Álmai Otthona Üllőn! Fedezze fel az új építésű, modern családi házak ...

Eladó családi ház

Üllő

Eladó teljeskörűen felújított álomotthon Üllőn!Üllő egyik legkedveltebb, ...

Eladó családi ház

Üllő

Megvételre kínálunk Üllőn egy új építésű, hőszivattyús, ...

Eladó családi ház

Üllő

Üllő városának állomás közeli részén ...