Eladó családi ház Üllő 115 100 000 Ft

Leírás

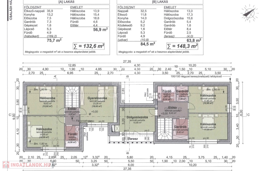
Eladó Üllőn egy 148,3m2-es 4 szobás újépítésű ikerház, ami kulcsrakész állapotban kertrendezéssel együtt kerül átadásra.

Az épületet tágas terek jellemzik, ami kényelmet biztosít az egész családnak.

Épület jellemzői:

• Külső falazat 30 Porotherm tégla, amelyre az Austrotherm AT-H80-as szigetelés kerül.
• Válaszfalak 10-12 Porotherm tégla.
• Első szinten monolit vasbeton födém.
• Második szinten fa födém 15cm-es szigeteléssel.
• 20cm-es lábazati Austrotherm szigetelés kerül felhelyezésre.
• Talajnedvesség elleni szigetelésként bitumenes vízszigetelő lemez.
• A tetőre Tondach kerámia cserép.
• Műanyag nyílászárok 3 rétegű üvegezéssel.
• Burkolat kerámia és laminált parketta
• Fűtés és melegvíz kondenzációs cirkó és a hőleadás padlófűtésen és radiátoron keresztül történik.
• Nappaliban klíma
• A terasz fagyálló gres padlólap burkolatot kap.

Kiépítésre került kamera és riasztó rendszer és az elektromos kapu.

Helyiségek:

Alsó szint:
• Amerikai konyhás nappali:58,3m2
• Fürdő, WC:4,9m2
• Előszoba:5,2m2
• Közlekedő:9,2m2
• Gépészet:1,6m2
• Lépcső:5,32m2
Felső szint:
• Hálószoba:13m2
• Hálószoba:17,3m2
• Dolgozószoba:15,6m2
• Fürdő, WC:2,5m2
• Gardrób:5,4m2
• Gardrób:1,6m2
• Előtér:8,4m2
• Terasz:4m2

A várható átadás 2024 Január.
A városközpontban Penny, étterem, szombatonként termelői piac, polgármesteri hivatal, is megtalálható.

Autóval az M5, M4, M0 autópályákon közelíthetjük meg a célállomásainkat.

Gyalog a buszmegálló 8 perc a busz Kőbánya- Kispestre érkezik.
Amennyiben felkeltette a meghirdetett ingatlan az érdeklődését, keressen bizalommal.

Családi ház részletei

Ár: 115 100 000 Ft
Méret: 148 négyzetméter
Azonosító: 11212665
Irodai azonosító: 350288
Cím: Kulcsrakész új építésű ikerház.
Telek: 618 négyzetméter
Ingatlan állapota: Kitűnő
Jelleg: ikerház
Építőanyag: Tégla
Fűtés jellege: Cirkó
Fűtés módja: Gáz
Komfort fokozat: Dupla komfort
Kor: Új építésű
Szintek száma: 1 szint
Egész szobák: 4

Egyéb jellemzők

  • Csatorna
  • Garázs
  • Pince
  • Terasz

Térkép

Hasonló családi ház hirdetések

Eladó családi ház

Üllő

Üllőn eladó egy két külön lakrésszel rendelkező 280 nm-es tetőtér ...

Eladó családi ház

Üllő

Egyedülálló lehetőség Üllőn a Sportliget lakóparkban!!Eladó egy modern, ...

Hasonló családi ház hirdetések

Eladó családi ház

Üllő

Üllőn eladó egy két külön lakrésszel rendelkező 280 nm-es tetőtér ...

Eladó családi ház

Üllő

Egyedülálló lehetőség Üllőn a Sportliget lakóparkban!!Eladó egy modern, ...