Eladó családi ház Vác 128 890 000 Ft

Leírás

ELADÓ, egyedi tervezésű, ÚJÉPÍTÉSŰ, GARÁZSOS ikerház, Vácon, Deákváron, AJÁNDÉK napelem előkészítéssel!

A vásárláshoz CSOK + OTTHONTEREMTÉSI TÁMOGATÁS igényelhető!

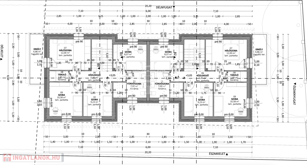
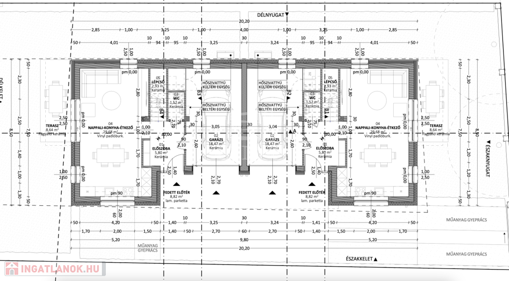
Az ikerházak 731 m2-es telken épülnek, leginkább a GARÁZSOK fognak összeérni, így az "ikerház" hatás nem lesz úgy érzékelhető!

A ház praktikus elosztással lett tervezve, figyelembe véve, hogy minél élhetőbb legyen és boldog, barátságos otthont biztosítson az új Tulajdonosának és a Családjának.
Az épület minőségi anyagokból, magas szakértelemmel, 30-as téglából épül, 20 cm EPS szigeteléssel, cserép fedéssel.

Az épület külső nyílászárói fokozott hőszigetelt üvegezésű műanyag szerkezetek nyíló-, bukó-nyíló, illetve fix kivitelben kerülnek berakásra.

Korszerű, energiahatékony, hőszivattyús fűtés lesz kiépítve padlófűtéssel, fan coil hűtéssel, igény esetén akár napelemmel (pluszba lehet kérni), az alacsony rezsi eléréshez, így nem lesz szükség gázra a házban, tehát a gázszámlát már meg is spóroltuk.

Amennyiben szeretné az új Tulajdonos, előzetes egyeztetéssel:
A belső burkolatokat, színeket, ajtókat és szanitereket az Ön ízlése szerint készítik el, a megadott értékhatáron belül.
(Természetesen lehetőség van eltérni ettől, de az ezzel járó megoldások, plusz költséggel járnak.)
A lakószobák és konyha falburkolata glettelésre felhordott egyszínű diszperzites falfestés lesz.
A fürdőszobákban, WC helyiségekben és mosókonyhákban csempeburkolat készül felkínált mintadarabokból választva, Megrendelői igények szerint.
A szobákban laminált parkettát tesznek le, a teraszokat és erkélyeket csúszásmentes, fagyálló lapokkal burkolják.
Riasztó, kábeltv, internet és napelem előkészítést is tartalmazza az ár.
Jelen pillanatban míg az építkezés olyan stádiumban van, még változtathatóak a belső terek, helyiségek elrendezései, a tartófalakon kívül.
A kültéri járdák térkő burkolatot kapnak.

A parkolás díjmentes a környéken.

Mindent megtalálunk a közelben, amire szükségünk lehet!
(Pl: bolt (LIDL, Rossmann, DM, Prima, stb.), óvoda, iskola, gyógyszertár, orvosi rendelő, stb.)
Az ingatlan elhelyezkedése tömegközlekedés szempontjából jó!
Budapest könnyedén elérhető, mind autóval, mind tömegközlekedéssel!
A Nyugati pályaudvarra a zónázó vonattal 26 perc alatt beérhetünk!
További információért forduljon Hozzám bizalommal!

Hívjon mielőbb, hogy ne maradjon le Róla!

Amivel segítjük az Ön ingatlanvásárlását:
-ingyenes, bankfüggetlen hitelügyintézés (CSOK és Babaváró ügyintézése is.)
-jogi háttér
-földhivatali ügyintézés
-energetikai tanúsítvány elkészítése
-biztosítás
-belsőépítész

Családi ház részletei

Ár: 128 890 000 Ft
Méret: 112 négyzetméter
Azonosító: 11530738
Irodai azonosító: 382152
Cím: Deákvár
Telek: 365 négyzetméter
Ingatlan állapota: Kitűnő
Jelleg: ikerház
Építőanyag: Tégla
Fűtés jellege: Geotermikus
Fűtés módja: Hőszivattyú
Komfort fokozat: Összkomfort
Kor: Új építésű
Szintek száma: 1 szint
Egész szobák: 5

Egyéb jellemzők

  • Csatorna
  • Garázs
  • Pince
  • Terasz

Térkép

Hasonló családi ház hirdetések

Eladó családi ház

Vác

Amennyiben a 3%-os hitelt szeretné igénybe venni előszerződéssel megoldható ...

Eladó családi ház

Vác

Vác közkedvelt, csendes deákvári részén kínálunk eladásra egy jó ...

Eladó családi ház

Vác

Eladó egy ÚJ 5+1 félszobás családi ház Vác, Deákvár városrészen! ...

Eladó családi ház

Vác

Modern ikerházfél Vác belvárosához közel – privát kerttel és ...

Hasonló családi ház hirdetések

Eladó családi ház

Vác

Amennyiben a 3%-os hitelt szeretné igénybe venni előszerződéssel megoldható ...

Eladó családi ház

Vác

Vác közkedvelt, csendes deákvári részén kínálunk eladásra egy jó ...

Eladó családi ház

Vác

Eladó egy ÚJ 5+1 félszobás családi ház Vác, Deákvár városrészen! ...

Eladó családi ház

Vác

Modern ikerházfél Vác belvárosához közel – privát kerttel és ...