Eladó családi ház Vác 89 990 000 Ft

Leírás

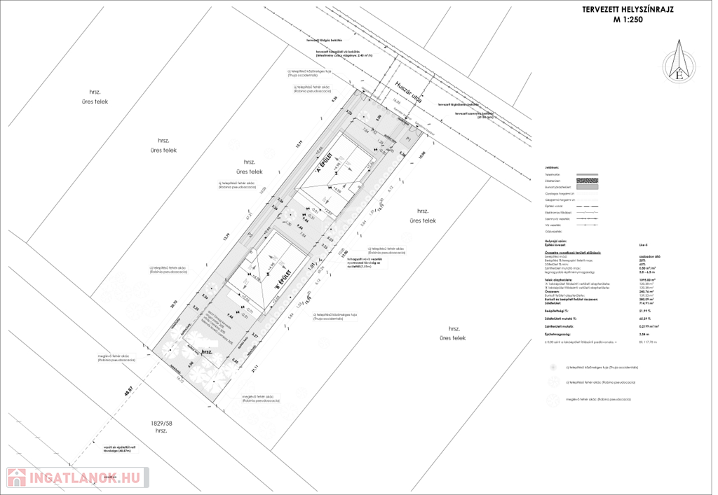
Vácon, a csendes és jól megközelíthető Huszár utcában kínálunk eladásra egy 1094 m²-es telken épülő két darab új, kulcsrakész családi házat, egyenként 94,02 m² nettó hasznos lakótérrel és 14,3 m²-es terasszal.

Az első ütemben mindkét ingatlan elkelt! Most indul a második ütem a szomszédos telken, ahol azonos tervek alapján épülő két ház még elérhető!

Az ingatlanok modern kialakításúak, a telek első részén fekvő ház kizárólagos használatú telekterülete 411 m², míg a hátsó házhoz 684 m² saját telek tartozik.

A Porotherm 30 N+F téglából épülő tartószerkezeti falak, a betonkoszorú és a fa födémes tetőszerkezet hosszú távú stabilitást biztosítanak. A kiemelkedő hőszigetelésről 10 cm-es polisztirol lábazati, 12 cm-es grafitos homlokzati, valamint 30 cm-es ásványgyapot födémszigetelés gondoskodik.

A háromrétegű üvegezésű, hat légkamrás műanyag thermo nyílászárók kiváló hő- és hangszigetelést nyújtanak. A fűtést és melegvíz-ellátást energiatakarékos levegő–víz hőszivattyús rendszer biztosítja, amely a korszerű szigeteléssel együtt rendkívül alacsony energiaigényű működést tesz lehetővé.

A belső burkolatok, ajtók és szaniterek szabadon választhatók az alábbi értékhatárokig:

-Hidegburkolat: 5.000 Ft/m²
-Melegburkolat: 4.000 Ft/m²
-Beltéri ajtók: 40.000 Ft/db
-Fürdőkád: 40.000 Ft
-Csaptelepek: 15.000 Ft/db

Természetesen magasabb kategóriájú termékek is választhatók, az árkülönbség megtérítésével.

A részletes tervdokumentáció és műszaki tartalom érdeklődő ügyfeleink számára elérhető.

INGYENES hitel tanácsadás, CSOK Plusz ügyintézés!
BANKFÜGGETLEN hitelcentrumunk az összes elérhető bank és hitelintézet ajánlatát versenyezteti az Ön kedvéért, ráadásul DÍJMENTESEN.

- Egyedi, bankfiókban nem elérhető kamat- és díjkedvezmények
- Hitelképesség vizsgálat
- Idő, energia és pénz megtakarítás
- Teljes hivatali ügyintézés

Amennyiben hirdetésem felkeltette az érdeklődését vagy egyéb információra van szüksége hívjon bizalommal!

Családi ház részletei

Ár: 89 990 000 Ft
Méret: 94 négyzetméter
Azonosító: 11548427
Irodai azonosító: 384567
Cím: Huszár utca
Telek: 684 négyzetméter
Ingatlan állapota: Kitűnő
Jelleg: családi ház
Építőanyag: Tégla
Fűtés jellege: Geotermikus
Fűtés módja: Hőszivattyú
Komfort fokozat: Összkomfort
Kor: Új építésű
Szintek száma: Földszintes
Egész szobák: 4

Egyéb jellemzők

  • Csatorna
  • Garázs
  • Pince
  • Terasz

Térkép

Hasonló családi ház hirdetések

Eladó családi ház

Vác

Vác Deákvár részén kínálunk megvételre egy 67 nm-es, felújítandó ...

Eladó családi ház

Vác

Vácon, energiatakarékos, körpanorámás, új építésű családi ház eladó! Megvételre ...

Eladó családi ház

Vác

Vácon, Deákvár csendes, zöldövezeti részén eladó egy háromszintes, ...

Eladó családi ház

Vác

STÍLUSOS, NAGYPOLGÁRI CSALÁDI HÁZ VÁC BELVÁROSÁBAN ELADÓ! Eladó Vác ...

Hasonló családi ház hirdetések

Eladó családi ház

Vác

Vác Deákvár részén kínálunk megvételre egy 67 nm-es, felújítandó ...

Eladó családi ház

Vác

Vácon, energiatakarékos, körpanorámás, új építésű családi ház eladó! Megvételre ...

Eladó családi ház

Vác

Vácon, Deákvár csendes, zöldövezeti részén eladó egy háromszintes, ...

Eladó családi ház

Vác

STÍLUSOS, NAGYPOLGÁRI CSALÁDI HÁZ VÁC BELVÁROSÁBAN ELADÓ! Eladó Vác ...