Eladó családi ház Vecsés 137 800 000 Ft

Leírás


Megvételre kínálunk Vecsés legszebb részén egy garázsos, HÓSZIVATTYÚS, teraszos, 120 nm-es, 4 szobás, 2 fürdős ikerházat. Megvételre kínálunk Vecsés legszebb részén egy garázsos, HÓSZIVATTYÚS, teraszos, 120 nm-es, 4 szobás, 2 fürdős ikerházat. Minőségi alapanyagokból, magas műszaki tartalommal, igényes kivitelezés jellemzi a projektet, ahol a biztonság és a kényelem mellett az energiatakarékosság volt a fő szempont. A ház átgondolt tervezésének köszönhetően kényelmes, otthonos, szellős, viszont ugyanakkor bővelkedik a praktikus megoldásokban.



A lakások csupán a garázsoknál vagy a tárolóknál érnek össze, így nincsenek a lakótérnél közös falak, ezért a szomszédok nem zavarják egymást. Az ingatlanok úgy működnek, mint ha önálló családi házak lennének, csak sokkal kedvezőbb áron.



Az ingatlan fűtéséről, valamint a használati melegvíz ellátásáról egy modern, energia takarékos, innovatív levegő-víz hőszivattyú gondoskodik H tarifás üzemeltetéssel.

Ennek köszönhetően a rezsi költségek minimalizálódnak.

A hőszivattyú a padlón keresztül fűt, így télen egyöntetűen kellemesen meleg a hőmérséklet.



A garázs a lakásból átjárható, valamint a ház hasznos területe bővíthető!



Ennél a beruházásnál most lehetősége van kompromisszumok nélkül egy olyan házba költözni, ahol Ön kiválaszthatja a hideg és meleg burkolatokat, szanitereket, valamint az egyéb kiegészítőket a családja legnagyobb megelégedésére, ez által személyre szabva álmai otthonát.

A kulcsra kész ár tartalmazza az elektromos redőny előkészítést, három rétegű nyílászárókat, riasztó előkészítést, kaputelefon és motoros kapu kiépítést, A gépjárművekkel az ingatlanhoz tartozó garázsban vagy térkövezett beállón lehet biztonságosan parkolni.



Az ingatlanhoz egy impozáns 270 nm-es privát telek tartozik.



A hirdetés referencia fotókat is tartalmaz.



Igénybe vehető lehetséges kedvezmények:

CSOK

5% Áfa visszatérítés

Babaváró hitel

Illeték kedvezmény vagy mentesség



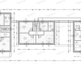
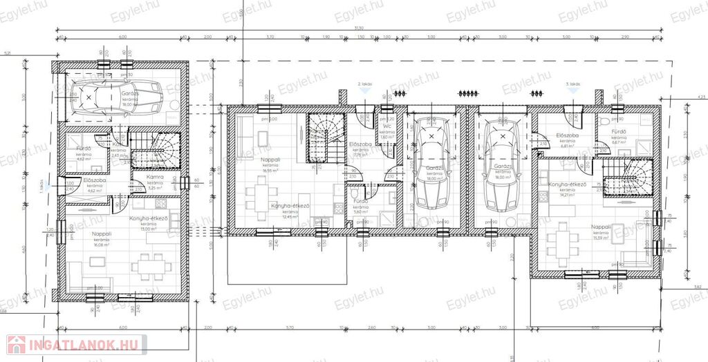
Helyiség lista a földszinten:

- Előtér

- Közlekedő

- Garázs

- WC

- Fürdőszoba

- Amerikai konyha,

- Étkező

- Nappali

- Tároló

- Terasz



Helyiség lista az emeleten:

- Közlekedő

- Lépcsőház

- Fürdőszoba

- Három szoba



Az ingatlan biztonságos, nyugodt, csendes, kertes házas övezetében, Vecsés egyik legszebb részén található. A környék fejlett infrastruktúrájának köszönhetően bővelkedik a szociális intézményekben, bölcsőde, óvoda, általános iskola, orvosi intézmények, bevásárlási lehetőségek, találhatóak a közelben.



Közlekedése kiváló, busszal vagy vonattal Budapest központja rövid idő alatt megközelíthető. Az M0-ás, M 4-es, valamint az M 5-ös autópályák pár perc alatt elérhetőek.



Hitel, CSOK igénylésben díjmentes ügyintézéssel állunk rendelkezésére! Nálunk kiválaszthatja az Ön számára legkedvezőbb ajánlatot.



Várom megtisztelő érdeklődésüket.

Családi ház részletei

Ár: 137 800 000 Ft
Méret: 120 négyzetméter
Azonosító: 11594356
Irodai azonosító: 209002147
Telek: 270 négyzetméter
Ingatlan állapota: Kitűnő
Jelleg: ikerház
Építőanyag: Tégla
Komfort fokozat: Dupla komfort
Kor: Új építésű
Egész szobák: 4

Hasonló családi ház hirdetések

Eladó családi ház

Vecsés

Vecsés egyik közkedvelt zárt lakóparkjában kínálom megvételre ezt ...

Eladó családi ház

Vecsés

Eladó Vecsés Felsőhalmon egy 147 nm alapterületű, nappali+ három halószobás, ...

Eladó családi ház

Vecsés

Befektetési lehetőség! A hirdetésben szereplő ingatlan jelenleg üzlethelyiségként ...

Eladó családi ház

Vecsés

Modern, energiatakarékos otthonok Vecsésen – Minőség, kényelem és innováció ...

Hasonló családi ház hirdetések

Eladó családi ház

Vecsés

Vecsés egyik közkedvelt zárt lakóparkjában kínálom megvételre ezt ...

Eladó családi ház

Vecsés

Eladó Vecsés Felsőhalmon egy 147 nm alapterületű, nappali+ három halószobás, ...

Eladó családi ház

Vecsés

Befektetési lehetőség! A hirdetésben szereplő ingatlan jelenleg üzlethelyiségként ...

Eladó családi ház

Vecsés

Modern, energiatakarékos otthonok Vecsésen – Minőség, kényelem és innováció ...