Eladó családi ház Vecsés 139 990 000 Ft

Leírás

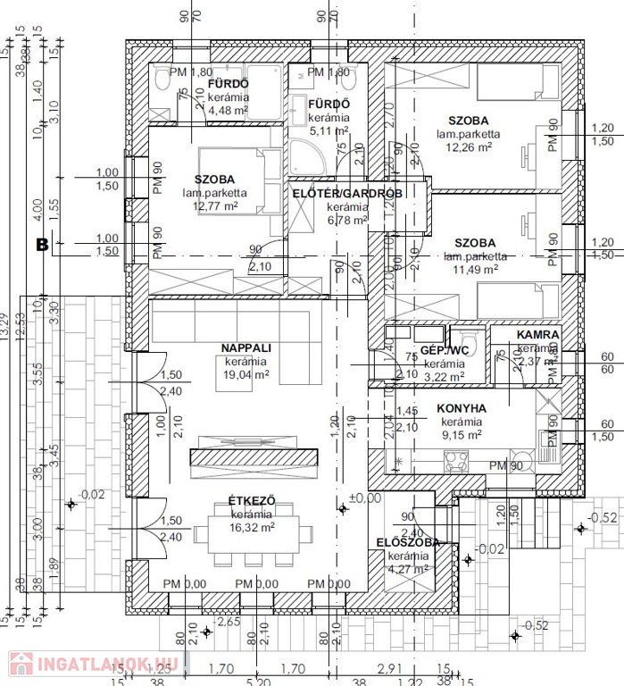
Vecsés legkedveltebb kertvárosi részén teljesen felújított, alápincézett, összesen 170 m2-es, nappali + 3 szobás, 2 fürdőszobás családi ház 303 m2-es telekrésszel 2026 tavaszi átadással kulcsrakészen eladó. A pinceszinten akár wellness részleg is kialakítható. Magyarország piacvezető hitelközvetítője által egyedi kamatkedvezményekkel és bankfüggetlen, díjmentes hitelügyintézéssel is segítjük vásárlását. Hívjon bizalommal!

MŰSZAKI TARTALOM:

Teherhordó szerkezetek leírása
1.Lábazat
Lábazati szigetelés, hálózva és dörzsölt vakolattal, szín választható.
2.Talajnedvesség elleni szigetelés
A padlófűtés előírásai szerint, rétegrend betartásával.
3.Függőleges teherhordó szerkezetek
A külső, határoló teherhordó falak nagyrészt megtartásra kerülnek, ez alól kivételt képez az étkező fala, mely YTONG-ból készül 30 cm vastagságban.
4.Födémek
Meglévő födém megtartásra kerül, 25 cm thermo hőszigetelés kerül rá előírás szerint.
5.Tetőszerkezet
A teljes tetőszerkezet felújításra kerül, a gerendák gombaölő bevonattal fognak rendelkezni, mely könnyen felismerhető, zöld színéről. A héjalás anyaga Bramac vagy Mediterrán márkájú tetőcserép, színt a látványterv szerint. A függőeresz csatornák és lefolyócsövek a barna színben kerülnek kivitelezésre. Ezen elemeket is a vételár tartalmazza.
6.Kémények
A kazán saját kéménnyel rendelkezik, nem a ház eredeti kéményébe lesz bevezetve, Engedélyeztetett gáztervek alapján.
7.Burkolatok, felületképzések
A belső falfelületek simított vakolatot kapnak, fehér színű festéssel, ezt a vételár tartalmazza. A vizes helységek falburkolata csempe, mely 10000 HUF/nm áron választható (segédanyagokkal). A padlóburkolat járólap vagy laminált padló, hideg burkolatok segédanyagokkal 10000 HUF/nm, meleg burkolatok segédanyagokkal 5000 HUF/nm áron választhatóak. A külső ablakpárkányok műanyagból készülnek, a belső ablakpárkányok műanyagból készülnek. Az épületre 15 cm hőszigetelés kerül, hungarocell anyagból, majd dörzsölt vakolat a látványtervekkel egyező színben.
8.Nyílászárók
A belső ajtók 75000 HUF/ db értékben választhatóak a vevő igénye szerint kilinccsel együtt. A külső nyílászárók 3 rétegű 5 légkamrás hőszigetelt fehér színű ablakok és ajtók a látványtervek és az írásban rögzítettek szerint.
9.Lépcső, korlátok
A tervezett beltéri lépcsők beton lépcsők, a járófelület burkolása 5000 HUF/nm áron biztosított +az élvédők. A terasz 5x3 méter méretben (15 nm) a ház többi részével megegyező magasságban kerül kivitelezésre. A kültéri lépcső a terasz járólapjával lesz burkolva. A (magas)terasz és a kültéri lépcső mellett vaskorlát kerül kivitelezésre, melyet a vételár magában foglal.

Épületgépészet
1.Vízellátás-csatornázás
Az ingatlan vízellátását közüzemi hálózat biztosítja, a keletkező szennyvíz a közüzemi csatornahálózatba kerül elvezetésre. Az ház saját külön mérőórával fog rendelkezni. Az épület komplett vízvezeték rendszerének cseréjére is sor kerül.

2.Fűtés
Az ingatlanban minden helységben padlófűtés kerül kialakításra, melyet egy Immergas Vitrix Tera 24 kW-os kombi gázkazán biztosít. A házhoz külön gáz mérőóra kerül kialakításra.

3.Elektromosság
Az elektromos hálózat kialakításánál az érvényben levő szabványok előírásait figyelembe kell venni. A teljes villamos hálózat cserére kerül (új csövezés és kábelek), melynek költségeit a vételár tartalmazza. A házhoz külön villanyóra kerül kialakításra. Az adás-vételhez villamos felülvizsgálati érintésvédelmi dokumentáció szükséges. A 4 db klímához szükséges elektromos rendszer kialakítása.

4.Légkondícionálás
A vételár 4 db Gree típusú hűtő-fűtő klímát tartalmaz, darabonként 260.000 HUF árban. A nappaliban és a pincében 3.5 kW, a szülői halószobában és a 11.49 nm méretű szobában 2.7 kW kivitelben.


5.Víz-gáz-villamos terv
Teljes víz, gáz és villamos terv készül.

A Tervezett kerítések ismertetése
1.Utcafonti kerítés
Az utcafronti kerítés betonból és PVC-ből fog elkészülni a teljes utcafronti hossz mentén a látványterveknek megfelelő színben. Az udvarban egy térkövezett autóbeálló kerül kialakításra. Az autóbeálló résznél tolókapu kerül kialakításra elektromos kiállással, valamint egy kiskapuval. A csengőt és a kaputelefont, valamint a teljes kerítést (kivétel az elektromos motor) az ár tartalmazza. A külső utcai rész zúzott kővel lesz terítve.
A ház előtti fa kivágásra fog kerülni.
2.Ingatlanokat elválasztó kerítés
A két ingatlant 2 méter magas kőkerítés választja el, melyet a vételár tartalmaz.

3.Hátsó telkeket elválasztó kerítés
A hátsó kerthatárban a teljes telek mentén 2 méter magas kőkerítés kerül kialakításra, melyet a vételár tartalmaz.

Egyéb kivitelező által a vételárból biztosított tételek

1.2 db Geberit beépíthető tartalyú WC, komplett szett, Wc csészével, tartállyal és nyomólappal 70000 HUF értékben
2.Mosdók30000 HUF/db értékben (2 db)
3.Fürdőkád70.000 HUF értékben (1 db)
4.Zuhany tálcával vagy épített kivitelben 70.000 HUF értékben (1 db)
5.Fürdők csempézése 1,9 m magasságig
6.Mosdó csaptelepek35.000 HUF/db (2 db)
Kád csaptelep50.000 HUF/db(1 db)
Zuhanyszett 50.000 HUF/db(1 db)
7.Falfestés fehér színben
8.Minden szobában 5 konnektor és 1 TV kiállás, Schneider Asfora típusú
9.Bejárati ajtó200.000 HUF értékben
10.Külső hátsó terasz 5x3 méter méretben, a lábazat magasságában, lépcsővel, korláttal, 3 db külső konnektor és kültéri világítás kerül kialakításra
11.Külső szigetelés és színezés a látványtervek alapján
12.Ház körüli járda simított beton anyagból új kerül kialakításra
13. Tereprendezés

Családi ház részletei

Ár: 139 990 000 Ft
Méret: 170 négyzetméter
Azonosító: 11566086
Telek: 303 négyzetméter
Ingatlan állapota: Felújított
Jelleg: családi ház
Építőanyag: Kérdezzen rá a hirdetőtől »
Fűtés jellege: Cirkó
Szintek száma: 1 szint
Egész szobák: 4

Egyéb jellemzők

  • Csatorna
  • Garázs
  • Kábel TV
  • Melléképület
  • Parketta
  • Pince
  • Terasz

Hasonló családi ház hirdetések

Eladó családi ház

Vecsés

Vecsés csendes, kedvelt részén, a Fő úttól 1 perc sétatávolságra található ...

Eladó családi ház

Vecsés

Eladó Vecsés Felsőhalmon egy 147 nm alapterületű, nappali+ három halószobás, ...

Eladó családi ház

Vecsés

Otthon és vállalkozás! Piaci résként javasoljuk ezt a teljesen újszerű ...

Eladó családi ház

Vecsés

ELADÓ családi ház Vecsés szívében, a Lázár Vilmos utcában TELJESEN ...

Hasonló családi ház hirdetések

Eladó családi ház

Vecsés

Vecsés csendes, kedvelt részén, a Fő úttól 1 perc sétatávolságra található ...

Eladó családi ház

Vecsés

Eladó Vecsés Felsőhalmon egy 147 nm alapterületű, nappali+ három halószobás, ...

Eladó családi ház

Vecsés

Otthon és vállalkozás! Piaci résként javasoljuk ezt a teljesen újszerű ...

Eladó családi ház

Vecsés

ELADÓ családi ház Vecsés szívében, a Lázár Vilmos utcában TELJESEN ...