Eladó családi ház Vecsés 149 000 000 Ft

Leírás

Vecsés csendes családias részénVecsés Krakkón barátságos utcában eladó új építésű családi házak.A kivitelező sok éves múlttal és rengeteg elégedett ügyféllel rendelkezik, referenciák Vecsési lakóparkokban és a 18.kerületben is megtekinthetőek.

Költözzön egy privát zárt lakóparkba melyet saját magánúton zárt kapuk mögött lehet megközelíteni. 4 ház épül a lakópark területén, a privát kerteken kívül közös kertrész is kialakításra kerül, melyre a kivitelező privát játszóteret és sütögetőt alakít ki.

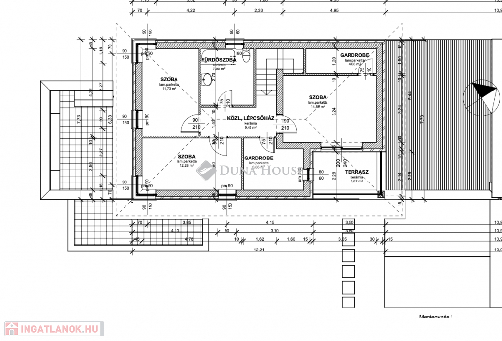
Az otthonok 160.88 négyzetméter hasznos lakótérrel rendelkeznek, mely két szinten fekszik és 460 négyzetméter kert tartozik hozzá. A földszinten egy kényelmes méretű 32 négyzetméteres amerikai konyhás nappalival rendelkezik melyre egy L alakú 35.92 négyzetméteres részben fedett teraszon keresztül jutunk a saját kertünkbe. 4 nagyobb méretű hálószobával, 2 gardróbbal és 2 fürdőszobával+1 illemhelyiséggel rendelkezik.

Műszaki adatok:
-30-as Prototherm tégla falazat
-15 cm-es homlokzati szigetelés
-25 cm-es szigetelés az aljzat felől
-25 cm-es szigetelés a födém felől
-3 rétegű műanyag nyílászárók kívülről antracit belülről fehér színűek
-elektromos garázskapu antracit színnel
-Hőszivattyús fűtés/hűtés
-2 fürdőszoba-kamra-riasztó
-elektromos redőny
-térkövezett autóbeálló
-kétállásos garázs
-napelem/kamera kiállás

Burkolatok/beltéri ajtók/szaniterek még választhatóak.

A HÁZAK CSAK A DUPLAGARÁZSNÁL ÉRINTKEZNEK, UTCAFRONTJA MINDEGYIK INGATLANNAK VAN!

A lakópark teljesen új modern környezet, játszótérrel, fákkal. Közlekedést tekintve autóval a Gyorsforgalmi út, Üllői út, Gyömrői út az M0-ás és a 4-es út 3 perc alatt megközelíthető.
Tömegközlekedés 3 perc sétára Volánbuszmegálló Kőbánya Kispest vasútállomásig közlekedik, 15 perc sétára Vecsési vonatállomás, melyről a Nyugati pályaudvarig közlekednek a vonatok.

Felkeltette érdeklődését keressen bizalommal a hét bármely napján!

Átadás: 2026.július

Családi ház részletei

Ár: 149 000 000 Ft
Méret: 160 négyzetméter
Azonosító: 11557389
Irodai azonosító: HZ065083-5010317
Cím: 160 nm-es ház eladó Vecsés
Telek: 460 négyzetméter
Ingatlan állapota: Épülő
Jelleg: ikerház
Építőanyag: Tégla
Fűtés jellege: Villany
Fűtés módja: Hőszivattyú
Kor: Új építésű
Szintek száma: Földszintes
Egész szobák: 5

Térkép

Hasonló családi ház hirdetések

Eladó családi ház

Vecsés

Vecsés egyik közkedvelt zárt lakóparkjában kínálom megvételre ezt ...

Eladó családi ház

Vecsés

Magazinba illő otthon, időtálló elegancia Vecsés szívében - extra üzleti ...

Eladó családi ház

Vecsés

Eladó Vecsés Felsőhalmon egy 147 nm alapterületű, nappali+ három halószobás, ...

Eladó családi ház

Vecsés

Befektetési lehetőség! A hirdetésben szereplő ingatlan jelenleg üzlethelyiségként ...

Hasonló családi ház hirdetések

Eladó családi ház

Vecsés

Vecsés egyik közkedvelt zárt lakóparkjában kínálom megvételre ezt ...

Eladó családi ház

Vecsés

Magazinba illő otthon, időtálló elegancia Vecsés szívében - extra üzleti ...

Eladó családi ház

Vecsés

Eladó Vecsés Felsőhalmon egy 147 nm alapterületű, nappali+ három halószobás, ...

Eladó családi ház

Vecsés

Befektetési lehetőség! A hirdetésben szereplő ingatlan jelenleg üzlethelyiségként ...