Eladó családi ház Velence, Bencehegy, 94 900 000 Ft

Leírás

Jövőálló otthon kiváló helyen

Velence dinamikusan fejlődő, új lakónegyedében kínálunk megvételre egy korszerű kivitelezésű, napfényes otthont, ahol a modern élettér és a nyugodt környezet természetes harmóniában találkozik.

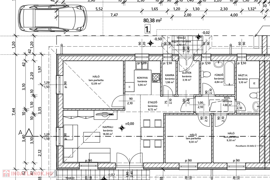
Az ingatlan - ikerházi kialakítása ellenére - saját, körbekerített kertrésszel, külön bejárattal és önálló kocsibejáróval rendelkezik, így a mindennapokban valódi privát életteret biztosít. 80 m²-es lakóterében praktikus elrendezésű három szoba és egy tágas nappali ad kényelmes életteret akár nagyobb család számára is. Az 500 m²-es telek kellemes méretű kertet kínál, a térkövezett kocsibeálló a mindennapi használatot teszi egyszerűvé és kényelmessé.

A korszerű műszaki megoldások hosszú távon is biztonságos választást jelentenek: hőszivattyús padlófűtés gondoskodik az egyenletes komfortérzetről, a napelem fogadás előkészítése pedig lehetőséget ad az energiahatékonyság további növelésére.

Az M7-es autópálya néhány perc alatt elérhető, így Budapest és Székesfehérvár is gyorsan megközelíthető. Ideális választás mindazok számára, akik a városban dolgoznak, de nyugodt, élhetőbb környezetben lévő, értékálló otthont keresnek.

Szerkezeti jellemzők:
- 30-as Ytong tégla falazat
- 10-es Ytong válaszfalak
- 3 rétegű, fokozott hőszigetelésű, bukó-nyíló, műanyag nyílászárók (fehér színben)
- furnérozott fa beltéri ajtók
- minőségi, kezelt fa tetőszerkezet antracit színű cserép fedéssel
- tetőcseréphez színben illő ereszcsatorna föld alatti víz elvezetéssel
- fehér és szürke külső nemesvakolat

Szigetelés:
- 12 cm-es homlokzati hőszigetelés
- 10 cm-es vízálló lábazat szigetelés
- 10 cm-es lépésálló szigetelés a padlózatban
- 30 cm-es szigetelés a tetőszerkezetben

Gépészet:
- hőszivattyú által üzemeltetett padlófűtés
- hőszivattyú által üzemeltetett 120 literes meleg víz tartály
- fotovoltaikus napelemrendszer fogadásának kiépítése
- kaputelefon fogadásának kiépítése

Kulcsrakész vételár tartalmazza:
- választható szaniterek és burkolatok
- elektromos redőnyök
- szúnyoghálók
- épület körüli járdák
- 1 db térkövezett kocsibeálló
- 1 db kerti csap
- kerítéssel körülhatárolt udvar

A kulcsrakész vételár nem tartalmazza (előre egyeztetett felár ellenében kérhető):
- lámpatestek
- klíma
- riasztó

Az ingatlanra CSOK és Otthon Start hitelkonstrukció igényelhető, melynek ügyintézésében segítséget tudunk nyújtani.

Bővebb információért keressen minket bizalommal, segítünk megtalálni új otthonát.

Családi ház részletei

Ár: 94 900 000 Ft
Méret: 80 négyzetméter
Azonosító: 11601024
Városrész: Bencehegy
Telek: 500 négyzetméter
Ingatlan állapota: Épülő
Jelleg: ikerház
Építőanyag: Tégla
Fűtés jellege: Hőszivattyú
Fűtés módja: Hőszivattyú
Komfort fokozat: Összkomfort
Kor: Új építésű
Elhelyezkedés: Udvari
Szintek száma: Földszintes
Egész szobák: 4

Egyéb jellemzők

  • Csatorna
  • Terasz

Térkép

Hasonló családi ház hirdetések

Eladó családi ház

Velence

Saját ízlése szerint alakítható otthonra vágyik a Velencei-tó partjától ...

Eladó családi ház

Velence, Velencefürdő

Két élettér, mindenhez közel Velencén a tóhoz és a vasútállomáshoz ...

Hasonló családi ház hirdetések

Eladó családi ház

Velence

Saját ízlése szerint alakítható otthonra vágyik a Velencei-tó partjától ...

Eladó családi ház

Velence, Velencefürdő

Két élettér, mindenhez közel Velencén a tóhoz és a vasútállomáshoz ...