Eladó családi ház Veresegyház 148 500 000 Ft

Leírás

ÚJ ÉPÍTÉSŰ IKERHÁZ VERESGYHÁZ FREKVENTÁLT RÉSZÉN, garázzsal, saját kerttel!

Otthon Start hitelre megvásárolható!

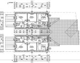
Kivételes lehetőség Veresegyház egyik kedvelt, családias részén! Eladó két darab belső kétszintes, összesen 140 m2-es ikerház felek, saját garázzsal (22,24 m2) és 480 m2-es saját telekrésszel. Teljes mértékben pakolható padlástér. Az ikerházak csak a garázsnál érnek össze, így a privát élettér teljesen zavartalan.

A ház nappali + 4 szobás, saját 480 m2-es telekrésszel és garázzsal, ideális választás többgyermekes családnak vagy azoknak, akik szeretik a kényelmes, jól átgondolt tereket.

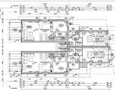
Alsó szint:

- amerikai konyhás, napfényes nappali 38 nm
- közvetlen kapcsolattal a 18 nm-es teraszra
- egy külön nyíló hálószoba 9,54 nm
- zuhanyzós fürdőszoba 3.66 nm
- háztartási helyiség
- előszoba 7.98 nm
- kamra
- 23 nm-es GARÁZS mely közvetlenül a házból megközelíthető

Felső szint

- 3 jól szeparált, világos hálószoba
- egy kádas fürdőszoba 5.98 nm
- külön WC, 2.0 nm
- valamint egy tágas gardrób, ami segít rendben tartani a mindennapokat
- Hőszivattyús fűtési rendszer (padlófűtéssel)

- Elektromos redőny előkészítés

- Klíma kiállás minden szobában

- Napelem előkészítés

- Magas minőségű szigetelés és nyílászárók

- Modern, energiatakarékos kialakítás


Az ikerház kulcsrakész állapotban kerül átadásra, szaniterekkel, burkolatokkal együtt konyhabútor nélkül.

Veresegyházról:
Egyre többen választják otthonuknak ezt a barátságos, jól fejlődő várost, nem véletlenül. A kiváló tömegközlekedés (Budapest könnyen elérhető vonattal és autóval is), a rendezett, zöld környezet, a helyi szolgáltatások bősége (iskolák, óvodák, orvosok, boltok, piac) és a természet közelsége (tavak, parkok, Medveotthon) mind hozzájárulnak a kellemes életminőséghez.

Kérdés, megtekintés esetén keressen bizalommal, akár hétvégén is!
M313978

Családi ház részletei

Ár: 148 500 000 Ft
Méret: 120 négyzetméter
Azonosító: 11574262
Irodai azonosító: M313978-5068049
Telek: 480 négyzetméter
Ingatlan állapota: Épülő
Jelleg: ikerház
Építőanyag: Tégla
Fűtés jellege: Villany
Fűtés módja: Hőszivattyú
Komfort fokozat: Összkomfort
Kor: Új építésű
Szintek száma: 1 szint
Egész szobák: 5

Egyéb jellemzők

  • Garázs

Térkép

Hasonló családi ház hirdetések

Eladó családi ház

Veresegyház

CasaNetWork Gödöllő Ingatlaniroda kínálatában eladó családi ház Veresegyház ...

Eladó családi ház

Veresegyház, Széchenyidomb

Veresegyházán csodás környezetben, remek lokációval eladásra kínálok ...

Eladó családi ház

Veresegyház

Kihagyhatatlan lehetőség Veresegyházán! Remek elhelyezkedéssel, maximális ...

Eladó családi ház

Veresegyház

Veresegyházon nyugodt csendes környezetben, két utcára nyíló bejárattal ...

Hasonló családi ház hirdetések

Eladó családi ház

Veresegyház

CasaNetWork Gödöllő Ingatlaniroda kínálatában eladó családi ház Veresegyház ...

Eladó családi ház

Veresegyház, Széchenyidomb

Veresegyházán csodás környezetben, remek lokációval eladásra kínálok ...

Eladó családi ház

Veresegyház

Kihagyhatatlan lehetőség Veresegyházán! Remek elhelyezkedéssel, maximális ...

Eladó családi ház

Veresegyház

Veresegyházon nyugodt csendes környezetben, két utcára nyíló bejárattal ...