Eladó családi ház Veresegyház 150 000 000 Ft

Leírás

*** ELADÓ több generációs családi ház Széchenyidombon ***

(Az ingatlanban található béépített bútorok,berendezési tárgyak nem képezik a vételár részét és azok kötelezően megvásárolandóak)

Megvételre kínálok Veresegyház közkedvelt területén, nyugodt, csendes lakóövezetben, egy 3 szintes, azonnal költözhető családi házat, hatalmas gyönyörű kerttel, medencével, dupla állásos garázzsal és további nyílt kocsibeállóval. A rendszeresen gondozott kertben öntözőrendszer is található.

A nettó 252 nm-es ingatlan, hatalmas tereket biztosít, napfényes, rengeteg holmi tárolására alkalmas. Tökéletes választás nagy családosok számára vagy akik idősebb generációval szeretnének összeköltözni. De ugyancsak jó választás lehet akár irodának, rendelőnek, esetleg magán óvodának is. A ház teljesen alápincézett, itt jelenleg egy elektromos kapuval ellátott dupla állásos garázs, egy tároló és egy mosókonyha/nyárikonyha és egy zuhanyzós fürdő van kialakítva.

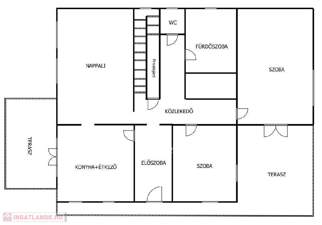
A középső szinten kapott helyet egy előszoba, konyha, étkező, nappali, két hálószoba, két fürdő és mosdók illetve a 14.7 m2-es első terasz, mely a konyhából nyílik illetve a 27.7 m2-es hátsó terasz, mely a hálószobával kapcsolódik közvetlenül.

A legfelső szinten pedig egy szintén tágas nappali, 2 szoba és egy fürdő mosdóval került kialakításra.

Az ingatlan nem szigetelt, de 38-as téglából épült, tökéletes hőérzetet biztosít a téli és a nyári hónapokban egyaránt.

A fűtésért a pincében lévő gázkazán felel radiátoros hőleadással illetve a hűtő-fűtő klíma is alkalmasak erre a célra. A melegvízellátást két villanybojler oldja meg.

A bútorok igény esetén maradhatnak, megbeszélés szerint, a vételár részén felüli értéket képviselve.

Közelben: Veresegyház központja ahol szinten minden megtalálható, autóval 5 perc, gyalogosan maximum 15 perc, a távolsági busz és vonatállomás, óvodák, iskolák és gimnázium, boltok, piac, és a természet is karnyújtásnyira.

Tehermentes, 1/1-es tulajdon, rugalmasan költözhető.

Amennyiben érdekes leeht a számára, keressen a hét bármely napján rugalmasan mutatom!

Hivatkozás: M301713

Családi ház részletei

Ár: 150 000 000 Ft
Méret: 252 négyzetméter
Azonosító: 11611735
Irodai azonosító: M301713-4999120
Telek: 751 négyzetméter
Ingatlan állapota:
Jelleg: családi ház
Építőanyag: Tégla
Fűtés jellege: Cirkó
Fűtés módja: Gáz
Komfort fokozat: Dupla komfort
Kor: 21-50 éves
Szintek száma: 1 szint
Egész szobák: 6

Egyéb jellemzők

  • Garázs

Térkép

Hasonló családi ház hirdetések

Eladó családi ház

Veresegyház

CasaNetWork Gödöllő Ingatlaniroda kínálatában eladó családi ház Veresegyház ...

Eladó családi ház

Veresegyház

Eladó kiváló állapotú családi ház Veresegyház csendes mellékutcájában, ...

Eladó családi ház

Veresegyház

Veresegyházon nyugodt csendes környezetben, két utcára nyíló bejárattal ...

Eladó családi ház

Veresegyház

ÚJ ÉPÍTÉSŰ IKERHÁZ VERESGYHÁZ FREKVENTÁLT RÉSZÉN, garázzsal, saját ...

Hasonló családi ház hirdetések

Eladó családi ház

Veresegyház

CasaNetWork Gödöllő Ingatlaniroda kínálatában eladó családi ház Veresegyház ...

Eladó családi ház

Veresegyház

Eladó kiváló állapotú családi ház Veresegyház csendes mellékutcájában, ...

Eladó családi ház

Veresegyház

Veresegyházon nyugodt csendes környezetben, két utcára nyíló bejárattal ...

Eladó családi ház

Veresegyház

ÚJ ÉPÍTÉSŰ IKERHÁZ VERESGYHÁZ FREKVENTÁLT RÉSZÉN, garázzsal, saját ...