Eladó családi ház Veszprém 43 049 000 Ft

Leírás

ELADÓ MODERN, 4 ÉVSZAKOS MODULHÁZAK TELJES KIVITELEZÉSSEL, EGYEDI IGÉNYEKRE SZABVA!


FIGYELEM!
- A MEGHIRDETETT ÁR AZ INGATLANRA VONATKOZIK, AZ ALAPOZÁST, A TELKET ÉS ANNAK ESETLEGES KÖZMŰVESÍTÉSÉT NEM TARTALMAZZA!
- A kínált ingatlanok típustervek alapján, üzemi körülmények között, csarnokban készülnek, majd a helyszínen kerülnek telepítésre. A gyártás minden esetben egyedi megállapodás alapján történik.
- Egy modul szállítási mérete 13x4 méter, az épület több modulból is összeállítható.
- A modulok széleskörű felhasználásra is, akár irodának, lakóépületnek vagy üzlethelyiségnek is alkalmas.
- A feltüntetett ár a mintatervre értendő kulcsrakész állapotban, 5% ÁFA számításával, emelt szintű műszaki tartalommal.
- Az esetleges elírások, információk és a változtatások jogát fenntartjuk.


ALAPADATOK:
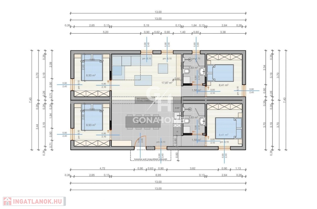
- A hirdetett modulház nettó alapterülete: 81 m2
- Dupla fürdőszoba!
- Fűtés: elektromos konvektor
- Klíma a nappaliban
- Padlófűtés a fürdőszobában
- Melegvízről egy 80 literes villanybojler gondoskodik
- Minőségi hőszigetelt nyílászárók

Az ár tartalmazza:
- Komplett belső burkolatrendszert
- Szanitereket
- Gépészeti rendszert (víz, villany, világítás, fűtés)


Helyiségek méretei:
- Közlekedő: 1,5 m2
- Közlekedő:1,5 m2
- Szoba: 8,93 m2
- Szoba: 8,93 m2
- Szoba: 8,41 m2
- Szoba: 8,41 m2
- Nappali: 17,87 m2
- Konyha-étkező: 17,87 m2
- Fürdőszoba: 3,83 m2
- Fürdőszoba: 3,83 m2


ELŐNYÖK:
- Környezetbarát technológia
- Minőségi előregyártás
- Utólagos bővíthetőség


HASZNOS INFORMÁCIÓK:
- ÉMI/NMÉ engedély alapján készülnek
- 4 évszakos lakóépületként használhatók
- Lakóházként engedélyeztethetőek
- Fa vázas könnyűszerkezetes rendszer
- Gyors, ellenőrzött gyártási folyamat


Amennyiben megbízható, előre tervezhető rendszerben szeretné megvalósítani új otthonát, keressen bizalommal részletes műszaki tartalomért és személyes konzultációért.
Amennyiben az ingatlan megvásárlásához el kell adnia jelenlegi otthonát, úgy annak és a teljes folyamatnak a lebonyolításában is állok rendelkezésre!


TOVÁBBI SZOLGÁLTATÁSAINK:

- Megbízható ügyvédi háttér
- TELJESKÖRŰ INGTALAN FELÚJÍTÁS
- INGYENES, FÜGGETLEN hitelügyintézés
- INGYENES, FÜGGETLEN biztosítási tanácsadás
- Energetikai tanúsítvány és ingatlan értékbecslés készítése
- Klíma rendszerek kiépítése és beüzemelése
- Riasztó- és kamera rendszerek kiépítése
- Közművek és szolgáltatók átírása
- Birtokbaadás lebonyolítása
- Kert- és tereprendezés
- Ingatlan takarítás
- Költöztetés

10 ÉVES SZAKMAI TAPASZTALATTAL!


#gonahome #tegyelprobara #keressbizalommal #mindenamiingatlan

Családi ház részletei

Ár: 43 049 000 Ft
Méret: 81 négyzetméter
Azonosító: 11603575
Irodai azonosító: 349962
Ingatlan állapota: Kitűnő
Jelleg: családi ház
Építőanyag: Könnyűszerkezetes
Fűtés jellege: Villany
Fűtés módja: Villany
Komfort fokozat: Összkomfort
Kor: Új építésű
Egész szobák: 1
Fél szobák: 4

Hasonló családi ház hirdetések

Eladó családi ház

Veszprém

Veszprém Történelmi belvárosában a Vár alatt az Ostrom lépcső utcában, ...

Eladó családi ház

Veszprém

Eladó felújított szélső sorház Veszprémben, Szabadságpusztán! Alapterület: ...

Hasonló családi ház hirdetések

Eladó családi ház

Veszprém

Veszprém Történelmi belvárosában a Vár alatt az Ostrom lépcső utcában, ...

Eladó családi ház

Veszprém

Eladó felújított szélső sorház Veszprémben, Szabadságpusztán! Alapterület: ...