Eladó családi ház Zalaegerszeg 104 900 000 Ft

Leírás

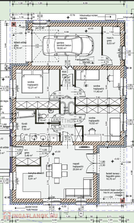
Van egy pont, amikor már nem kompromisszumot keresi, hanem végre azt, ami igazán Önhöz illik. Ez a 130 nm-es, egyszintes családi ház pontosan erről szól.

Tágas nappali + 3 külön nyíló szoba – ahol mindenki megtalálja a saját terét. Letisztult formák, modern megoldások és egy otthon, ami már az első pillanatban megérinti.

Amitől igazán különleges:

- 700 nm-es telek
- Nappali +3 szoba
- Garázs
– Masszív Porotherm 30 N+F neo Rapid Dryfix falazat + 20 cm hőszigetelés → nyugalom és energiatakarékosság
– 3 rétegű, barna fóliás nyílászárók → elegancia kívül-belül
– Rejtett redőnyrendszer szúnyoghálóval → praktikum kompromisszumok nélkül
– Bramac Tectura Novo antracit tető → karakteres megjelenés
– BOSCH hőszivattyús rendszer padlófűtéssel → jövőálló technológia, alacsony rezsi
– Prémium Ravak és Grohe fürdőszobai szaniterek → válassza ki, ami igazán Ön
– Szabadon választható burkolatok → formálja a saját stílusára

A kulcsrakész állapot nem csak ígéret:

– térkövezett kocsibeálló
– járda
– minden készen áll, hogy beköltözzön

Ez nem egy sablonház. Ez egy lehetőség arra, hogy végre olyan otthona legyen, ami Önről szól.

Nekeresdi városrész – nyugodt környezet, mégis közel mindenhez.

Amennyiben a képek és a leírás alapján az ingatlan felkeltette az érdeklődését, keressen bizalommal a megadott elérhetőségeken, keresse az ingatlant a honlapunkon, több kép is segíti Önt a választásban!
Irodánk teljes körű, díjmentes szolgáltatást nyújt kereső ügyfeleinknek, amennyiben Önnek hitelre van szüksége, segítünk! Szakszerű tanácsadással, hitel ügyintézéssel, energetikai tanúsítvány elkészítésével és kedvező díjszabású ügyvéddel nyújtunk segítséget!

Az energetikai tanúsítvány készítése folyamatban van, amint rendelkezésre áll, úgy azzal a hirdetés frissítésre kerül.

Családi ház részletei

Ár: 104 900 000 Ft
Méret: 130 négyzetméter
Azonosító: 11610825
Irodai azonosító: U0049612-5189558
Telek: 700 négyzetméter
Ingatlan állapota: Épülő
Jelleg: családi ház
Építőanyag: Tégla
Fűtés jellege: Egyéb
Kor: Új építésű
Szintek száma: Földszintes
Egész szobák: 4

Térkép

Hasonló családi ház hirdetések

Eladó családi ház

Zalaegerszeg

Építkezne? Bízza megbízható, tapasztalt, referenciákkal rendelkező kivitelező ...

Eladó családi ház

Zalaegerszeg

PANORÁMÁS, MODERN CSALÁDI HÁZ ELADÓ ZALAEGERSZEGEN A GÓGÁNHEGYEN PRÉMIUM ...

Eladó családi ház

Zalaegerszeg

Emeleti elhelyezkedés: Földszinten Épület emeleteinek száma: 1 Állapota: ...

Eladó családi ház

Zalaegerszeg

Kiváló lokáció, ideális méretű családi ház, optimális telekkel! Zalaegerszeg ...

Hasonló családi ház hirdetések

Eladó családi ház

Zalaegerszeg

Építkezne? Bízza megbízható, tapasztalt, referenciákkal rendelkező kivitelező ...

Eladó családi ház

Zalaegerszeg

PANORÁMÁS, MODERN CSALÁDI HÁZ ELADÓ ZALAEGERSZEGEN A GÓGÁNHEGYEN PRÉMIUM ...

Eladó családi ház

Zalaegerszeg

Emeleti elhelyezkedés: Földszinten Épület emeleteinek száma: 1 Állapota: ...

Eladó családi ház

Zalaegerszeg

Kiváló lokáció, ideális méretű családi ház, optimális telekkel! Zalaegerszeg ...