Eladó családi ház Zalaegerszeg 33 000 000 Ft

Leírás

Új építésű, KULCSRAKÉSZ könnyűacél vázszerkezetes AA + energetikai besorolású családi házak rendelhetők, garanciával, energiatakarékos modern, hőszivattyús fűtési rendszerrel‼️

Teljes körű ügyintézés!! Bármely méretben, egyedi elképzelések alapján ingyenes tervezéssel, elképzelés hiányában típustervekkel.

550 000 Ft / m2 ártól, kulcsrakészen (az ár bruttó ár, mely tartalmazza az 5%-os áfát, de a hasznos/nettó négyzetmétert kell kifizetni).

A TELEK ára nincs benne az árban, a házakat bárhol felépítjük.

Mit tartalmaz az ár?
• a tervezés árát
• az alapozás költségét
• a hőszivattyús fűtési rendszert
• a burkolatokat
• a nyílászárókat
• a szanitereket
• a közművekre való rákötést.

Igény szerint: napelem, riasztórendszer, szúnyogháló, redőny, okosotthon vezérlés rendelhető.
Új otthonát egyéni ízlésének megfelelően alakíthatja: falszínek, burkolatok, nyílászárók és ajtók mérete/színe, szaniterek minősége, külső vakolat és tető színe egyedileg választható.

A könnyűszerkezetes házak rövid jellemzői, típustól függetlenül:
• EPS 80 szigetelés 10 cm 15 cm a falszerkezetben, térosztó falak: hidegen hengerelt horganyzott acél falszerkezet, közte szálas hang-hőszigetelés 10 cm vastagságban
• páraáteresztő fólia, cserepes lemezzel vagy beton agyagcseréppel fedve, járható, pakolható födémmel
• 3 rétegű, 6 légkamrás, műanyag tokos nyílászárók

A könnyűszerkezetes házakban nincsenek allergén anyagok, a gipsz, melyet falburkolásra használnak természetes anyag. A falakban lévő kőzetgyapot pedig nem juthat be a lakótérbe.

A könnyűszerkezetes családi házak száraz technológiával épülnek, ezért nem maradhat víz a falakban, mely a későbbiekben penészesedést okozhatna, de hőhidak sincsenek a homogén anyagfelhasználásnak köszönhetően.

Amennyiben kérdés merülne fel a kivitelezéssel kapcsolatban, megtekinthet félkész és kész házakat is, személyesen győződhet meg a minőségről. Lehetőség nyílik a kivitelezővel való személyes konzultációra is.

A tájékoztatás nem teljeskörű, pontos részletekért keressen bizalommal.

Családi ház részletei

Ár: 33 000 000 Ft
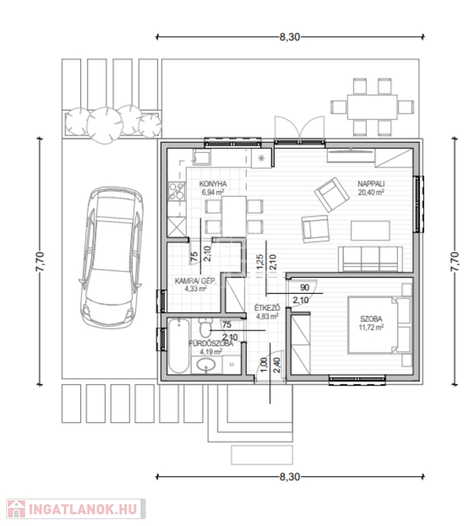
Méret: 60 négyzetméter
Azonosító: 11442760
Irodai azonosító: 375041
Cím: Könnyűszerkezetes házak eladók!
Telek: 1000 négyzetméter
Ingatlan állapota: Átlagos
Jelleg: családi ház
Építőanyag: Kérdezzen rá a hirdetőtől »
Fűtés jellege: Geotermikus
Fűtés módja: Hőszivattyú
Komfort fokozat: Dupla komfort
Kor: Új építésű
Szintek száma: Földszintes
Egész szobák: 2

Egyéb jellemzők

  • Csatorna
  • Garázs
  • Pince
  • Terasz

Térkép

Hasonló családi ház hirdetések

Eladó családi ház

Zalaegerszeg

Zalaegerszeg egyik kedvelt részén keresi új tulajdonosát ez az ÁLLANDÓ ...

Eladó családi ház

Zalaegerszeg

Eladó ez a kivételes lehetőség Zalaegerszeg Páterdomb városrészében, ...

Eladó családi ház

Zalaegerszeg

Zalaegerszeg Besenyő városrészében kínálok megvételre egy szinteltolásos, ...

Eladó családi ház

Zalaegerszeg

Megvételre kínálok Zalaegerszeg csácsi városrészén egy gyönyörű, ...

Hasonló családi ház hirdetések

Eladó családi ház

Zalaegerszeg

Zalaegerszeg egyik kedvelt részén keresi új tulajdonosát ez az ÁLLANDÓ ...

Eladó családi ház

Zalaegerszeg

Eladó ez a kivételes lehetőség Zalaegerszeg Páterdomb városrészében, ...

Eladó családi ház

Zalaegerszeg

Zalaegerszeg Besenyő városrészében kínálok megvételre egy szinteltolásos, ...

Eladó családi ház

Zalaegerszeg

Megvételre kínálok Zalaegerszeg csácsi városrészén egy gyönyörű, ...