Eladó családi ház Zamárdi 272 000 000 Ft

Leírás


Fedezze fel a BALATON partján található exkluzív ikerházfeleket Zamárdi ikonikus parti utcáján! Ezek az ingatlanok nem csupán lenyűgöző építészeti megoldásaikkal, hanem elhelyezkedésükkel is azonnal magukkal ragadják az érdeklődőket. Az ingatlanok külön és egyben is megvásárolhatók, így Ön dönti el, milyen formában szeretné élvezni a hely adta előnyöket.

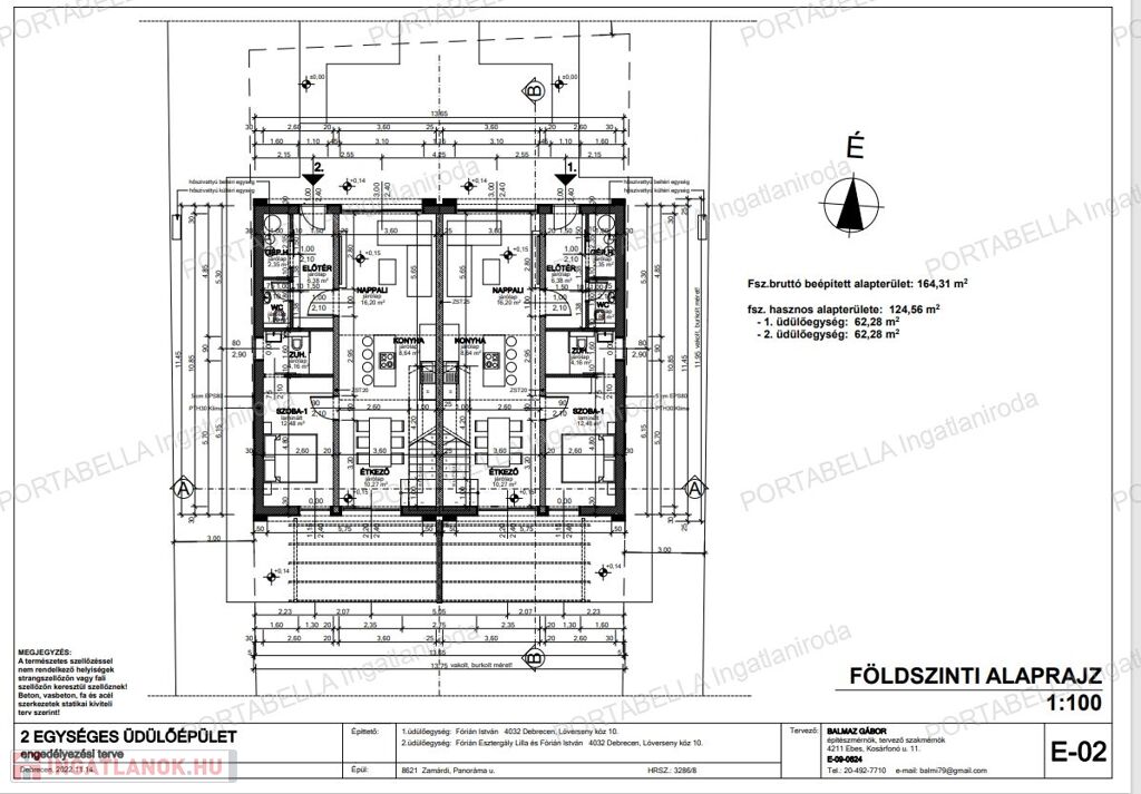
Az ingatlan különlegessége az ÖRÖKPANORÁMÁS kilátás a Balatonra és a Tihanyi-félszigetre, amely minden napszakban különleges élményt nyújt. A földszinten egy tágas nappali, egy modern konyha és étkező található, melyek ideálisak családi vagy baráti összejövetelekhez. Emellett egy háló- és fürdőszoba is helyet kap, amelyek kényelmes elvonulást biztosítanak.

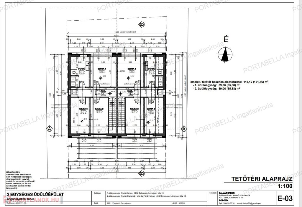
Az emeleten három további szoba és egy extra fürdőszoba várja Önt, tökéletes megoldást nyújtva nagyobb családok vagy vendégek számára. Az EXKLUZÍV MINŐSÉGŰ bel- és kültéri burkolatok, valamint a PRÉMIUM minőségű nyílászárók fokozzák az épület eleganciáját és hőmegtartó képességét.

Az ingatlan energetikai hatékonyságáról a ZÖLD megoldások gondoskodnak. A legkorszerűbb fal-, mennyezet- és padlófűtés/hűtés rendszerek, napelemes rendszer által támogatott hőlégszivattyú, valamint a hőszigetelt falak mind hozzájárulnak az alacsony rezsiköltségekhez és a környezettudatos élethez.

Az ELIT életstílust az OKOS OTTHON rendszer, elektromos redőnyök, és a riasztó- és kamerarendszer garantálják, így Ön mindig biztonságban érezheti magát. Az ingatlanhoz két szuper nagyságú terasz tartozik: az egyik a Balaton felejthetetlen panorámájával, míg a másik egy intim udvar nyugalmával ajándékozza meg Önt.

Ez az ingatlan ideális választás lehet NYARALÓNAK vagy állandó otthonnak is azok számára, akik nem kívánnak lemondani a természet közelségéről és a modern kor vívmányairól.Az ingatlan teljes bútorzata az árban. Ragadja meg ezt a kivételes lehetőséget, és legyen részese a Balaton nyújtotta élményeknek a mindennapokban! Érdeklődjön most, hiszen ennél gyönyörűbb helyet keresve se találna! 

 

 

 

Discover the exclusive semi-detached homes located on the iconic beachfront street in Zamárdi, along the shores of Lake Balaton! These properties captivate potential buyers not only with their stunning architectural solutions but also with their prime locations. The properties can be purchased separately or together, allowing you to decide how to enjoy the advantages of the area.

The unique feature of the property is the PANORAMIC view of Lake Balaton and the Tihany Peninsula, offering a special experience at any time of day. The ground floor features a spacious living room, a modern kitchen, and a dining area, ideal for family or friendly gatherings. Additionally, there is a bedroom and a bathroom that provide a comfortable retreat.

Upstairs, three additional rooms and an extra bathroom await you, offering a perfect solution for larger families or guests. The EXCLUSIVE QUALITY of interior and exterior finishes, along with PREMIUM quality windows and doors, enhance the elegance and thermal insulation of the building.

The property’s energy efficiency is ensured by GREEN solutions. The most modern wall, ceiling, and underfloor heating/cooling systems, a heat pump supported by a solar panel system, and insulated walls all contribute to low utility costs and environmentally conscious living.

An ELITE lifestyle is guaranteed by the SMART HOME system, electric shutters, and the alarm and camera system, ensuring your constant safety. The property includes two superbly large terraces: one offers unforgettable views of Lake Balaton, while the other provides the tranquility of an intimate courtyard.

This property could be an ideal choice as a HOLIDAY HOME or permanent residence for those who wish to remain close to nature without sacrificing modern conveniences. Seize this exceptional opportunity and become part of the experiences offered by Lake Balaton in your everyday life! Inquire now, as you won't find a more beautiful location easily!

 

 

 

Entdecken Sie die exklusiven Doppelhaushälften am Ufer des BALATON in der ikonischen Strandstraße von Zamárdi! Diese Immobilien beeindrucken nicht nur durch ihre atemberaubenden architektonischen Lösungen, sondern auch durch ihre Lage, die sofort das Interesse der Besucher weckt. Die Immobilien können getrennt oder zusammen erworben werden, so dass Sie entscheiden können, in welcher Form Sie die Vorteile des Ortes genießen möchten.

Das Besondere an der Immobilie ist der EWIGE PANORAMABLICK auf den Balaton und die Halbinsel Tihany, der zu jeder Tageszeit ein einzigartiges Erlebnis bietet. Im Erdgeschoss befinden sich ein geräumiges Wohnzimmer, eine moderne Küche und ein Essbereich, die ideal für Familien- oder Freundestreffen sind. Außerdem gibt es ein Schlafzimmer und ein Badezimmer, die einen komfortablen Rückzugsort bieten.

Im Obergeschoss erwarten Sie drei weitere Zimmer und ein zusätzliches Badezimmer, perfekt für größere Familien oder Gäste. Die EXKLUSIVEN QUALITÄTS-Bodenbeläge für Innen- und Außenbereiche sowie die PREMIUM-Qualitätsfenster erhöhen die Eleganz und Wärmespeicherfähigkeit des Gebäudes.

Für die Energieeffizienz der Immobilie sorgen GRÜNE Lösungen. Die modernsten Wand-, Decken- und Fußbodenheizungs/-kühlsysteme, eine von einem Solarsystem unterstützte Wärmepumpe sowie wärmegedämmte Wände tragen zu niedrigen Betriebskosten und einem umweltbewussten Leben bei.

Der ELITE-Lebensstil wird durch das SMART HOME-System, elektrische Rollläden sowie Alarm- und Kamerasysteme garantiert, sodass Sie sich stets sicher fühlen können. Zur Immobilie gehören zwei großzügige Terrassen: die eine bietet einen unvergesslichen Blick auf den Balaton, die andere schenkt Ihnen die Ruhe eines intimen Gartens.

Dieses Anwesen ist ideal als FERIENHAUS oder ständiger Wohnsitz für diejenigen, die nicht auf die Nähe zur Natur und die Errungenschaften der modernen Zeit verzichten möchten. Ergreifen Sie diese außergewöhnliche Gelegenheit und werden Sie Teil der Erlebnisse, die der Balaton im Alltag bietet! Fragen Sie jetzt nach, denn einen schöneren Ort werden Sie kaum finden!

 

 

 

Исследуйте эксклюзивные половины коттеджа, расположенные на культовой набережной улице в Замарди, на берегу Балатона! Эти объекты недвижимости привлекают внимание не только своим впечатляющим архитектурным решением, но и расположением. Недвижимость может быть приобретена отдельно или целиком, и вы сами решаете, в каком формате вы хотите наслаждаться всеми преимуществами этого места.

Особенностью этой недвижимости является ВЕЧНЫЙ ПАНОРАМНЫЙ вид на Балатон и Тиханьский полуостров, который дарит вам особенные впечатления в любое время суток. На первом этаже находится просторная гостиная, современная кухня и столовая, идеальные для семейных или дружеских встреч. Кроме того, здесь размещены спальня и ванная комната, которые обеспечивают комфортное уединение.

На втором этаже вас ждут три дополнительные комнаты и еще одна ванная комната, что отлично подходит для больших семей или гостей. ЭКСКЛЮЗИВНОЕ КАЧЕСТВО внутренней и внешней отделок, а также ПРЕМИАЛЬНЫЕ оконные рамы подчеркивают элегантность здания и его способность сохранять тепло.

Об энергетической эффективности имущества заботятся ЭКОЛОГИЧЕСКИЕ решения. Самые современные системы настенного, потолочного и напольного отопления/охлаждения, тепловой насос, поддерживаемый солнечной системой, а также хорошо изолированные стены способствуют низким эксплуатационным расходам и экологически устойчивой жизни.

ЭЛИТНЫЙ стиль жизни гарантируется системой УМНЫЙ ДОМ, электрическими жалюзи, а также охранной и камерной системой, так что вы всегда можете чувствовать себя в безопасности. У недвижимости есть две великолепные террасы: одна с незабываемой панорамой Балатона, а вторая дарит вам уединение уютного двора.

Эта недвижимость может стать идеальным выбором для дачи или постоянного проживания для тех, кто не хочет отказываться от близости к природе и современных удобств. Воспользуйтесь этой исключительной возможностью и станьте частью впечатлений, которые предлагает Балатон в повседневной жизни! Свяжитесь с нами сейчас, ведь более красивого места вам не найти!

 

 

Családi ház részletei

Ár: 272 000 000 Ft
Méret: 121 négyzetméter
Azonosító: 11504233
Irodai azonosító: 716300706
Telek: 413 négyzetméter
Ingatlan állapota: Átlagos
Jelleg: ikerház
Építőanyag: Tégla
Komfort fokozat: Dupla komfort
Kor: Új építésű
Egész szobák: 5