Eladó családi ház Zsámbék 99 900 000 Ft

Leírás

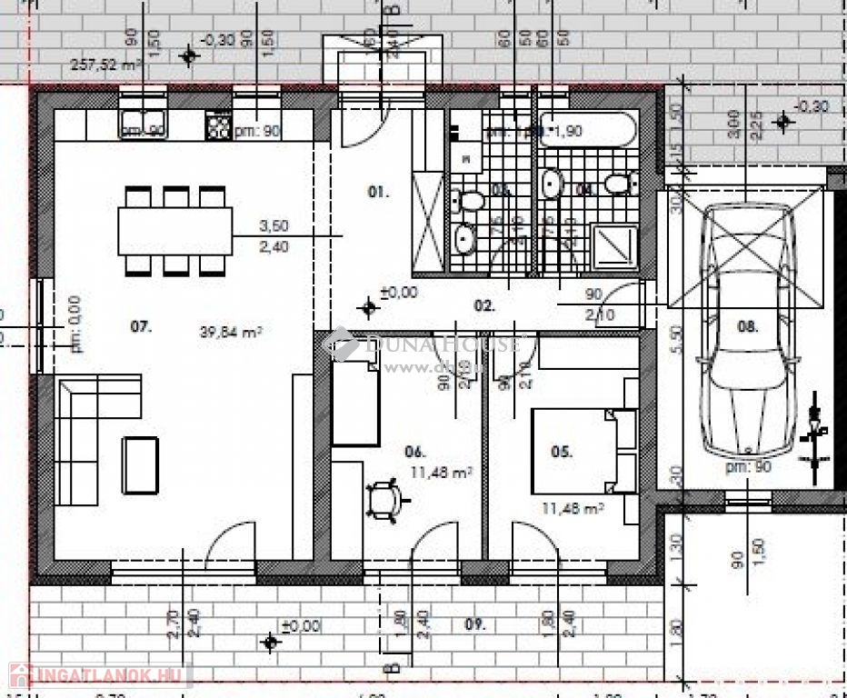
Zsámbék újépítésű csendes részén, újonnan parcellázott telkeken kínálok megvételre nagyon jó elosztású, egyszintes, Nappali+ 3 szobás, garázsos ikerházi lakásokat, a hozzájuk tartozó 430 m2-es telekkel.Az ikerfeleket hangszigetelő téglafal, és a garázsok is szeparálják egymástól, minden a legújabb energetikai elvárásoknak megfelelően kerül kivitelezésre.A nyílászárók 3 rétegű üveggel készülnek, a födém 30 cm, a homlokzat 15 cm szigetelést kap, és a legmagasabb minőségű Daikin, vagy Panasonic hőszivattyú biztosítja majd a fűtést, melegvizet, ill. igény szerint a hűtést is.A burkolatokat a vevő választja ki, most még a belső kialakítás is némileg egyénre szabható. A műszaki tartalomról részletes felvilágosítást adok.Lehetőség van nappali+2 illetve nappali+3 szobás beosztásra, de igény szerint a garázs helyén egy 4. hálószoba kialakítására is.Olyan konstrukcióval szerződünk, hogy nem lesz illetékfizetési kötelezettsége a vevőnek, (ez 4 M Ft megtakarítást jelent!).Ha a vevő hitellel vásárolna, akkor építési hitellel épül, ezen kívül CSOK + is igénybe vehető rá, melyhez ingyenes szolgáltatásunkkal, profi hiteltanácsadónk a legmegfelelőbb ajánlatot, és bankot fogja megtalálni Önnek.Ha felkeltette érdeklődését, további felvilágosításra van szüksége, vagy megtekintené, hívjon bizalommal a hét bármely napján!Ha nem érne el, visszahívom!

Családi ház részletei

Ár: 99 900 000 Ft
Méret: 113 négyzetméter
Azonosító: 11615100
Irodai azonosító: HZ063609-4760656
Telek: 430 négyzetméter
Összesített energetikai besorolás: A
Ingatlan állapota: Épülő
Jelleg: ikerház
Építőanyag: Tégla
Fűtés jellege: Villany
Fűtés módja: Hőszivattyú
Kor: Új építésű
Szintek száma: Földszintes
Egész szobák: 3

Térkép