Eladó ipari ingatlan Csurgó 45 000 000 Ft

Leírás

Somogy Vármegye, Csurgó városában eladó az egészségház szomszédságában 2011-ben épített üzlethelyiség.
Az üzlethelyiség gyógyszertárként üzemelt.


A telek:

998 nm, belterületi telek.
napos, parkosított saroktelek
aszfaltos útról megközelíthető
jelenleg nincs bekerítve, de bekeríthető
parkolási lehetőség az utcán, de a telken is lehet.

közművek a házon belül ( víz, villany, gáz, csatorna)
villany földkábelben vitték be a tulajdonosok a házba.

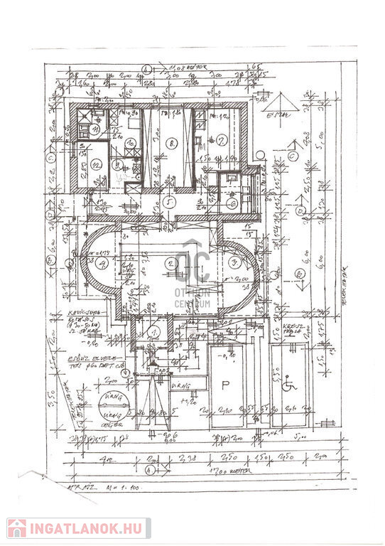
Üzlethelyiség:

Önálló, szabadon álló, különleges formájú ház
2011-ben épült
Falazat YTONG 38 tégla
válaszfalak vázra 15mm vastag tűzálló gipszkarton, hangszigetelés közötte ásványgyapot.
födém: fagerendás
nyílászárók műanyag, három rétegű
fűtés turbó kazán padlófűtéssel
hűtő-fűtő klíma
Belmagasság az eladó térben kb. 360 cm, a többi helyiségben kb. 265 cm
A ház szigetelve nincs

Helyiségek:
Bruttó 148,66 nm , nettó 115,23 nm
eladó tér 36 nm
szélfogó 4 nm
gyógyászati segédszoba 7,18 nm
iroda 5,80 nm
személyzeti mosdó 4 nm
személyzeti öltöző 6 nm
háztartási helyiség kazánház: 3,84 nm
raktár 15,04 nm
laboratórium 12,9 nm
konyha fülke 5 nm
közlekedő 9,45 nm

Burkolat minden helyiségben gres lap ( járólap)

Az épületet a jó elhelyezkedése miatt akár pékségnek, kávézónak, vendéglátó egységnek, irodának, orvosi rendelőnek is lehet használni.
Ha egy érdeklődő családi ház kialakításában gondolkodik, abban is segítséget nyújt a tulajdonos az átminősítésben.

Bevásárló lehetőség LIDL kb. 200 m távolságban, Egészségház 20 méterre
Játszótér, sport központ , iskola, óvoda a város központja néhány perces távolságban gyalogosan is elérhető.

Ajánlom befektetőknek, vállalkozóknak, családoknak.

Ha családi házban gondolkodnak akkor egy déli fekvésű, amerikai konyhás nappali + 3 szoba, háztartási helyiséggel tágas fürdőszoba WC-vel alakítható ki kényelmesen minimális ráfordítással.

Az energetikai tanúsítvány készítése folyamatban van, amint rendelkezésre áll, úgy azzal a hirdetés frissítésre kerül.

Ipari ingatlan részletei

Ár: 45 000 000 Ft
Méret: 104 négyzetméter
Azonosító: 11601480
Irodai azonosító: UZ016843-5157568
Ingatlan állapota: Átlagos
Jelleg: egyéb
Helyiségek: 1

Egyéb jellemzők

  • Csatorna
  • Gáz
  • Villany
  • Víz

Térkép