Eladó ipari ingatlan Kecskemét 379 900 000 Ft

Leírás

ELADÓ Kecskeméten a Mindszenti krt.-ról könnyen megközelíthető, igényesen felújított telephely raktárral!

Jellemzői:
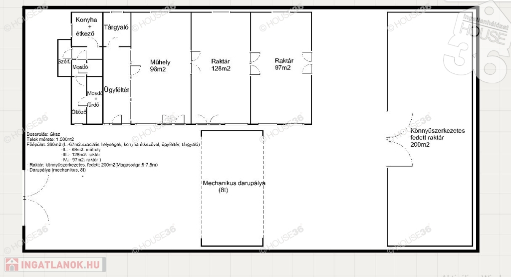
- Besorolás: Gksz
- Telek mérete: 1.500 m2
- Főépület: 390 m2 (I.: - 67 m2: szociális helységek, konyha, ügyféltér, tárgyaló
II.: - 98 m2: műhely
III.: - 128 m2: raktár
IV.: - 97 m2: raktár)
- Raktár: könnyűszerkezetes, fedett : 200 m2 (Magassága:5-7,5 m)
- Daru pálya: mechanikus (8t)
- Teljesen leburkolt terület
- Elektromos kapu
- Kamera rendszer + riasztó
- 2022-ben műszaki (vezeték-,nyílászáró- és tetőcsere, szigetelés, fűtéskorszerűsítés)- és esztétikai felújítások (burkolat- és konyhabútorcsere, fürdőszoba ill.festés)
- Klimatizált helyiségek

Az eladási ár az ÁFÁ-t nem tartalmazza!

Figyelem az adatlap megbízónktól kapott adatok alapján készült, pontosságáért felelősséget nem tudunk vállalni! Szolgáltatásaink Kereső ügyfeleink számára INGYENESEK! Amennyiben eladó-kiadó ingatlana van vagy finanszírozási megoldást keres, hívjon, megtaláljuk a legjobb lehetőséget Önnek! A HOUSE36 kínálatában található összes ingatlannal kapcsolatban tudok felvilágosítást nyújtani!
Hívjon bizalommal!
Az iroda legfrissebb, aktuális kínálatát a HOUSE36 saját weboldalán találja!

Ipari ingatlan részletei

Ár: 379 900 000 Ft
Méret: 590 négyzetméter
Azonosító: 11594299
Irodai azonosító: 3619578-4906116
Ingatlan állapota: Átlagos
Jelleg: egyéb
Helyiségek: 1

Térkép

Hasonló ipari ingatlan hirdetések

Eladó ipari ingatlan

Kecskemét

ELADÓ Kecskeméten a Mindszenti krt.-ról könnyen megközelíthető, igényesen ...

Eladó ipari ingatlan

Kecskemét

Kecskeméten autópálya közelében, 6379 m2-es telken, telephely eladó !! jellemzők. - ...

Hasonló ipari ingatlan hirdetések

Eladó ipari ingatlan

Kecskemét

ELADÓ Kecskeméten a Mindszenti krt.-ról könnyen megközelíthető, igényesen ...

Eladó ipari ingatlan

Kecskemét

Kecskeméten autópálya közelében, 6379 m2-es telken, telephely eladó !! jellemzők. - ...