Eladó iroda/üzlethelyiség Budapest II. ker 4 000 000 Euro

Leírás


C I T Y C A R T E L

INTERNATIONAL LUXURY REAL ESTATE AGENCY

Realty Specialist

bemutatja

 

IRODAHÁZNAK, KLINIKÁNAK, REZIDENCIÁNAK is alkalmas luxusingatlan Budapest II. kerületében!



Kiváló adottságú ingatlant ajánlunk, amely Budapest egyik legszebb részének zöldövezeti részében található, közel Budakeszihez, a kerület egyik fő útvonalának, a Budakeszi útnak a közvetlen közelében, kellemes természetes környezetben!



Az ingatlan egy 1804 nm területű, gyönyörűen füvesített, dísznövényekkel tarkított telken található, melyen 1050 nm hasznos alapterületű, 3-emeletes, mélygarázssal rendelkező épület helyezkedik el. Az épület kiválóan alkalmas irodaépületként, klinikaként, hivatalként vagy lakó-rezidenciaként történő üzemeltetéshez!

 

Nyáron az ingatlant körülvevő erdő szép fáinak sűrű lombjai közül élénk madárcsicsergés és a természet egyéb megnyugtató hangjai hallhatók, míg télen a hóesés gyönyörű hófehér tájjá varázsol mindent.

Az ingatlan közvetlen közelében ismert és szép túraútvonalak indulnak a budai hegyek irányába, remek kikapcsolódást és mozgási lehetőséget biztosítva. A környék levegője itt a legtisztább a fővárosban, köszönhetően a dús vegetációnak. A közelben akár a Budakeszi úton vagy Budakeszin iskolák, hivatalok, éttermek és boltok találhatók.



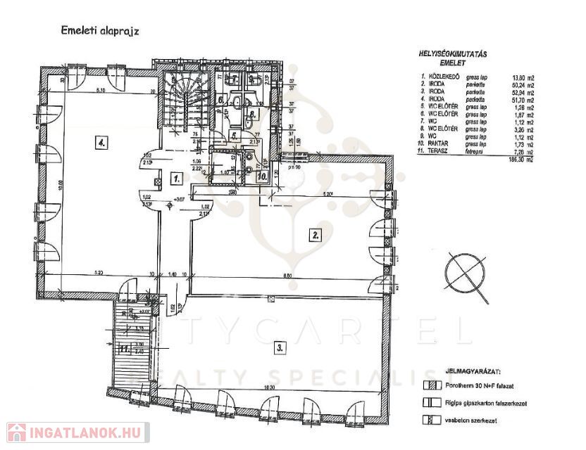
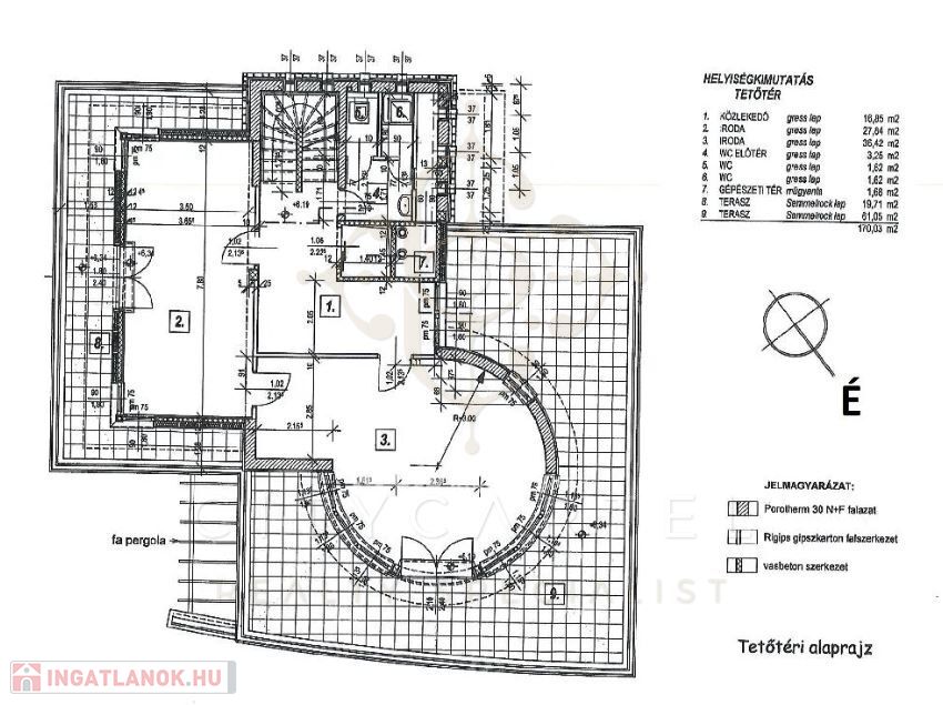
Az épületben egy hatalmas előtér, egy nagytárgyalóként használható helyiség, 4 kistárgyalónak is beillő helyiség és 6 szoba található összekötő terekkel, lifttel, egy nagy garázzsal, a garázsszinten szintén szobákkal és egy konyhával-ebédlővel. A telek teljes mértékben közművesített. Az ingatlan előtt, az Üdülő utcában sok autó parkolásához elegendő hely található.

Az ingatlan, bár zöldövezetben található, jól, könnyen és gyorsan megközelíthető bármilyen irányból. A belvárosból vagy a Széll Kálmán-térről autóval 15 perc, tömegközlekedéssel 20-25 perc. Budakeszi irányából pedig az M1 és M3 autópálya kivezető szakasza 10 perc alatt elérhető. Pár percre található az Országos Korányi Pulmonológiai Intézet és az Országos Orvosi Rehabilitációs Intézet, továbbá a Budakeszi Vadaspark, illetve a Gyermekvasút. 

 

Ár: 4.000.000 EUR

 

 

ÜDVÖZLETTEL:

DR VINCELLÉR ZSUZSA

ÜGYVEZETŐ, CEO, LUXURY SPECIALIST

+3630-815-2510

V.ZSUZSA@CITYCARTEL.HU

 

CITY CARTEL BUDA KFT.

CITY CARTEL FRANCHISE HUNGARY KFT.

1118 BUDAPEST, HEGYALJA ÚT 54.

1026 BUDAPEST, SZILÁGYI ERZSÉBET FASOR 121.

BUDAGYÖNGYE BEVÁSÁRLÓKÖZPONT

WWW.CITYCARTEL.HU

Iroda/üzlethelyiség részletei

Ár: 4 000 000 Euro
Méret: 1 050 négyzetméter
Azonosító: 11446443
Irodai azonosító: 10824172
Jelleg: iroda

Egyéb jellemzők

  • Lift