Eladó iroda/üzlethelyiség Budapest II. ker 385 000 000 Ft

Leírás

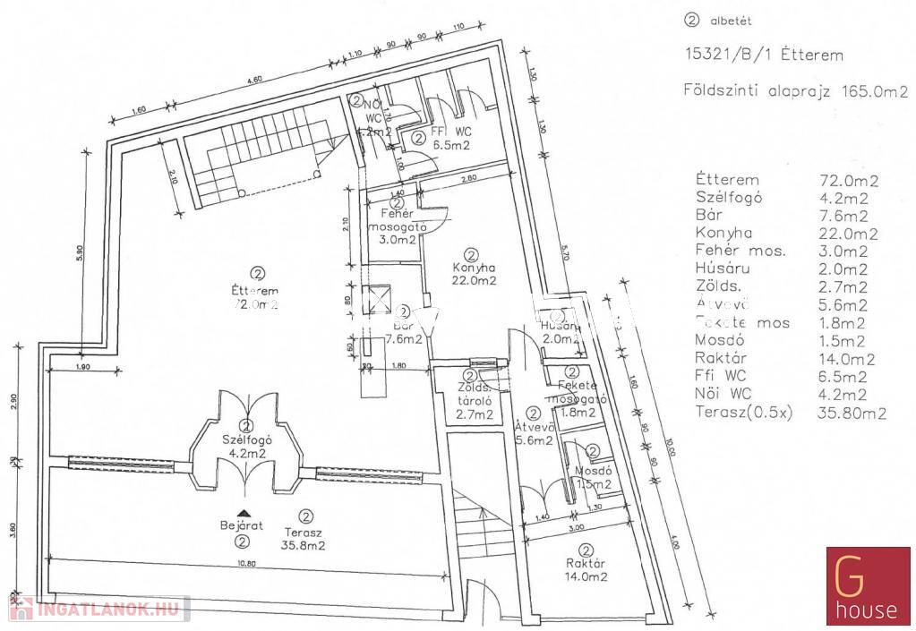
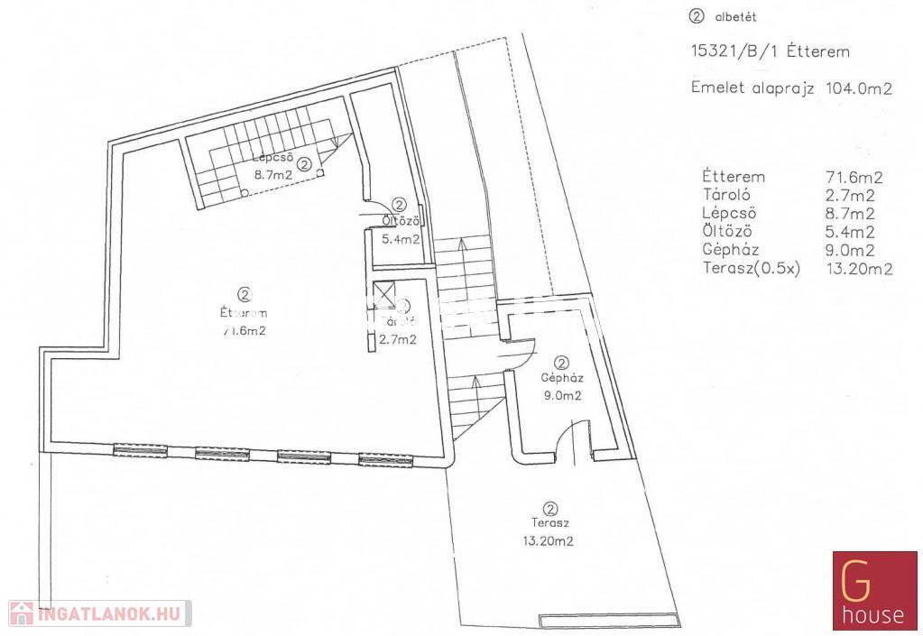
Kétszintes, teljeskörűen felújított klimatizált étterem eladó a Pusztaszeri főútvonalon. Az ingatlanhoz nagy terasz tartozik, a portál egyedi kivitelezésű, hőszigetelt üvegezésű fa nyílászárókkal. A földszinti és a felső szint 50-50, összesen 100 fő befogadására alkalmas, amennyiben étteremként funkcionál.

Kiválóan alkalmas rendezvények, illetve családi összejövetelek megrendezésére, továbbá orvosi rendelőnek, szépségszalonnak, irodának, bármilyen márkaképviseletnek vagy bemutatóteremnek is. Az ingatlan előtt ingyenes parkolási lehetőség biztosított.

Jelenleg BÉRLŐVEL, nem étterem céljára hasznosított. A bérlő szerződése 2024 augusztusig szól, a bérleti idő lejártával az eredeti állapot kerül visszaállításra.

Eladási ára: 1.000.000€

Amennyiben hirdetésem felkeltette érdeklődését, keressen bizalommal!

Iroda/üzlethelyiség részletei

Ár: 385 000 000 Ft
Méret: 280 négyzetméter
Azonosító: 10330950
Irodai azonosító: 10498
Cím: Szemlő-hegyi-barlang közelében
Jelleg: Üzlethelyiség
Helyiségek: 1

Egyéb jellemzők

  • Lift