Eladó iroda/üzlethelyiség Budapest XIII. ker 116 849 990 Ft

Leírás

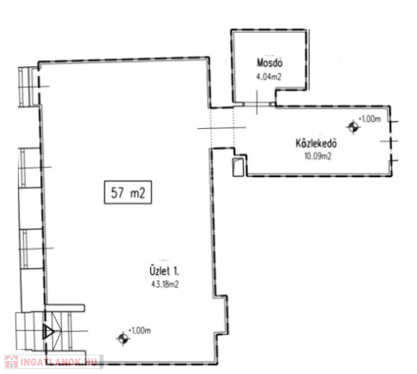
BUDAPEST XIII. kerületben, a DUNA PLÁZA közelében, 51 lakásos, liftes, téglaépítésű társasházban, utcai bejáratú, földszinten elhelyezkedő, 57 m2 alapterületű üzlethelyiség ELADÓ.
A 2 emeletes 51 lakásos, liftes, téglaépítésű társasház a századfordulón épült, melynek teljes átépítése, felújítása történt és kapta meg jelenlegi arculatát. A fűtésről, meleg víz ellátásról elektromos cirkó gondoskodik, radiátor hő leadóval és hűtő-fűtő klíma is beszerelésre került. Az épület energetikai besorolása „B”.

Átadás: 2025. II. negyedév

Az épület biztonságáról 24 órás portaszolgálat gondoskodik. Gépjárművek parkolására a ház előtti kialakított parkolóban van lehetőség.
Az üzlethelyiséget tekintve, a lakók érdekeit szem előtt tartva, a tervek szerint nem vendéglátó egység létesítése a cél, amely esetleg a lakók nyugalmát és biztonságát zavarná.

A folyamatosan fejlődő városrészben a lokáció és a közlekedés kiváló. Közelben a Duna Pláza, Tesco bevásárlóközpont.
Hívjon bizalommal, ha az ajánlat felkeltette érdeklődését.
Bajnóczi Beáta
GDN Region Ingatlan

Iroda/üzlethelyiség részletei

Ár: 116 849 990 Ft
Méret: 57 négyzetméter
Azonosító: 11536482
Irodai azonosító: 382641
Cím: Váci út
Jelleg: iroda
Elhelyezkedés: Lakásban

Egyéb jellemzők

  • Garázs
  • Lift
  • Parkoló

Térkép

Hasonló iroda/üzlethelyiség hirdetések

Eladó iroda/üzlethelyiség

Budapest XIII. ker

Eladó Üzlethelyiség Újlipótvárosban – Kiváló Elhelyezkedés és Sokoldalú ...

Eladó iroda/üzlethelyiség

Budapest XIII. ker

Eladó a XIII. kerületben, Újlipótvárosban a Pannonia utca közelében ...

Eladó iroda/üzlethelyiség

Budapest XIII. ker

Budapest XIII. kerületében, Újlipótváros egyik legforgalmasabb utcájában ...

Eladó iroda/üzlethelyiség

Budapest XIII. ker

BUDAPEST XIII. kerületben, a DUNA PLÁZA közelében, 51 lakásos, liftes, ...

Hasonló iroda/üzlethelyiség hirdetések

Eladó iroda/üzlethelyiség

Budapest XIII. ker

Eladó Üzlethelyiség Újlipótvárosban – Kiváló Elhelyezkedés és Sokoldalú ...

Eladó iroda/üzlethelyiség

Budapest XIII. ker

Eladó a XIII. kerületben, Újlipótvárosban a Pannonia utca közelében ...

Eladó iroda/üzlethelyiség

Budapest XIII. ker

Budapest XIII. kerületében, Újlipótváros egyik legforgalmasabb utcájában ...

Eladó iroda/üzlethelyiség

Budapest XIII. ker

BUDAPEST XIII. kerületben, a DUNA PLÁZA közelében, 51 lakásos, liftes, ...