Eladó iroda/üzlethelyiség Dunaharaszti 588 000 000 Ft

Leírás

Dunaharaszti frekventált iparterületén, irodaház Eladó!

Az ingatlan kiváló cégközpontnak és/vagy munkásszállónak is!

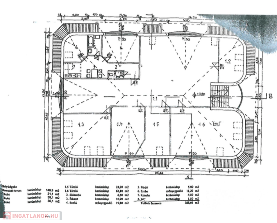
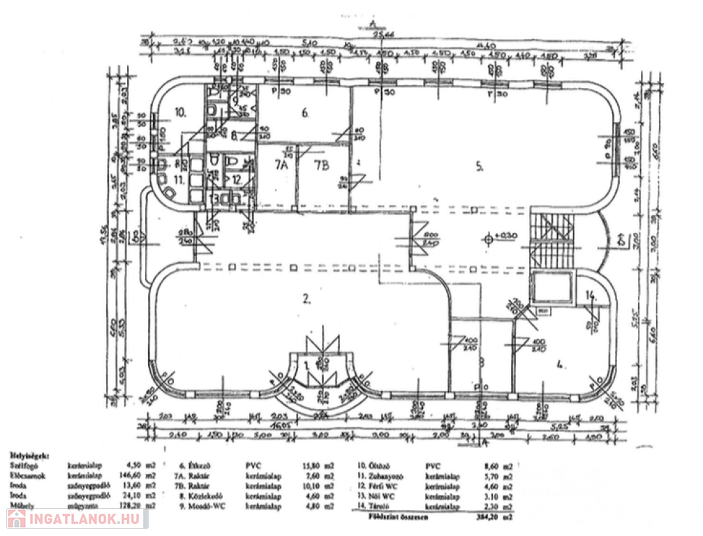
Kereskedelmi, szolgáltató gazdasági területen kínálom megvételre az 1995-ben épült, irodaházként funkcionáló háromszintes, néhány éve részben felújított ingatlant, mely 1162 m2, szintenként (3 X 380 m2) alapterületű.

A 6000 m2-es sík, teljes közművel ellátott telekterületen elhelyezkedő többfunkciós ingatlan telephely besorolású, kerítéssel határolt zöld terület, parkosított kerttel, több gépjármű részére biztosított parkolóval.

AZ IRODAÉPÜLET FŐBB JELLEMZŐI:

- 1162 m2 alapterületű, két szintes (+pince)
- Porotherm 38-as falazat, tetőborítása bitumenes zsindely héj,
- szintenként korszerű vizesblokk és irodai konyha,
- a legfelső emeleten kialakításra került egy kis lakás 60 nm,
- saját hőközponttal rendelkezik az épület + klímák,
- tűz és riasztórendszer,
- kiépített LAN-kábel hálózat és telefonhálózat,
- kerítéssel határolt zöldterület,
- parkosított kert, több gépjármű részére biztosított parkoló.

AZ INGATLAN ELHELYEZKEDÉSÉNEK ELŐNYEI:

A Dunaharaszti ipari park nyújtotta lehetőségek számos előnyt kínálnak. Fejlett infrastruktúra.
A frekventált ipari park megközelítése aszfaltozott közúton és üzemi úton, M0 autóútról 51-es számú útra letérve, könnyen megközelíthető.
Kiváló tömegközlekedés.
Rendezett környezet.

Amivel segítjük az Ön ingatlanvásárlását:
- ingyenes hitelügyintézés,
- jogi háttér,
- földhivatali ügyintézés,
- energetikai tanúsítvány,
- a vevő számára az ingatlanközvetítés ingyenes.
Irodánk 30 éves szakmai tapasztalattal áll ügyfelei rendelkezésére!

Várom szíves megkeresését!

Iroda/üzlethelyiség részletei

Ár: 588 000 000 Ft
Méret: 1 162 négyzetméter
Azonosító: 11537721
Irodai azonosító: 382853
Cím: Északi iparterület
Jelleg: iroda
Elhelyezkedés: Irodaházban

Egyéb jellemzők

  • Garázs
  • Lift
  • Parkoló

Térkép