Eladó iroda/üzlethelyiség Hévíz 89 900 000 Ft

Leírás


Eladó üzlethelyiség Hévíz sétálóutcájában! Újszerű üzlethelyiség Hévíz központjában – Kiváló befektetési lehetőség!

 

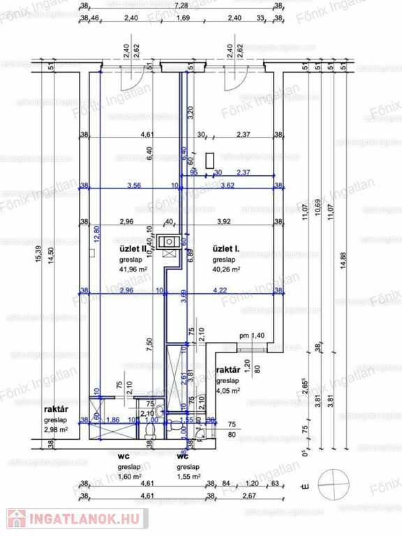
Hévíz legfrekventáltabb részén, a sétálóutca közepén kínálunk eladásra egy modern, földszinti, 94 m²-es üzlethelyiséget, amely közvetlen utcafronti, dupla kirakatos bejárattal rendelkezik. A maximális kihasználhatóság érdekében az ingatlan 2024 nyarán teljeskörű átalakításon esett át, amelynek során két különálló üzlethelyiségre lett osztva.

 

Főbb jellemzők:

- Elhelyezkedés: Hévíz sétálóutcájának központi részén, a Tófürdőtől csupán 2 perc sétára

- Alapterület: 94 m², jelenleg két külön bejárattal

- Kialakítás: 2 részre osztott, de könnyedén visszaalakítható egy légtérré

- Szerkezet: Téglaépítésű társasház földszinti, üzletsori része

- Funkció: Jelenleg üzlethelyiségként nyilvántartott, de igény szerint lakássá is átalakítható

 

Helyiségek méretei:

 

1. üzlethelyiség (47,41 m²):

Kiszolgáló egység: 40,26 m²

Raktár: 4,05 m²

WC: 1,55 m²

 

2. üzlethelyiség (46,54 m²):

Kiszolgáló egység: 41,96 m²

Raktár: 2,98 m²

WC: 1,60 m²

 

Rugalmasság és befektetési lehetőség:

Az ingatlan egyben és külön-külön is eladó. Két részben történő értékesítés esetén először a nagyobbik üzlethelyiséget kívánjuk eladni. A hirdetésben szereplő ár erre az egységre vonatkozik, míg mindkét üzlet együttes megvásárlása esetén az ár egyedi megállapodás tárgyát képezi.

A sétálóutca elhelyezkedéséből adódóan a környéken magas bérleti díjak jellemzőek, így a gyors megtérülés garantált. Akár saját vállalkozás indítására, akár befektetési célra kiváló lehetőséget nyújt ez az ingatlan.

 

Ne hagyja ki ezt a kivételes lehetőséget!

Amennyiben felkeltette érdeklődését az ingatlan, várjuk hívását időpont egyeztetésre!

 

Iroda/üzlethelyiség részletei

Ár: 89 900 000 Ft
Méret: 94 négyzetméter
Azonosító: 11554987
Irodai azonosító: 705100187
Jelleg: iroda

Egyéb jellemzők

  • Lift

Hasonló iroda/üzlethelyiség hirdetések

Eladó iroda/üzlethelyiség

Hévíz

Hévíz központjában felújított üzlethelyiség eladó. A település egész ...

Eladó iroda/üzlethelyiség

Hévíz

Hévízen 94 m2-es belvárosi dupla üzlet-iroda eladó. Az eladásra kínált ...

Eladó iroda/üzlethelyiség

Hévíz

Figyelmükben ajánlom a Sétáló utcában lévő üzlethelyiséget! Zala ...

Hasonló iroda/üzlethelyiség hirdetések

Eladó iroda/üzlethelyiség

Hévíz

Hévíz központjában felújított üzlethelyiség eladó. A település egész ...

Eladó iroda/üzlethelyiség

Hévíz

Hévízen 94 m2-es belvárosi dupla üzlet-iroda eladó. Az eladásra kínált ...

Eladó iroda/üzlethelyiség

Hévíz

Figyelmükben ajánlom a Sétáló utcában lévő üzlethelyiséget! Zala ...