Eladó iroda/üzlethelyiség Szigethalom 76 200 000 Ft

Leírás

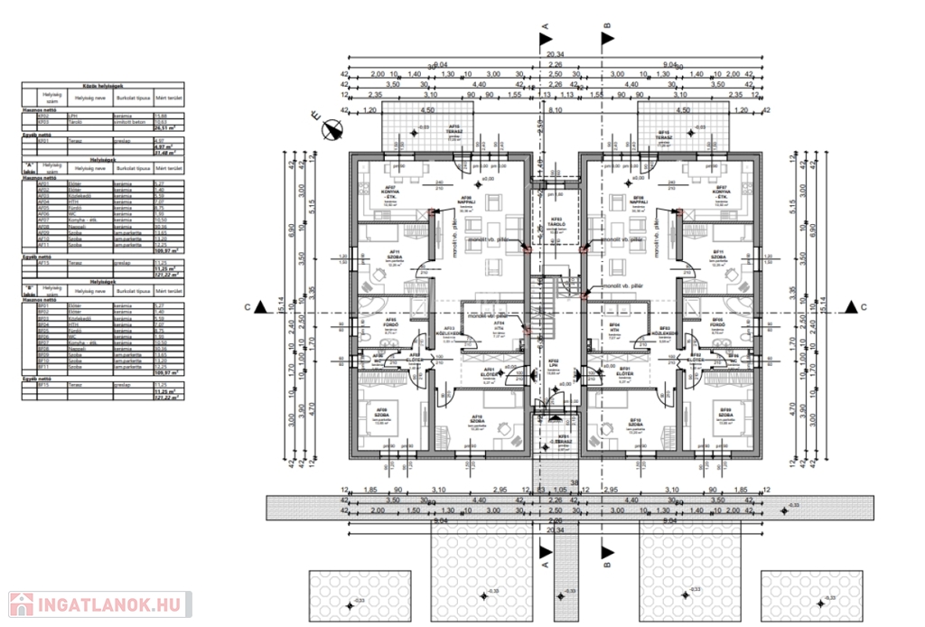
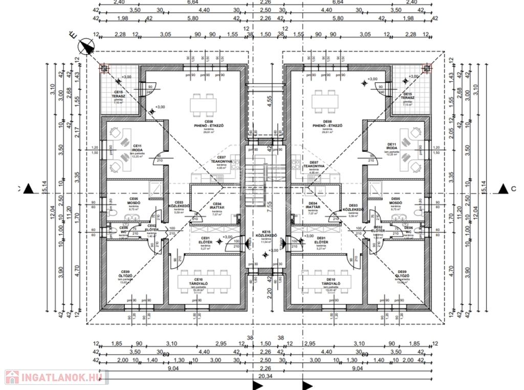
Szigethalom központi részén négy egységből álló "ikerház jellegű" " C" jelű emeleti hőszivattyús iroda eladó!

KIVÁLÓ KIVITELEZŐ, VERSENYKÉPES ÁRON, KIVÁLÓ IRODÁT REMEK HELYEN AJÁNL ÖNNEK! H-TARIFA, HŐSZIVATTYÚ!

Az iroda helyiségei: előtér 2,27 m2, előtér 1,40 m2, közlekedő 5,59 m2, irattár 7,07 m2, mosdó 8,75 m2, wc 1,93 m2, teakonyha 4,95 m2, pihenő/étkező 29,61 m2, öltöző 13,65 m2 tárgyaló 13,20 m2, iroda 12,25 m2, terasz 7,19 m2.

Az irodákat zárt lépcsőházból érjük el, a földszinten két lakás, az emeleten két iroda kerül kialakításra.

Az épület beton alapra, 30-as síkra csiszolt tégla falazattal, monolit beton födémmel, beton cserép fedéssel épül meg.
Az épület külső nyílászárói (ablakok) műanyag szerkezetűek 6 légkamrás 3 rétegű hőszigetelt üvegezéssel, elektromos redőnnyel, szerelve. A bejárati biztonsági ajtó több ponton záródó.
A homlokzaton 12 cm GRAFITOS Dryvit rendszerű, a zárószinten födémben 20 cm kőzetgyapot, míg a padlóban 12 cm lépésálló nikecell szigetelés kerül beépítésre.
Fűtése/ hűtése, meleg vízellátása hőszivattyúval (levegő) történik padlófűtéssel. A H tarifa kedvező üzemeltetési költséget biztosít.
Burkolatok választhatóak 10,000 ft/nm felette a vevő kompenzál. Szaniterek keretösszegig választhatók.
A kert alap kertrendezéssel kerül átadásra, viacolorozott autóbeállóval és személybejáróval.

Műszaki tartalom ízelítő:
-vasalt beton sávalap,
-30 nf síkra csiszolt tégla falazat
-tégla válaszfalak
-monolit beton födém
-nyílászárók 6 légkamrásak elektromos redőnnyel szereltek, szúnyoghálóval ellátottak,
-tető beton cseréppel fedett
-fűtés hőszivattyúval, padlófűtéses hőleadással
-burkolatok 10.000ft/nm választhatóak
-4 klíma lakásonként
-H tarifa
-lakásokhoz saját kert tartozik
-minden közmű benn kivétel gáz,
-homlokzaton 12 cm dryvit rendszerű szigetelés
-padlón 12 cm lépésálló szigetelés

A burkolatok, szaniterek választhatóak, a kivitelező igyekszik minden vásárlói igényt kielégíteni.

A jelű földszinti lakás 300 m2 kert,109,97 m2 lakótér ára: 81.990.000 ft
B jelű földszinti lakás 300 m2 kert,109,97 m2 lakótér ára: 81.990.000 ft
C jelű emeleti iroda 7,12 m2 terasszal 103,67 m2 hasznos térrel: 76.200.000 ft
D jelű emeleti iroda 7,12 m2 terasszal 103,67 m2 hasznos térrel: 76.200.000 ft

Várható átadás 2026. május.

Várom megtisztelő hívását!

FINANSZÍROZÁS:
Nálunk mindent egy helyen intézhet:
- hivatalos ingatlanközvetítés;
- szakszerű jogi képviselet;
- profi CSOK-PLUSZ, és hitelügyintézés: 16 Bank, több mint 100 konstrukció;

A részletes adatvédelmi tájékoztató folyamatosan elérhető a gdn ingatlan adatvédelmi oldalon.

Iroda/üzlethelyiség részletei

Ár: 76 200 000 Ft
Méret: 104 négyzetméter
Azonosító: 11563492
Irodai azonosító: 387030
Cím: Pest megye
Jelleg: iroda
Elhelyezkedés: Lakásban

Egyéb jellemzők

  • Garázs
  • Lift
  • Parkoló

Térkép

Hasonló iroda/üzlethelyiség hirdetések

Eladó iroda/üzlethelyiség

Szigethalom

Szigethalom központi részén négy egységből álló "ikerház jellegű" ...

Hasonló iroda/üzlethelyiség hirdetések

Eladó iroda/üzlethelyiség

Szigethalom

Szigethalom központi részén négy egységből álló "ikerház jellegű" ...