Eladó iroda/üzlethelyiség Üllő 240 000 000 Ft

Leírás

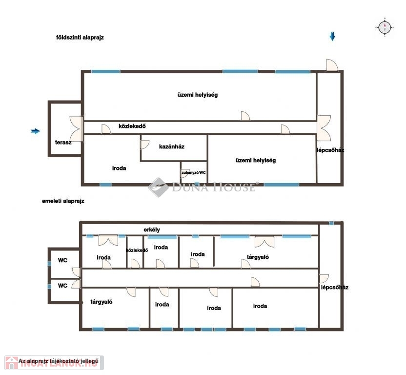
Eladó Üllő városközpontban elhelyezkedő 2894 m2 nagyságú elhelyezkedő 360 m2 nagyságú épület.Üllő központi részén található az ingatlan, közelben bevásárlási lehetőség, orvosi rendelő, önkormányzat, óvoda és piac található.Az épület jelenlegi besorolása kereskedelmi egység, de ez átminősíthető lakóingatlanná.Korábban sörfőzde üzemelt az épületben, a földszinten 2 csarnok is található, hatalmas ablakokkal, tágas terekkel. Ipari tevékenységre azonnal használható, de átalakítható lakássá.Az emeleti részen iroda került kialakításra., ami 2 éve lett teljes körűen felújítva.Az épület nagysága miatt akár 4 lakás is kialakítható, illetve további épületek építhetőek.Az ingatlan kamerarendszerrel, riasztóval és elektromos kapunyitóval felszerelt.Az épület beton alapra téglából épült, pala tetővel.A fűtésről gáz cirkó gondoskodik.Amennyiben vállalkozásra vagy lakások kialakítására keres lehetőséget, megtalálta álmai házát!Nézzük meg együtt!

Iroda/üzlethelyiség részletei

Ár: 240 000 000 Ft
Méret: 360 négyzetméter
Azonosító: 11573631
Irodai azonosító: UZ036753-5065779
Összesített energetikai besorolás: C
Jelleg: Üzlethelyiség
Helyiségek: 1

Egyéb jellemzők

  • Garázs
  • Parkoló

Térkép