Eladó iroda/üzlethelyiség Zalaegerszeg 85 500 000 Ft

Leírás

Eladó exkluzív iroda Zalaegerszeg belvárosában – prémium lokáció, sokoldalú hasznosítási lehetőség!

Eladásra kínálunk egy modern, reprezentatív 200 m² alapterületű irodaingatlant.
Az ingatlan kiváló adottságokkal rendelkezik irodai vagy üzleti hasznosításra, hosszú távon is értékálló befektetési lehetőség.

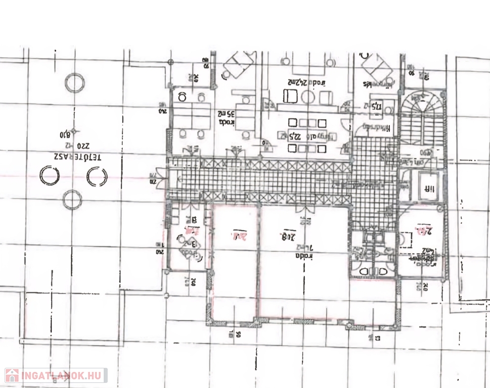
A jelenleg több helyiségből álló irodakomplexum Zalaegerszeg városközpontjában, egy üzletházban található. Az ingatlan önálló lépcsőházon keresztül is megközelíthető, továbbá lift is rendelkezésre áll az ügyfelek és az ott dolgozók számára, így az akadálymentes megközelítés biztosított.

A jelenleg irodaként működő ingatlan kiemelkedő adottságokkal és infrastruktúrával bír – ideális választás irodai, egészségügyi, sport, pénzügyi vagy szolgáltató tevékenységre, illetve bemutatóteremként is tökéletesen hasznosítható.

Az ingatlan főbb jellemzői:

-200 m²-es, emeleti üzlethelyiség, hatalmas üvegportállal, tetőterasz használattal!

-Külön utcai és belső bejárat, lifttel is megközelíthető

-Praktikus, funkcionális térfelosztás:

-Tágas terek, mobilizálható belső falakkal, egybenyitási lehetőséggel

-Jelenleg több különálló, világos irodahelyiség

-Nagy méretű terasz

-Teakonyha, tároló, több mosdóhelyiség

-Hűtő-fűtő klímák

-Megerősített, üzembiztos számítástechnikai rendszer külön szerverszobával

-Külön mérőórák, önálló közművek

-Modern műszaki felszereltség: álmennyezet, riasztó, kamerarendszer, tűz- és füstjelző

-Elegáns épület lifttel és lépcsőházzal.


Elhelyezkedés és környezet

A helyszín Zalaegerszeg üzleti szívében található, mégis nyugodt, csendes környezetet kínál.
A város infrastruktúrája, parkolási lehetőségei és elérhetősége kiváló – gyalogosan, autóval és tömegközlekedéssel is könnyen megközelíthető.

Hasznosítási lehetőségek:

Egészségügyi, szépészeti központ (orvosi rendelő, fogászat, szépségklinika)

Irodai tevékenység (ügyvédi iroda, könyvelés, tanácsadó cég, IT cég)

Bemutatóterem / galéria / pénzügyi szolgáltató központ

Befektetésként bérbeadásra is ideális – azonnal birtokba vehető!

Irányár: 85,5 millió Ft

Ez az ingatlan a város egyik legjobb elhelyezkedésű, legmagasabb presztízsű üzleti tere – ahol a funkcionalitás és az elegancia találkozik.

Iroda/üzlethelyiség részletei

Ár: 85 500 000 Ft
Méret: 200 négyzetméter
Azonosító: 11588755
Irodai azonosító: 391070
Cím: 200 m2-es iroda eladó!
Jelleg: iroda
Elhelyezkedés: Irodaházban

Egyéb jellemzők

  • Garázs
  • Lift
  • Parkoló

Térkép