Eladó lakás Ajka 81 900 000 Ft

Leírás

ELADÓ MODERN STÍLUSÚ, ÚJ ÉPÍTÉSŰ EMELETES LAKÁS - AJKA-BAKONYGYEPES 5 LAKÁSOS LAPOSTETŐS SORHÁZÁBAN!


FIGYELEM!
- JELENLEG SZERKEZETKÉSZ ÁLLAPOTBAN VAN
- MÉG 2 DB EMELETES ÉS 2 DB FÖLDSZINTI LAKÁS ELÉRHETŐ!
- A LAKÁSOK KULCSRAKÉSZ ÁLLAPOTBAN KERÜLNEK ÁTADÁSRA 2025. III. negyedévben
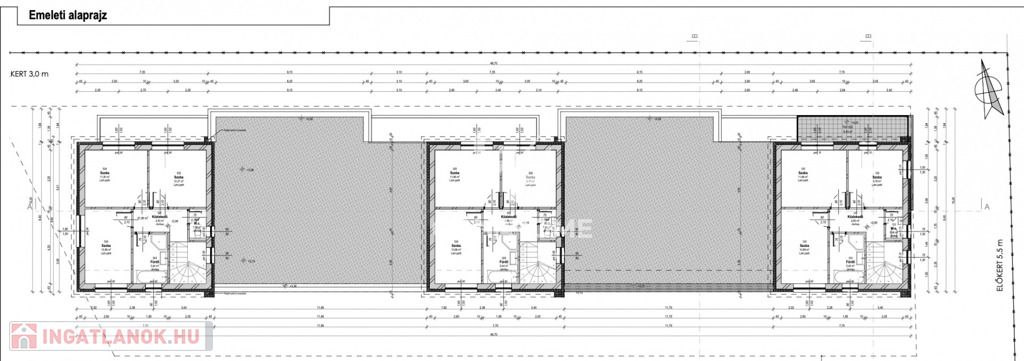
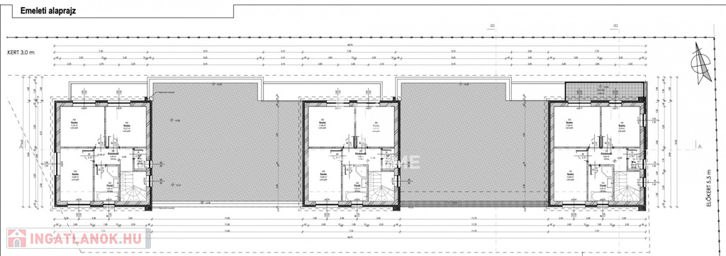
- A SORHÁZ 3 DB EMELETES LAKÁSBÓL, VALAMINT 2 DB FÖLDSZINTES LAKÁSBÓL ÁLL
- A LAKÁSOK ENERGIATAKARÉKOS MEGOLDÁSOKKAL KÉSZÜLTEK, AMI ALACSONYABB FENNTARTÁSI KÖLTSÉGET EREDMÉNYEZNEK!
- PARKOLNI A SORHÁZ UDVARÁN LEHETSÉGES, INGYENESEN!
- A SORHÁZ KERÍTÉSSEL KÖRBEZÁRT
- VÉTELÁR: 90.944.000 Ft

- A SORHÁZ KÖZELÉBEN TALÁLHATÓ ÉLELMISZERBOLT, AMELY GYALOGOSAN IS KÖNNYEN MEGKÖZELÍTHETŐ
- AJKA NÉHÁNY PERC AUTÓVAL ÉS TÖMEGKÖZLEKEDÉSSEL IS EGYARÁNT

- A LAKÁSOK MODERN KIALAKÍTÁSÚAK, A MAI KOR IGÉNYEINEK MEGFELELŐEN LETTEK TERVEZVE.

ALAPADATOK:

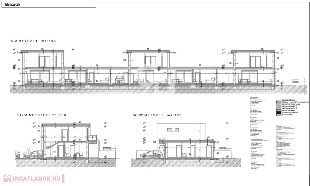
A SORHÁZ:
- ÉPÍTÉSI ÉVE: 2024 III. NEGYEDÉV
- VÁRHATÓ ÁTADÁS: 2025 III. NEGYEDÉV
- SZERKEZETE: TÉGLA

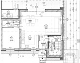
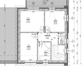
A LAKÁS:
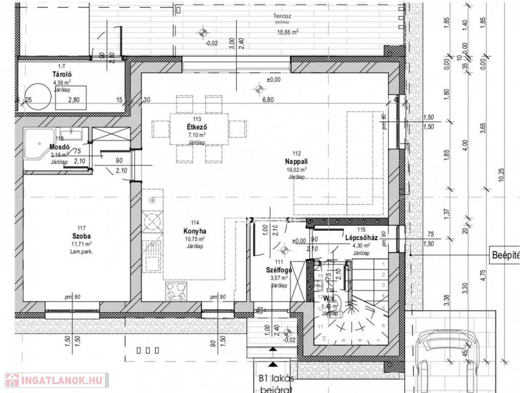
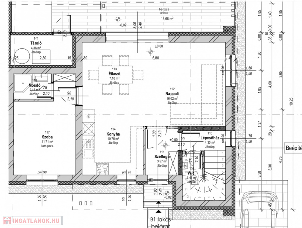
- HASZNOS ALAPTERÜLETE (emelettel együtt): 103,68 m2
Földszint:
- szélfogó: 3,57 m2
- lépcsőház: 4,30 m2
- WC (lépcső alatt): 1,48 m2
- nappali: 16,02 m2
- étkező: 7,10 m2
- konyha: 10,75 m2
- szoba: : 11,71
- mosdó: 2,16 m2
- tároló/gépész hs.: 4,36 m2
- terasz: 18,66 m2

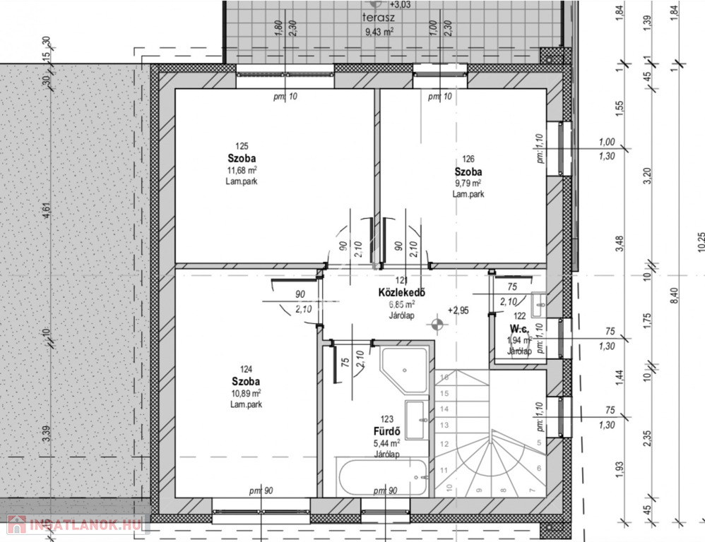
Emelet:
- közlekedő: 6,85 m2
- WC: 1,94 m2
- fürdő: 5,44 m2
- szoba: 10,89 m2
- szoba: 11,68 m2
- szoba: 9,79 m2
- erkély: 9,43 m2

Telek méret: 272 m2


MŰSZAKI ALAPADATOK:

Főfalak: 25 és 30 cm-es Porotherm N+F falazattal készülnek.

Lakáselválasztó falak: Leiertherm 25 cm-es dupla falazat, hangszigeteléssel.

Áthidalók: monolit és kerámia áthidalók.

Födém: monolit vasbeton lemezek, szükséges áttörésekkel és attikaképzésekkel.

Lépcső: monolit vasbeton lépcső amely főfalakra és a födémekre támaszkodik fel.

Válaszfalak: Leier 10/50 cm-es válaszfaltéglából készülnek.

Korlátok: a külső erkélykorlátok saválló acél szerkezetek, illetve biztonsági üvegkorlátok
minimum 95 cm magassággal, a kiviteli és a látványterveknek megfelelően. A belső korlátok
saválló acél szerkezetek illetve biztonsági üvegkorlátok

Nyílászárók:
- Homlokzati ablakok, erkélyajtók, bejárati ajtók- 5 kamrás, 70 mm-es szerkezeti vastagságú, Spectus hőhídmentes műanyag nyílászárók, kétrétegű melegperemes hőszigetelő üvegezéssel, (Szerkezet határértke U=1,15 W/m2K), külső oldali antracit színben, belső oldali fehér színben.
- bejárati ajtó: Potsdam Glas 3 üveges díszpanel

- Garázskapu: hőszigetelt szekcionált garázskapu, szélesbordás, motoros, kívül antracit, belül fehér

Párkányok:
- Belül, fehér műanyag párkányok, kívül antracit színű alumínium lemezből készülő párkányok

Árnyékolás:
- Vakolható tokos, műanyag szerkezetű, kombinált redőnyök (redőny + rolós szúnyogháló) kézi működtetés, fehér színben

Szigetelés:
- Talajpára ellen aljzatbetonra bitumenes szigetelő lemez teljes felülete lángolvasztással elhelyezve.
- A vizes helyiségekben használati víz elleni kétkomponensű, kent szigetelés, hajlaterősítő szalaggal.
- Földszinten lépésálló hőszigetelés 13 cm vastag.
- Az emeleteken lépéshang gátló szigetelés 4 cm vastag.
- Homlokzati hőszigetelő rendszer színvakolattal.
- Színvakolt részeken általában 15 cm vastagságban, EPS 80 hőszigetelő lapokkal, ragasztóval és kiegészítő elemekkel készítve.
- Lábazatra 10 cm –es XPS hőszigetelés kerül felrögzítésre, szilikonos lábazati vakolattal.
- Lapostető egyenes rétegrendű PVC szigetelés, pontralejtéssel, attikafalak körbeszigetelésével, belső vízelvezetéssel, terhelés nélkül, mechanikai rögzítéssel.

Bádogos szerkezetek:
- festett alumínium lemez szegélyek és elemek, szakszerű rögzítéssel.

Aljzatbeton:
- helyszínen kevert gépi esztrich 6 és 7 cm vtg-ban,

Felületképzés:
A belső falfelületeken vakolat, funkció szerint csempe ill. diszperziós festés készül.

Burkolatok:
- A hidegpadlós helyiségekben a tulajdonosok által kiválasztott kerámiaburkolat elhelyezése, a
fürdő helyiségben csempe falburkolat ajtófélfa (2,1m) magasságban burkolva,a WC helyiségben csempe falburkolat 1,5 m magasságig burkolva,
- lábazatok a választott hidegburkolatból készülnek 7,5 cm szélességben.
- Választható hidegburkolatok egységára: bruttó 7.000 Ft/m2, tervek alapján
- Melegpadlós helyiségekben a tulajdonos által kiválasztott laminált padlóburkolat létesül.
- Választható meleg burkolatok + alátét fólia: bruttó 5.000 Ft/m2,
- Választható szegély egységára: bruttó 850 Ft/fm tervek alapján

Kémény: nem készül, HŐSZIVATTYÚS fűtés + PADLÓFŰTÉS

Egyéb:
- Kerítés: hátsó kertek körbekerítve 3D kerítéselemekkel antracit színben
- Tetőre való kijutás: Az emeleti tetőre az 1 szintes épületekről, ideiglenes létrával lehetséges a
tetőre való kijutás, amelynek használata a társasházi alapító okiratban kerül rögzítésre.
- Víz: Az utcai gerincvezetékről a telek ellátott, épületbe beállás készül
- Gáz: Az utcai gerincvezetékről a telek ellátott-nem kerül kiépítésre
- Áram: a szükséges energia ellátás az ingatlanra földkábeles becsatlakozási pontról, telepített szekrényből biztosított 1x32A (villamos mérőhelyeknek zsalukőfal kiépítése a helyszínrajzokon jelölt előkertekben)
- Csatorna: Az utcai gerincvezetékről a telek ellátott, épületbe beállás készül
- Fűtés: Lakásonkénti hőszivattyú padlófűtéses kivitelben
- Melegvíz ellátás: 100 L tárolós vízmelegítő
- Gyengeáramú rendszerek: (telefon, internet, tv) kiépítését utcai rendszerekről a területileg elérhető szolgáltatókkal önállóan szerződéssel kell megoldani.
- KLÍMA: Központi klímatizálás nem készül, előkészítés rendelhető árajánlat alapján.

Gépészeti szerelések:
A kétszintes lakásokban a víz és szennyvíz csövek a belső terekben, falon kívül kerülnek elvezetésre, gipszkarton dobozolással.

Az ár nem tartalmazza: kert rendezést, füvesítést, föld feltöltést.
A műszaki tartalom tájékoztató jellegű.

Ajka-Bakonygyepes egy településrész Veszprém megyében, Ajka város közigazgatási területén belül található.
Ez a kis településrész a BAKONY hegység lábánál helyezkedik el, gyönyörű természeti környezetben. Ajka-Bakonygyepes leginkább a nyugodt, falusias hangulatáról ismert, bár közigazgatásilag Ajkához tartozik, ami egy jelentősebb város a környéken, erős ipari hagyományokkal, főként az alumíniumgyártás területén.

A területre jellemzőek a bakonyi tájak, így az erdők, dombok és a vidéki nyugalom.

Az esetleges elírások, információk és a változtatások jogát fenntartjuk!

Amennyiben az ingatlan megvásárlásához el kell adnia jelenlegi otthonát, úgy annak és a teljes folyamatnak a lebonyolításában is állok rendelkezésre!

További információkért forduljon hozzám bizalommal, hívjon a megadott telefonszámon - akár hétvégén is!


AMIBEN MÉG SEGÍTENI TUDUNK:

- Megbízható ügyvédi háttér
- INGYENES, FÜGGETLEN hitelügyintézés
- INGYENES, FÜGGETLEN biztosítási tanácsadás
- Energetikai tanúsítvány és ingatlan értékbecslés készítése
- Közművek és szolgáltatók átírása
- Birtokbaadás lebonyolítása
- Felújítások/Teljes kivitelezés
- Riasztó rendszerek kiépítése
- Kert- és tereprendezés
- Ingatlan takarítás
- Költöztetés


10 ÉVES SZAKMAI TAPASZTALATTAL!

Lakás részletei

Ár: 81 900 000 Ft
Méret: 103 négyzetméter
Azonosító: 11591316
Irodai azonosító: 322741
Emelet: 1. emelet
Építőanyag: Tégla
Ingatlan állapota: Kitűnő
Komfort fokozat: Összkomfort
Építési év: Új építésű
Egész szobák: 4

Egyéb jellemzők

  • Erkély
  • Lift
  • Kertkapcsolat

Hasonló lakás hirdetések

Eladó lakás

Ajka

Új építésű lakás saját telekkel! Ingatlanirodánk eladásra kínálja ...

Eladó lakás

Ajka

Új építésű lakások saját telekkel! Ingatlanirodánk eladásra kínálja ...

Eladó lakás

Ajka

ELADÓ MODERN STÍLUSÚ, ÚJ ÉPÍTÉSŰ EMELETES LAKÁS - AJKA-BAKONYGYEPES ...

Eladó lakás

Ajka

ELADÓ MODERN STÍLUSÚ, ÚJ ÉPÍTÉSŰ EMELETES LAKÁS - AJKA-BAKONYGYEPES ...

Hasonló lakás hirdetések

Eladó lakás

Ajka

Új építésű lakás saját telekkel! Ingatlanirodánk eladásra kínálja ...

Eladó lakás

Ajka

Új építésű lakások saját telekkel! Ingatlanirodánk eladásra kínálja ...

Eladó lakás

Ajka

ELADÓ MODERN STÍLUSÚ, ÚJ ÉPÍTÉSŰ EMELETES LAKÁS - AJKA-BAKONYGYEPES ...

Eladó lakás

Ajka

ELADÓ MODERN STÍLUSÚ, ÚJ ÉPÍTÉSŰ EMELETES LAKÁS - AJKA-BAKONYGYEPES ...