Eladó lakás Balatonfenyves 169 500 000 Ft

Leírás

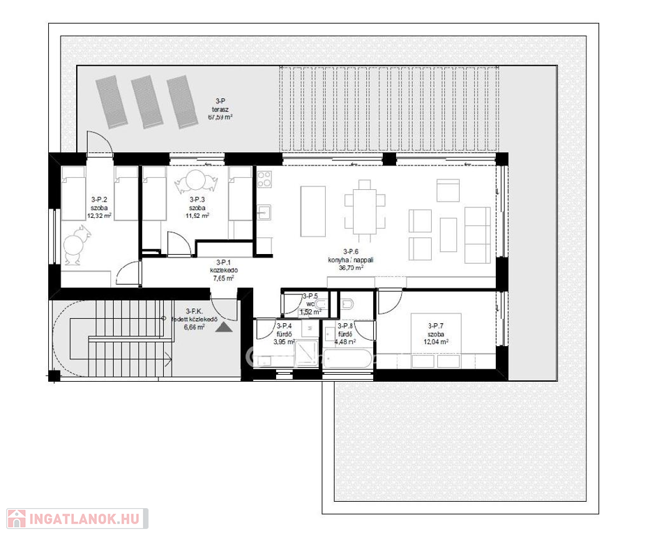
Balaton déli partján, Balatonfenyvesen, üdülőegység eladó. Fenyves felső, üdülőparkban, ősfás, ligetes környezetben, 3 épületben összesen 21 üdülőegység épült, földszint + 2 emeleten. Korszerű energetikai mutatókkal, megújuló energiával üzemelő társasüdülő. Az egész évben használható, lakófunkcióra is alkalmas egységek hűtését fűtését levegő hőszivattyú biztosítja. A tégla teherhordó szerkezetű épületek külső oldalon hőszigetelő vakolattal ellátottak, korszerű homlokzati nyílászárók készültek, nagy üvegfelületekkel. Az épületek földszintjén tárolók kerültek kialakításra, melyek vásárlása opcionális. Az egységek változatos alaprajzi kialakítással tervezettek, 1-2-3 hálószobával. Az épületek legfelső szintjén egyedi kialakítású penthouse üdülők épültek nagy teraszokkal. Erről a szintről korlátozottan balatoni panoráma látható. A gépkocsik elhelyezése telken belül felszíni parkolókban megoldott, egységenként 1 db vásárlása szükséges. Az igen kedvező környezeti adottságok mellett a Balaton gyalogosan 2 perc alatt elérhető. M7 autópálya csomópont 3,5 km-re. Bővebb információért keressen telefonon!

Referencia szám: M222970

Lakás részletei

Ár: 169 500 000 Ft
Méret: 90 négyzetméter
Azonosító: 11537644
Irodai azonosító: M222970-4722167
Emelet: 2. emelet
Építőanyag: Tégla
Ingatlan állapota: Átlagos
Építési év: Új építésű
Kilátás: kertre néző
Egész szobák: 4

Egyéb jellemzők

  • Kocsibeálló

Térkép