Eladó lakás Besnyő 54 900 000 Ft

Leírás

Igényes, megbízható kivitelezőtől vásárolható lakások!



A hat lakásos ingatlanban két földszintes, két első emeleti és egy tetőtéri lakás közül lehet választani. Minden lakáshoz, kerten belüli autóbeálló és egy külső tároló tartozik. A földszinti lakások kertkapcsolatosak.



Teljesen újjáépített, átalakított ingatlan, csak a tartószerkezet maradt meg.


Új oromfal
Új tetőszerkezet, cserép
Új gépészet
Teljesen új külső-belső kialakítás
Saját mérőórák





Téglafalazat 12 cm-es Dryvit szigetelés





Háromrétegű hőszigetelt, műanyag külső nyílászáró





Választható burkolatok 5500.-Ft./nm





Gépesített konyhabútor minden lakáshoz (szagelszívó, sütő, mosogatógép)





Kulcsrakész átadás: 2025. november vége





A 5-ös lakás: 65 nm + 5,2 nm-es külső tároló

A fűtés: 3 db. hűtő- fűtő klíma, fürdőben fűtőszőnyeg

Meleg vízellátás: villanybojler által



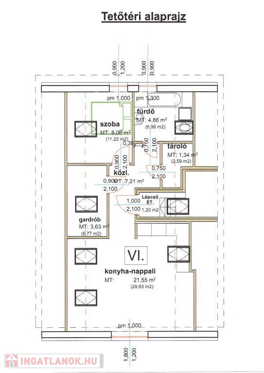
Helyiségek: (Kialakítás alatt)


Közlekedő: 7,21 nm
Nappali + konyha: 21,55 nm (29,93 nm)
Szoba: 8,06 (11,22) nm
Gardrób: 3,63 nm (6,77 nm)
Fürdő (kádas)+ WC: 4,86 (6,98) nm
Mosókonyha, tároló: 1,34 (2,59) nm
Tároló: 5,2 nm




Választható lakások:

1.lakás: ELADVA

2.lakás: ELADVA

3.lakás: Földszint 50,19 nm + 20,05 nm terasz + 54 nm kert (52,9 mill.Ft.)

4.lakás: Emelet 39,59 nm + 9,2 nm erkély (42,9 mill.Ft.)

5.lakás: Emelet 37,11 nm + 3,3 nm erkély (38,9 mill.Ft.)



Ügyvédáltali használati megosztással, osztatlan közös tulajdonban lesznek a lakások.



BESNYŐ 1800 fős, tiszta, rendezett, kellemes hangulatú község, Budapesttől Délnyugat irányban 48 km-re található. Központban: Óvoda, általános iskola, posta, orvosi rendelő vásárlási lehetőség

Autóval a gyors, kényelmes közlekedést az M6-os autópálya biztosítja. (Érd 15 perc alatt elérhető.)

Legközelebbi vasútállomás Iváncsán (2 km) található, ahová helyi buszjárat indul rendszeresen.



-----------------------------------------------------------------------------------------------------------------



Gacsó Ház Ingatlanközvetítő Kft.
INGATLAN HITEL BIZTOSÍTÁS



Irodáink:

1163 Budapest, Veres Péter út 39.
2440 Százhalombatta, Erkel Ferenc körút 1. (üzletsor)



Hívjon bizalommal!

Buzás Mária: +36-20-225-6407; buzas.maria@gacsohaz.hu



Szívügyünk az otthonod!

Az ingatlanoknak mérete és ára van. Az otthon igazi értéke viszont felbecsülhetetlen - ezért az értékbecsléstől a birtokbaadásig végigkísérünk az ingatlan adásvétel folyamatán, hogy végig anyagi, jogi és érzelmi biztonságban legyél.




Lakás részletei

Ár: 54 900 000 Ft
Méret: 65 négyzetméter
Azonosító: 11567399
Irodai azonosító: 360151006-545
Emelet: Tetőtér
Építőanyag: Tégla
Fűtés jellege: Egyéb
Ingatlan állapota:
Komfort fokozat: Összkomfort
Tulajdonviszony: Saját
Egész szobák: 2
Fél szobák: 1

Egyéb jellemzők

  • Erkély
  • Garázs
  • Klíma
  • Lift
  • Pince
  • Kertkapcsolat
  • Tároló
  • Kocsibeálló

Hasonló lakás hirdetések

Eladó lakás

Besnyő

Igényes, megbízható kivitelezőtől vásárolható lakások! A hatlakásos ...

Hasonló lakás hirdetések

Eladó lakás

Besnyő

Igényes, megbízható kivitelezőtől vásárolható lakások! A hatlakásos ...