Eladó lakás Bőny 52 500 000 Ft

Leírás

AZ UTOLSÓ ELADÓ NAPPALI ÉS 3 SZOBÁS NAGY ERKÉLYES LAKÁS BŐNY SZÍVÉBEN EGY 6 LAKÁSOS ÉPÜLŐ TÁRSASHÁZBAN! FŰTÉSKÉSZ ÁTADÁS 2026 JÚNIUS.

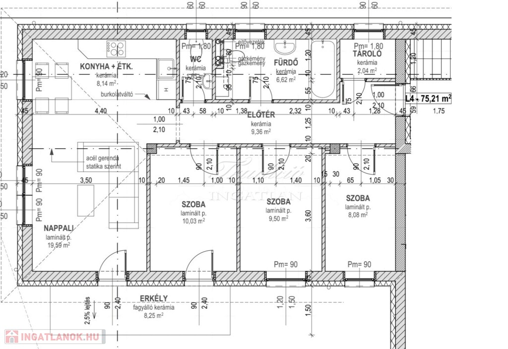
I. EMELETI ELHELYEZKEDÉS / 75,21 M2 + 8,25 M2 ERKÉLY, KÖZÖS TÁROLÓ, ZÁRT UDVARI PARKOLÁSI LEHETŐSÉG, GAZDASÁGOS HŐSZIVATTYÚS KÖZPONTI FŰTÉS, KITŰNŐ INFRASTRUKTÚRA ÉS KÖZLEKEDÉS, IGÉNY SZERINTI KULCSRAKÉSZ BEFEJEZÉS !
Családok számára ideális elosztású:
előtér 9,36 m2, nappali 19,59 m2, konyha-étkező 8,14 m2, tároló 2,04 m2, wc 1,85 m2, fürdő 6,62 m2, szoba 10,03 m2, szoba 9,5 m2, szoba 8, 08 m2.

A kulcsrakész befejezést külön megállapodás alapján a kivitelező vállalja.
A térkővel burkolt saját parkoló vételára 2 M Ft. / 2 db. vásárolható /
Az emelt szintű fűtéskész állapot tartalmazza:
- padlófűtés, központi hőszivattyús technológiával
- saját hideg-, melegviz óra,
- 1 x 32 A áramerősség, lefűzött villamos hálózat
- víz és csatorna alapszerelés
- Kömmerling 3 rétegű üvegezésű ablakok redőny előkészítéssel
- biztonsági bejárati ajtó
- INGYENES KÖZÖS TÁROLÓ
- 30-as tégla falazat 15 cm szigeteléssel, a padlásnál 30 cm
- Terrán tetőcserép
- festett homlokzat és kulcsrakész lépcsőház ill. közös tárolók
- térkövezett parkolók
A lakás 10 % önerővel leköthető
Az ingatlan a település központjához közel található, bölcsőde, óvoda, általános iskola, faluház, abc, posta, buszmegálló, presszó gyalogosan pár perc alatt elérhető, Győr belvárosa és az Audi gyár is autóval kb. 15 perc.
Tökéletes választás fiatal pároknak, családalapítóknak és befektetőknek egyaránt!
Az energetikai tanúsítvány készítése folyamatban van, amint rendelkezésre áll a hirdetést frissítjük.

Bőny Magyarország északnyugati részén, Győrtől 15 km-re keletre a Kisalföldön található, Győr-Moson-Sopron és Komárom-Esztergom vármegye határán. A község területét nyugati és északi irányban több kilométer hosszúságban határolja az M 1 autópálya, melynek Győr keleti lejárója a faluközponttól néhány kilométerre található. A település főutcájaként a 8136 számú, Győrt Tatával összekötő út funkcionál.
A TRADÍCIÓ INGATLANIRODA AZ ALÁBBI SZOLGÁLTATÁSOKKAL ÁLL AZ ÜGYFELEK RENDELKEZÉSÉRE:
- LAKOSSÁGI ÉS IPARI INGATLANOK ÉRTÉKESÍTÉSE ÉS BÉRBEADÁSA
- DÍJMENTES PÉNZÜGYI TANÁCSADÁS, HITELÜGYINTÉZÉS, LAKÁSHITELEK, ÁLLAMI TÁMOGATÁSOK / CSOK, ÁFA / , BABAVÁRÓ HITEL, SZEMÉLYI KÖLCSÖN, LAKÁSTAKARÉK, BIZTOSÍTÁS
- JOGI HÁTTÉR, ADÁSVÉTELI SZERZŐDÉSEK KÉSZÍTÉSE KEDVEZŐ FELTÉTELEKKEL
- ENERGETIKAI TANÚSÍTVÁNY KÉSZÍTÉSE
- INGATLAN ÉRTÉKBECSLÉS
AMENNYIBEN GYŐRI, ILL. GYŐR KÖRNYÉKI, ELADÓ VAGY KIADÓ INGATLANNAL RENDELKEZIK, KÉREM HÍVJON!

Lakás részletei

Ár: 52 500 000 Ft
Méret: 75 négyzetméter
Azonosító: 11572140
Irodai azonosító: 122592
Cím: Bőny
Emelet: 1. emelet
Építőanyag: Kérdezzen rá a hirdetőtől »
Fűtés jellege: Cirkó
Ingatlan állapota: Átlagos
Építési év: Új építésű
Egész szobák: 4

Egyéb jellemzők

  • Erkély