Eladó lakás Budakeszi 45 000 000 Ft

Leírás

Közvetlenül a Budakeszi Vadaspark szomszédságában található lakóparkban kínálunk eladásra tetőtéri lakásokat.

A lakások előkészített és kulcsrakész állapotban is megvásárolhatóak.

• 47 m2 bruttó alapterület, (előkészített) befejezésre váró ingatlan ára: 30 MFt.
• 47 m2 bruttó alapterület, kulcsrakész állapot "mintatervek" alapján megvalósított ingatlan ára: 45 MFt.

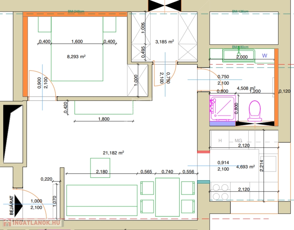
A "mintatervek" alapján egy nettó hasznos 42 m2 alapterületű lakás lenne kialakítva, amely nappali + hálószoba + gardrób + konyha + fürdőszoba helyiségekből állna.

• Nappali 21,18 m2
• Hálószoba 8,29 m2
• Gardrób: 3,18 m2
• Konyha: 4,69 m2
• Fürdőszoba – mosdó 4,5 m2

A belmagasság lehetővé teszi a lakóterület bővítését akár 15-20 m2-rel is. Újratervezéssel szabadon lehet kialakítani a lakás végleges elrendezését az egyedi ötletek és a saját igények testreszabásának figyelembevételével..

Parkolni a lakópark előtti területen lehet igény szerint teremgarázs is bérelhető.

Az ingatlan banki hitel nélkül vásárolható meg.

Az ingatlan megtekintése előre egyeztetett időpontban lehetséges, akár hétvégén is.
Amennyiben felkeltette az érdeklődését, további kérdéseivel kapcsolatban várom jelentkezését.

Lakás részletei

Ár: 45 000 000 Ft
Méret: 47 négyzetméter
Azonosító: 11434321
Irodai azonosító: 374631
Cím: Barackos - Tetőtéri lakás
Emelet: 2. emelet
Építőanyag: Tégla
Fűtés jellege: Cirkó
Ingatlan állapota: Kitűnő
Komfort fokozat: Összkomfort
Építési év: Új építésű
Tulajdonviszony: Saját
Kilátás: kertre néző
Egész szobák: 2

Egyéb jellemzők

  • Erkély
  • Garázs
  • Lift
  • Pince
  • Tároló
  • Kocsibeálló

Térkép