Eladó lakás Budapest II. ker 109 990 000 Ft

Leírás

***II. kerület, VÍZIVÁROS legjobb részén ERKÉLYES, 2,5 szobás lakás AUTÓBEÁLLÓVAL eladó!
RITKA lehetőség, KIVÁLÓ vétel!***

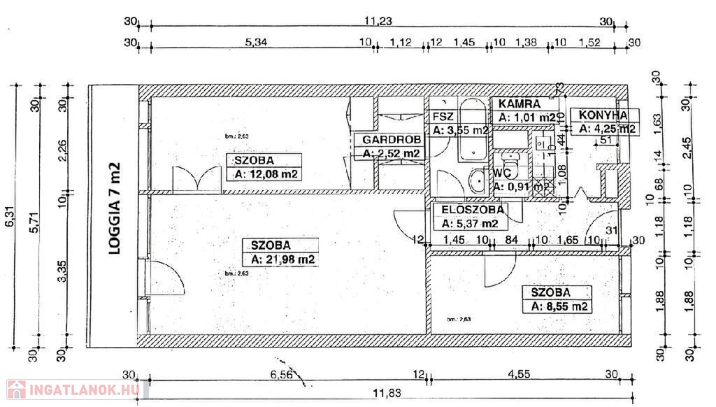
Budapest II. kerületének Víziváros részén ajánlok a figyelmébe egy 63 nm-es, 2,5 szobás, kiváló elosztású, VILÁGOS és HANGULATOS lakást (DNY-i tájolás), kényelmes méretű konyhával, külön gardrób és tároló helyiséggel.
Fűtése házközponti rendszerről megoldott EGYEDI méréssel, radiátoros hőleadással.
Az ingatlan egy RENDEZETT, LIFTES, jó állapotú csúsztatott zsalus szerkezetű ház 2. emeletén található.
Jelenlegi állapota átlagos, ami kiváló alap egy teljesen saját ízlésre szabott otthon kialakításához.

ELŐNYÖK:
DAIKIN KLÍMA, gardrób, kamra, ALACSONY REZSI, nagyméretű loggia, RENDEZETT TULAJDONI LAP, normális szomszédok, anyagilag rendezett társasház, DUNAPART A KÖZELBEN, kiváló lokáció, házközponti fűtés, bekamerázott társasház, PARKOLÁSI LEHETŐSÉG (elektromos kapu, rendszámfelismerő rendszer), IRODÁNAK IS TÖKÉLETES választás.

LOKÁCIÓ:
A lakás Víziváros egyik legkedveltebb részén helyezkedik el, a környék hangulata különleges, nyugodt és barátságos.
A Duna-part és a Millenáris rövid sétával elérhetők, a METRÓ, villamos és buszmegálló pár percre található, tehát a tömegközlekedés és a lakás infrastruktúrális adottságai kiválóak.

Irányár: 109.990.000,-Ft

Ha ingatlan vásárlásával egy ÉRTÉKÁLLÓ BEFEKTETÉST is szeretne egyben, akkor ez egy remek lehetőség az ön számára.

Az OTP Ingatlanpont, mint egyetlen közvetlen banki hátterű ingatlanközvetítő társaság teljes körű ügyintézéssel és kedvezményes pénzügyi konstrukciókkal áll ügyfelei rendelkezésére!
VIP-szolgáltatást nyújtunk az OTP-hiteltermékek ügyintézésében.
Jogi és pénzügyi segítséget nyújtanak szakértőink, hogy az adásvétel folyamata gördülékeny legyen.

Ha felkeltette érdeklődését az ingatlan, kérem, hívjon bizalommal akar hétvégén is!

Az energetikai tanúsítvány készítése folyamatban van, amint rendelkezésre áll, úgy azzal a hirdetés frissítésre kerül.


Energetikai tanúsítvány nem áll rendelkezésre.

Lakás részletei

Ár: 109 990 000 Ft
Méret: 63 négyzetméter
Azonosító: 11606281
Irodai azonosító: M323270-5176180
Cím: Budapest 2. ker.i 63 nm-es lakás eladó
Emelet: 2. emelet
Építőanyag: Csúsztatott zsalu
Fűtés jellege: Házközponti (egyedi mérővel)
Ingatlan állapota:
Komfort fokozat: Összkomfort
Építési év: 21-50 éves
Kilátás: utcai
Egész szobák: 2
Fél szobák: 1

Egyéb jellemzők

  • Erkély
  • Klíma
  • Lift
  • Kocsibeálló

Térkép

Hasonló lakás hirdetések

Eladó lakás

Budapest II. ker, Rózsadomb

Eladó lakás a Rózsadomb szívében Keleti Károly utcában Kivételes lehetőség ...

Eladó lakás

Budapest II. ker, Kurucles

II. kerület szívében, Kurucles könnyen megközelíthető részén három ...

Eladó lakás

Budapest II. ker

Eladó jó állapotú panorámás lakás Szemlőhegyen kiváló lokációban! Budapest ...

Eladó lakás

Budapest II. ker

Eladó frissen felújított lakás a Fillér utcában! Budán, a közkedvelt ...

Hasonló lakás hirdetések

Eladó lakás

Budapest II. ker, Rózsadomb

Eladó lakás a Rózsadomb szívében Keleti Károly utcában Kivételes lehetőség ...

Eladó lakás

Budapest II. ker, Kurucles

II. kerület szívében, Kurucles könnyen megközelíthető részén három ...

Eladó lakás

Budapest II. ker

Eladó jó állapotú panorámás lakás Szemlőhegyen kiváló lokációban! Budapest ...

Eladó lakás

Budapest II. ker

Eladó frissen felújított lakás a Fillér utcában! Budán, a közkedvelt ...