Eladó lakás Budapest II. ker, Pasarét, 179 000 000 Ft

Leírás

Bp., 2.ker. Pasaréten, FELÚJÍTOTT, 2. emeleti, ERKÉLYES lakás eladó
For English, please, scroll down
Szeretne elegáns környéken lévő Bauhaus házban felújított, nagypolgári lakást?
Főbb jellemzői néhány szóban:
- kiváló lokáció
- erkélyes
- 2. emeleti
- felújított
Részletes információk a lakásról:
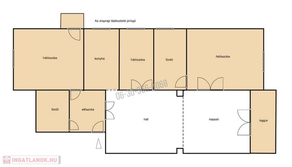
PASARÉTI ÚTON, Vasas pályánál, 8 lakásos, 1930-as években épült karbantartott Bauhaus házban, 128 nm-es, 3,5 szoba-hallos, 2. emeleti (lift nincs), nagypolgári lakás eladó. A nappali és a hall egybenyitva hatalmas, hangulatos teret ad, ahonnan az új, hangszigetelt, nagy üvegfelületű teraszajtón léphetünk ki a 8 nm-es erkélyre. A nappaliból és az előszobából nyíló 3 hálószoba külön bejáratúak. A konyha ablakos, beépített és gépesített. A 2 ablakos fürdőszoba közül az egyik kádas, a másik zuhanyzós és mindkettőben van WC. Alaprajzot igény esetén küldök.
A lakás 2013-ban teljes felújításon esett át (az összes vezeték és a nyílászárók kicserélve, új parketta). 2021-ben új kondenzációs cirkó kazán került beszerelésre. Az ablakok redőnyökkel felszereltek. Rejtett világítás a nappaliban, mennyezeti stukkók, díszüveges szárnyas ajtók teszik különösen széppé a lakást.
A lakást kétszárnyú biztonsági ajtó és távfelügyelethez bekötött riasztórendszer védi. Klíma beszerelése kiállásokkal előkészítve.
A pincében nagy, ablakos tároló tartozik a lakáshoz és a padláson is hatalmas tárolóhely áll rendelkezésre. A társasház mögött közös kert használható.
A közös költség vízzel, felújítási alappal együtt: 39 000 Ft/hó. A lakás tehermentes.
Tömegközlekedés: a közelben elérhetőek többek között az 5-ös busz és 61-es villamos megállói, amelyekkel a Széll Kálmán térre, a belvárosba illetve a Móricz Zs. körtérre juthatunk néhány perc alatt.
A közelben a Rózsakert és Mammut bevásárlóközpontok, valamint a Fény utcai piac könnyen elérhető.
A Városmajor Park és a közeli kirándulóhelyek kellemes szabadidős programokat biztosítanak az egész család részére.
Várom megtisztelő érdeklődését akár hétvégén is.

Lakás részletei

Ár: 179 000 000 Ft
Méret: 128 négyzetméter
Azonosító: 11356559
Cím: Pasaréti út
Városrész: Pasarét
Emelet: 2. emelet
Építőanyag: Tégla
Fűtés jellege: Cirkó
Ingatlan állapota: Felújított
Komfort fokozat: Dupla komfort
Építési év: 50 évesnél régebbi
Tulajdonviszony: Saját
Bútorozott: Nem bútorozott
Kilátás: utcai
Kert: Közös telek
Egész szobák: 3
Fél szobák: 1

Egyéb jellemzők

  • Erkély
  • Klíma
  • Lift
  • Pince
  • Tároló
  • Kocsibeálló

Térkép

Hasonló lakás hirdetések

Eladó lakás

Budapest II. ker

Eladó egy kivételesen jó adottságokkal rendelkező ingatlan a XII. KERÜLETBEN!Lokáció:A ...

Eladó lakás

Budapest II. ker

Elegáns, luxus design lakás a II. kerület szívében, a Szász Károly utca ...

Eladó lakás

Budapest II. ker

TÖRÖKVÉSZEN, VARÁZSLATOS KÖRNYEZETBEN, PANORÁMÁS, NAGY TERASZOS LAKÁS ...

Eladó lakás

Budapest II. ker

Kedves Érdeklődő! Figyelmedbe ajánlom ezt a Rózsadombon található, ...

Hasonló lakás hirdetések

Eladó lakás

Budapest II. ker

Eladó egy kivételesen jó adottságokkal rendelkező ingatlan a XII. KERÜLETBEN!Lokáció:A ...

Eladó lakás

Budapest II. ker

Elegáns, luxus design lakás a II. kerület szívében, a Szász Károly utca ...

Eladó lakás

Budapest II. ker

TÖRÖKVÉSZEN, VARÁZSLATOS KÖRNYEZETBEN, PANORÁMÁS, NAGY TERASZOS LAKÁS ...

Eladó lakás

Budapest II. ker

Kedves Érdeklődő! Figyelmedbe ajánlom ezt a Rózsadombon található, ...