Eladó lakás Budapest II. ker 189 900 000 Ft

Leírás

Pesthidegkúton örökpanorámás lakások eladók!



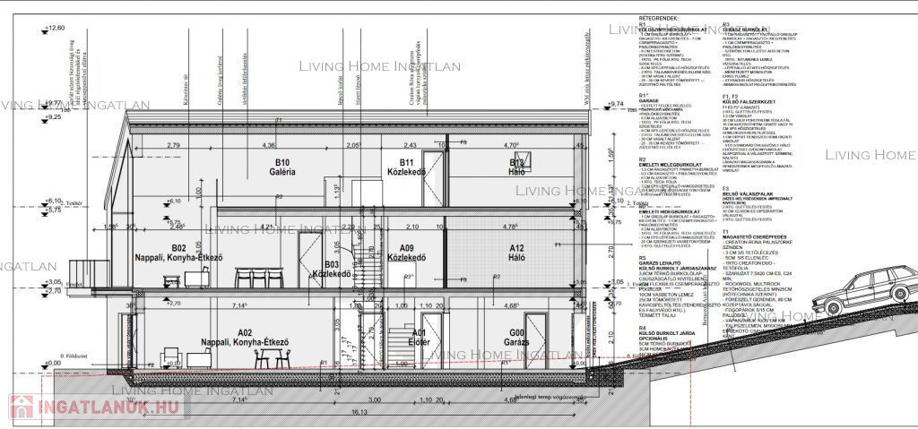
Tájvédelmi terület szomszédságában, csendes utcában örökpanorámás, déli tájolású, új építésű ingatlan mindkét lakása eladó. Az épület jelenleg 60%-os készültségű. A belső terek, a beosztás még alakítható, a burkolatokat a vevő saját ízlése szerint még kiválaszthatja,



Az egyik lakás 158 nm, a másik 153 nm, mindkettőhöz tartozik kizárólagos kerthasználat, valamint garázs. Az ár kulcsrakész állapotra értendő.




  • fűtés: levegő-hőszivattyús rendszer,

  • padló- és mennyezet hűtés,

  • Hörmann garázskapu,

  • klíma, kiépített kaputelefon,

  • egyedi beltéri nyílászárók, üvegkorlát.



Részletes dokumentációt, tervet, műszaki tartalmat kérésre küldök.



A lokáció kedvező: közelben Francia iskola, Német iskola, Amerikai, Spanyol iskola, sportolási lehetőség, uszoda.



Az alaprajz és az adatok tájékoztató jellegűek.



English:



Apartments with everlasting panoramic views for sale in Pesthidegkút!

In a quiet street, next to a landscape conservation area, both apartments of a new-build property with panoramic views, south-facing for sale. The building is currently 60% complete. The interiors and the layout can be adapted, the tiling can be chosen according to the taste of the buyer,

One apartment is 158 sqm, the other 153 sqm, both with exclusive use of garden and garage. The price is for turnkey condition.

- Heating: air-source heat pump system,

- underfloor and ceiling cooling,

- Hörmann garage doors,

- air conditioning, built-in intercom,

- individual interior doors and windows, glass barrier.

Detailed documentation, plans, technical content on request.

The location is favourable: nearby French school, German school, American school, Spanish school, sports facilities, swimming pool.



The floor plan and data are for information only.


Lakás részletei

Ár: 189 900 000 Ft
Méret: 158 négyzetméter
Azonosító: 11448689
Irodai azonosító: 360651121-307
Építőanyag: Tégla
Fűtés jellege: Egyéb
Ingatlan állapota: Kérdezzen rá a hirdetőtől »
Komfort fokozat: Összkomfort
Építési év: Új építésű
Egész szobák: 4
Fél szobák: 1

Egyéb jellemzők

  • Erkély
  • Garázs
  • Klíma
  • Pince
  • Kertkapcsolat
  • Tároló
  • Kocsibeálló

Hasonló lakás hirdetések

Eladó lakás

Budapest II. ker

Nagyszerű elosztással, szenzációs elhelyezkedéssel és örök panorámával ...

Eladó lakás

Budapest II. ker

TÖRÖKVÉSZEN, VARÁZSLATOS KÖRNYEZETBEN, PANORÁMÁS, NAGY TERASZOS LAKÁS ...

Eladó lakás

Budapest II. ker

Városi elegancia és természetközeliség egy helyen - különleges lakás ...

Eladó lakás

Budapest II. ker

Eladó lakás garázzsal! Eladó a II. kerület kedvelt részén, Vízivárosban, ...

Hasonló lakás hirdetések

Eladó lakás

Budapest II. ker

Nagyszerű elosztással, szenzációs elhelyezkedéssel és örök panorámával ...

Eladó lakás

Budapest II. ker

TÖRÖKVÉSZEN, VARÁZSLATOS KÖRNYEZETBEN, PANORÁMÁS, NAGY TERASZOS LAKÁS ...

Eladó lakás

Budapest II. ker

Városi elegancia és természetközeliség egy helyen - különleges lakás ...

Eladó lakás

Budapest II. ker

Eladó lakás garázzsal! Eladó a II. kerület kedvelt részén, Vízivárosban, ...