Eladó lakás Budapest II. ker 235 000 000 Ft

Leírás

Luxus élettér!

Az elmúlt évek egyik legkeresettebb zöldövezeti környezetében, Pesthidegkúton - tájvédelmi körzet közvetlen közelében elhelyezkedő örökpanorámás telken - kínálunk eladásra, egy jelenleg épülő ikerház két különálló lakását (garantált átadás szeptember vége).

A számtalan szabadidős porgram mellett, pl. egy játszótér és egy közeli kis tó is ideális pihenési lehetőséget kínál az itt élő családok számára.

A nagyméretű telek és a rajta álló épület egy csendes utcában helyezkeik el.
A családi ház a benne lévő két külön álló lakásból eredően akár társasházi egységként is funkcionálhat.

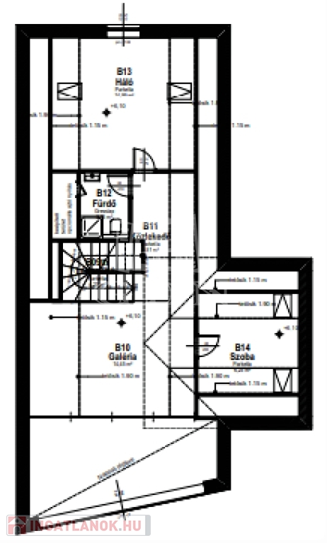
A felső szinten elhelyezkedő 153 m2 nettó alapterületű lakás hatalmas panoráma ablakos, függönyfalas kivitelezéssel készült.

Az alső szinten lévő belső kétszintes 158 m2 nettó alapterületű lakás közvetlen kertkapcsolattal rendelkezik.

Figyelem a két lakás az emeleti szinten akár egybe is nyitható!

Az építkezés jelenleg 50 %-os készültségnél tart, amely bármikor megtekinthető, megismerve ezáltal a burkolásokat, illetve az átgondolt külső-belső kivitelezési munkálatok előkészítésének magas minőségét.

A kivitelező 20 éves tapasztalatának, továbbá számtalan referenciájának (melyeket igény szerint szintén bármikor rendelkezésre bocsájtunk) köszönhetően garantált minőségi kivitelezést kínál. A vevő konkrét - adásvétel - elköteleződésétől számítva a kivitelező 4 hónapra vállalja a befejezést, illetve az ingatlan kulcsrakész átadását!

Az épület elhelyezkedése K-DNy-i tájolású, íly módon
a hatalmas üvegfelületek páratlan optikai látványt és természetközeli élményt biztosítanak az exkluzív élettérnek!

Figyelem, a készültség jelenlegi szintjén (maximum június végéig) a kivitelező nyitott az Ön egyedi igényének, illetve elképzlésének megfelelő belső kialakításokra, sőt akár egy közös befejezésre is!

A jövőbeni költséghatékony fenntarthatóság érdekében a fűtés levegő-hőszivattyús rendszerrel, egyben padló és mennyezet hűtéssel kerül beépítésre.

Egyéb extrák:

- elektromos alumínium redőny,
- elektromos szekcionált Hörmann garázskapuk,
- riasztó rendszer kiépítés,
- hűtő-fűtő klíma,
- fürdőkben kiegészítő törölköző szárítók,
- fényezet egyedi beltéri nyílászárók,
- üvegkorlát,
- kiépített kaputelefon.

Bővebb műszaki tartalmat igény szerint küldök!

Lakás részletei

Ár: 235 000 000 Ft
Méret: 153 négyzetméter
Azonosító: 11417999
Irodai azonosító: 369200
Cím: Pesthidegkút
Emelet: 1. emelet
Építőanyag: Tégla
Fűtés jellege: Hőszivattyú
Ingatlan állapota: Kitűnő
Komfort fokozat: Összkomfort
Építési év: Új építésű
Tulajdonviszony: Saját
Kilátás: panorámás
Egész szobák: 5

Egyéb jellemzők

  • Erkély
  • Garázs
  • Lift
  • Pince
  • Tároló

Térkép

Hasonló lakás hirdetések

Eladó lakás

Budapest II. ker

Eladó egy különleges ingatlan a festői szépségű II. kerületben, a békés ...

Eladó lakás

Budapest II. ker

NAGYPOLGÁRI ÉLETÉRZÉS BUDÁN! A II. kerületben, a hangulatos Keleti Károly ...

Eladó lakás

Budapest II. ker

II. kerület zöldövezeti részén 2150nm-es telken legmodernebb technológiával ...

Eladó lakás

Budapest II. ker, Vérhalom

Bp., 2. ker. VÉRHALOM, nagy teraszos, gyönyörűen FELÚJÍTOTT lakás eladó ...

Hasonló lakás hirdetések

Eladó lakás

Budapest II. ker

Eladó egy különleges ingatlan a festői szépségű II. kerületben, a békés ...

Eladó lakás

Budapest II. ker

NAGYPOLGÁRI ÉLETÉRZÉS BUDÁN! A II. kerületben, a hangulatos Keleti Károly ...

Eladó lakás

Budapest II. ker

II. kerület zöldövezeti részén 2150nm-es telken legmodernebb technológiával ...

Eladó lakás

Budapest II. ker, Vérhalom

Bp., 2. ker. VÉRHALOM, nagy teraszos, gyönyörűen FELÚJÍTOTT lakás eladó ...